Архитектор Анна Лагутина создала минималистичный и функциональный интерьер в серо-терракотовой палитре
Кухня выполнена на заказ, «Свой интерьер».
«Заказчики пришли ко мне с просьбой создать эффектную квартиру для сдачи в аренду. Они не загоняли меня в жесткие рамки ТЗ. Главное, что требовалось, — уложиться в конкретный бюджет, в остальном мне дали полную свободу. Заказчица так и сказала мне: „Анна, будьте смелой“», — рассказывает автор проекта.

Диван, «Диван.ру». Трековое освещение, ST Luce.
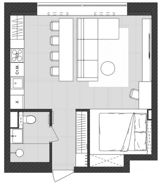
«Первом делом мы снесли все перегородки и создали единое пространство, которое впоследствии разделили на несколько функциональных зон: прихожую, кухню с обеденным столом, ТВ-зону с диваном и спальню».

«Одно из главных достоинств квартиры — вид на парк „Лосиный остров“. Благодаря ему у нас появилась идея объединить окна бывших двух комнат. К счастью, простенок между ними был не несущим, и нам удалось сделать оно большое трехстворчатое окно. Теперь потрясающим видом на лес можно любоваться из каждого уголка квартиры».

Неокамень, Wall Street.

Мебель выполнена на заказ, «Свой интерьер».
«Цветовая гамма интерьера строится на сочетании различных оттенков серого, к которым мы добавили темно-терракотовые акценты. Одним из них стала кухня: верхние шкафы, фартук и столешница вместе образуют по центру цветную нишу. Вдобавок к этому в терракотовом цвете выполнена тумба в ванной и журнальный стол, который мы, кстати, красили сами баллончиком в ночь перед съемкой.
Все дерево в проекте одного оттенка. Из него выполнена кровать, шкаф в прихожей, обеденный стол, оконные откосы и подоконники».

«Мое самое любимое место в квартире — спальня. В этой зоне располагается коммуникационный короб, который по нормам мы не могли ни снести, ни уменьшить. Из-за него у стены образовался небольшой выступ. Точно такой же по размеру выступ я сделала сверху и снизу, и таким образом получился куб со скрытыми системами хранения, переходящий в прихожую».


Встроенный свет, Elektrostandard.
«Поскольку квартира предназначалась для сдачи в аренду, материалы для отделки мы выбирали относительно недорогие и практичные. Например, пол во всех зонах — от прихожей до гостиной — мы покрыли керамогранитом, предварительно установив под плиткой систему обогрева».

«Для ТВ-стены мы нашли очень необычное решение. Она декорирована так называемым неокамнем — бесшовным полотном с минеральным крошкой. Визуально и на ощупь оно вполне похоже на натуральный камень и при этом стоит значительно дешевле».
Автор проекта: архитектор Анна Лагутина, студия Ural Interior, www.ural-interior.ru

Сантехника, Ceramica Nova и Berges.

Квартира в Москве, 38 кв.м. Проект Анны Лагутиной.