В небольшом пространстве — три комнаты для всех членов семьи, а также парадная кухня-гостиная, где комфортно и уютно.
Заказчики и задачи
Этот небольшой дом принадлежит зрелой супружеской паре, чьи старшие дети уже выросли и живут отдельно, поэтому интерьер планировали для себя и дочери-подростка. «Дом нужен был спокойный и красивый, чтобы отдыхать от суеты», — так формулируют задачу по оформлению интерьера дизайнеры Елена Чернова и Наталья Николенко.
Были и конкретные пожелания: отдельно стоящая ванна и душевая без порога, мойка у окна на кухне, большая столовая группа, чтобы могли разместиться все члены семьи, отдельная гардеробная, электрический камин и большой диван в гостиной.

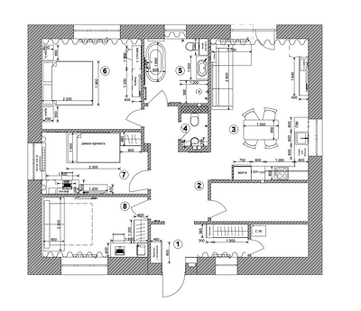
Планировка
Дом выбирали среди готовых в коттеджном поселке исходя из потребностей семьи, поэтому менять изначальную планировку не было необходимости. Коттедж одноэтажный, включает три отдельные комнаты, большую ванную, санузел, кухню-гостиную и два вспомогательных помещения.

Отделка
«Нужно было создать спокойный, воздушный интерьер, но в тоже время нарядный. У хозяйки были любимые настенные часы и фигурка рыбки, которые и задали основное направление в цвете», — комментируют авторы проекта. Общая палитра интерьера — спокойные бежевые тона, натуральные фактуры. Единственное исключение — детская девочки, которая уже сама высказала пожелания по оформлению своей комнаты (нейтральная база и яркий акцент).

Так, стены окрашены в светлые тона. В спальнях использовали обои. Также фреской оклеена стена в гостиной за диваном — это фокусная точка пространства.
Для пола в комнатах выбрали ламинат — практично, красиво и недорого. В кухне-гостиной — крупноформатный керамогранит под мрамор. Скомбинировали светлый и темный материал, глянцевый финиш выглядит шикарно и добавляет роскоши пространству.

В ванной комнате светлый крупноформатный керамогранит под мрамор выложили на стенах и на полу. За отдельно стоящей ванной сделали панно из черного керамогранита. Верхняя часть стен прямо под потолком окрашена. Такой выбор сделали для того, чтобы не подрезать большую плиту керамогранита (высоты не хватило до потолка), а еще немного «занизить» высокий потолок в небольшой по площади комнате.

В санузле керамогранит скомбинирован с окрашенными стенами на половине стены. Так маленькое помещение выглядит гармоничнее.

Системы хранения
Кроме отдельной гардеробной, дизайнеры предусмотрели шкафы: в прихожей, в детской. Для разных мелочей — тумба под телевизор в гостиной (на ней установлен и электрокамин), комод в детской, ящики у рабочих столов в детской и спальне, прикроватные тумбочки в спальне.

Кухня спроектирована Г-образной, и, как и хотела хозяйка, мойка располагается у окна. С этой стороны нет верхних шкафов, чтобы не утяжелять обстановку, они размещены только по одной стене. В высокие шкафы встроены духовой шкаф и СВЧ, холодильник вписан в нишу шкафов (выбрали не встраиваемую модель, но по цвету она идеально вписалась).
В ванной комнате для хранения есть тумба под раковину и шкафчик над инсталляцией унитаза.
Освещение
Дизайнеры выбрали современные по стилю светильники, даже люстры без подчеркнуто классических форм, но в изящном исполнении. В качестве общего сценария света предусмотрены точечные светильники: накладные — в ванной комнате, встроенные — над рабочей зоной кухни, треки — в детской.

В гостиной и спальне — люстры, это модели с матовыми плафонами для мягкого приглушенного света. Люстра также размещена над обеденным столом. Кроме того, продуманы декоративные сценарии в виде подвесов у зеркала в прихожей и у отдельно стоящей чаши в ванной, бра у кроватей в детской и спальне, настольные лампы. А также — подсветки открытых полок и зеркал.


Наталья Николенко и Елена Чернова Дизайнеры, авторы проекта
Интерьер выполнен в современной классике. Выбрали этот стиль, потому что он больше всего приглянулся хозяевам, и все референсы были именно в этой стилистике. Четкие линии, чистые пропорции и простая геометрия, характерные для этого стиля, прослеживаются во всем доме. А также пастельная цветовая гамма, отсутствие резких контрастов, разнообразные молдинги, натуральные природные материалы (шпон дерева, массив в мебели, латунь) или хорошая имитация (керамогранит под мрамор, ламинат под дерево).
21 фото

Кухня-гостиная

Кухня-гостиная

Кухня-гостиная

Кухня-гостиная

Кухня-гостиная

Кухня-гостиная

Кухня-гостиная

Спальня

Спальня

Спальня

Спальня

Детская

Детская

Детская

Детская

Прихожая

Прихожая

Ванная комната

Ванная комната

Ванная комната

Ванная комната Редакция предупреждает, что в соответствии с Жилищным кодексом РФ требуется согласование проводимых переустройств и перепланировок.

Смотреть перепланировку

Анастасия Дубровина

Вера Деблик

Анна Шенбергер Светлые цвета Бежевый цвет Современная классика