Вид на бурлящую Москву подсказал дизайнеру Юлии Баршевской идею проекта — поддержать панораму города, но противопоставить московской суете интерьер, полный спокойствия и умиротворения
Кухня-гостиная. Кухня сделана на заказ в столярной мастерской.

Автор проекта дизайнер Юлия Баршевская.
ОБЩИЕ ПАРАМЕТРЫ
Тип недвижимости: квартира-новостройка
Где находится: Москва, ЖК «Д1»
Метраж: 35 м2
Стиль: современный городской минимализм
Цветовая гамма: нейтральная, с акцентной стеной цвета ультрамарин в спальне
Автор проекта: дизайнер Юлия Баршевская, т. +7 (916) 144-64-22, jbarsh@ya.ru

Столовая группа, Dantone Home. Над столом работа Марии Левко «Дерево. Тень номер 6».
«Панорамные окна и вид на Москву с 50-го этажа определили основную идею этого проекта, — рассказывает дизайнер Юлия Баршевская. — Хотелось поддержать панораму города и за счет натуральных материалов, красивых фактур и спокойных природных оттенков создать оазис спокойствия и умиротворения».
Заказчица — девушка 26 лет, руководитель в банковской сфере — попросила выделить больше мест под хранение и организовать комфортное рабочее место. Для нее в приоритете функциональность. Особым пожеланием было не использовать дерево теплых желтоватых оттенков, поэтому Юлия тщательно подбирала приглушенные холодные оттенки шпона для кухни и паркетной доски. Желтый — самый нелюбимый цвет у заказчицы, а синий — самый любимый, и это тоже отразилось в интерьере.

Зона кухни. Мебель сделана на заказ, чтобы увеличить рабочую поверхность, холодильник перенесли на другую стену и закрыли мебельными фасадами.

Над обеденным столом работа Марии Левко «Дерево. Тень номер 6».
Кухонный фартук выполнили из состаренного зеркала. «Мне очень нравится этот прием, смотрится необычно и изысканно и дополнительно оживляет и расширяет узкое помещение, — комментирует Юлия. — Нам было важно не применять обычную для фартука плитку, чтобы максимально незаметно и органично внедрить кухню в интерьер этой небольшой гостиной».

Зона гостиной. Во всех помещениях в качестве отделки использованы декоративные рифленые панели из дюрополимера.

Зона гостиной, фрагмент. Комод Dantone Home
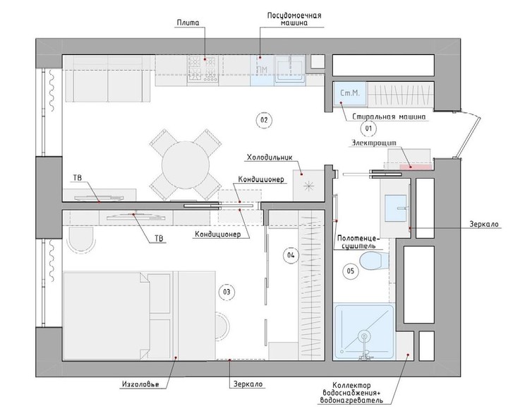
Несмотря на маленькую площадь, в квартире удалось организовать шесть функциональных зон — прихожую, кухню, гостиную, спальню, рабочее пространство, гардероб. В планировке от застройщика было спроектировано две комнаты плюс санузел. Дизайнер избавилась от маленького коридорчика, ведущего в спальню, перенесла вход в санузел из комнаты в коридор, и за счет этого расширила зону гардеробной.

Спальня. На полу паркетная доска, «Пол вам в дом». Текстиль, Apriori Home.
Особенно удачной получилась спальня, планировка которой позволяет хозяйке квартиры наслаждаться видом на Москву и с кровати, и с рабочего места. А еще здесь получилось сделать максимально функцильнальное хранение: для одной из стен был спроектирован стеллаж, который одновременно выполняет функцию туалетного столика и ТВ-зоны (да, для телевизора здесь тоже нашлось место).

Спальня, фрагмент. Кровать сделана на заказ в столярной мастерской.

Спальня, фрагмент. Многофункциональный стеллаж выполняет сразу несколько ролей.

Спальня, фрагмент. Зону спальни Юлия решила выделить цветом, и этим цветом стал любимый заказчицей синий. Над кроватью работа Егора Левко Sleep.
«В такой маленькой квартире все на виду, и я максимально спрятала все функциональные детали, используя для этого встроенную мебель», — говорит Юлия. В шкафу прихожей кроме вешалок разместилась стиральная машина, подвесной шкафчик напротив закрывает электрический щиток, а открытые полки внизу используются для ключей, телефона, очков и прочей мелочи, которую необходимо куда-то положить, когда входишь в дом. В санузле тоже множество шкафчиков для хранения за глухими и стеклянными фасадами, но они не бросаются в глаза, так как сливаются с цветом стен и являются частью архитектуры пространства.

Ванная комната. Это пространство тоже максимально задействовано для хранения.

Прихожая. В шкафу прячется стиральная машина.

Планировка квартиры площадью 35 кв. метров. Проект Юлии Баршевской.Татьяна Филиппова