В квартире площадью чуть больше 50 кв. метров архитекторам Buro 2D удалось найти место для кухни-гостиной, спальни, кабинета, двух гардеробных и ванной комнаты с отдельно стоящей ванной. О том, как это получилось, рассказывают авторы проекта
В результате перепланировки кухня превратилась в кухню-гостиную с компактной диванной зоной, большим гарнитуром, в котором организовано хранение, и кухонным островом с с тремя полубарными стульями.
ОБЩИЕ ПАРАМЕТРЫ
Тип недвижимости: квартира-новостройка
Где находится: Москва, ЖК «Серебряный парк»
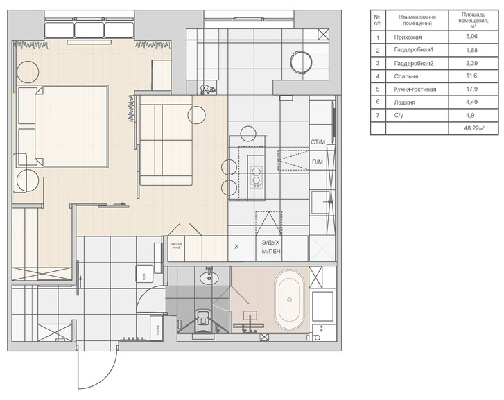
Метраж: 54 м2
Стиль: современный с элементами лофта
Основная идея проекта: создать функциональный яркий интерьер для девушки
Цветовая гамма: черный, белый, медовый, глубокий синий
Авторы проекта: Студия Buro 2D, руководители студии Дмитрий и Дарья Григорьевы, т. +7(963) 150-09-90, https://buro2d.ru; https://vk.com/buro2d; https://t.me/Buro2D_interiors
Заказчица пришла в Buro 2D с четким пониманием того, что ей хотелось бы видеть в своей квартире

Кухня-гостиная, фрагмент.
Заказчица пришла к нам с очень четким пониманием того, что ей хотелось бы видеть в интерьере своей квартиры. Ее мечтой была стеклянная лофт-перегородка, черные лофтовые элементы в интерьере (светильники, вытяжка, аксессуары), сочетание глубокого сложного синего и теплого медового оттенка. При этом важно было не перегрузить интерьер цветом и деталями.

Интерьер построен на контрастах: в зоне кухни противопоставлены черный и белый.

Зона кухни, фрагмент.
Кухонный гарнитур заказчице хотелось видеть без подвесных верхних ящиков, с небольшим островом, что позволит обойтись без обеденного стола. А еще ей обязательно нужна была отдельно стоящая ванна, пусть даже самая маленькая.

Зона кухни, фрагмент.

Зона кухни, фрагмент.
Квартира обладала довольно стандартной планировкой — изолированная комната, небольшая кухня, лоджия, прихожая и санузел. Пожеланием заказчицы было сделать максимально светлую открытую планировку с общим пространством, открыть вид на красивые арочные окна.

Кухня-гостиная: функциональный остров с полубарной стойкой, небольшой варочной панелью (пожелание заказчицы), розетками для техники, зарядки телефона и станции Алиса. В цоколе острова есть «норка» для робота-пылесоса.
Что мы сделали: полностью демонтировали перегородки, расширили санузел за счет площади прихожей, зону спальни отделили от основного пространства стеклянной раздвижной лофт-перегородкой, продублировав ее шторой для затемнения. Подоконный блок и окно на лоджию демонтировали, лоджию утеплили и сделали электрический теплый пол. На лоджии разместилось рабочее место и небольшой диванчик с отделениями для хранения.

Лоджия, фрагмент.

Лоджия, фрагмент.
Пространство получилось очень воздушным, светлым, удобным для жизни, по отзывам хозяйки. При этом в каждом помещении много мест для хранения, заранее предусмотрены разные сценарии жизни, розетки, выключатели в удобных местах, каждый шкафчик и ящик выполняет свою функцию. Сценарии света продуманы на разные настроения и потребности, есть датчик движения на подсветку пола при движении из спальни в ванную комнату.

Зона гостиной, фрагмент. Диван, SK Design. Стулья, Deep House.
Интерьер построен на контрастах: темного и светлого, яркого цветного и спокойных нейтральных оттенков. Мы постарались сбалансировать яркость и черные элементы нейтральным фоном: светлые природные оттенки стен, натуральное дерево на полу (инженерная доска), на барной столешнице (шпон дуба). Зонировали яркими цветами: синим выделена зона лоджии, медовым — объем гардеробных. Эти оттенки повторяются в обивке дивана и текстильном оформлении.

Вид из гостиной на спальню.
Нашей задачей было организовать пространство функционально, разместить все необходимые зоны и места для хранения, создав грамотную и эстетичную объемную композицию. У нас получилось сделать в квартире получилось две отдельные гардеробные — в прихожей и в спальне, выделив этот объем медовым цветом стен.

Вид из прихожей на спальню и гостиную.
Для заказчицы было важно было открыть вид на арочные окна, поэтому в кухне-гостиной мы использовали рулонные шторы, а в спальне — легкие полупрозрачные занавески. Форму окон мы подчеркнули, добавив в интерьер арочное зеркало.

Прихожая, фрагмент.

Прихожая, фрагмент. Розетки и выключатели, Schneider Electric Merten D-Life.
Ванная комната сделана в монохромной гамме — на контрасте белого, графитового и медового оттенка дерева. Мы применили здесь архитектурную раскладку плитки со смещением швов, она позволила нам четко вписать все ниши и ревизионный люк для доступа к коммуникациям. Чтобы разместить отдельно стоящую ванну, о которой мечтала заказчица, мы расширили ванную комнату за счет коридора. Если есть мечта, такой предмет можно грамотно вписать даже в небольшую квартиру.

Ванная комната. Санфаянс, BelBagno. Смесители, Framolli.

Квартира 54 кв. метров в Москве. Проект Buro 2D.Татьяна Филиппова