На 55 квадратных метрах выделены кухня-гостиная, отдельная спальня и гардеробная. Пространство смотрится основательно, и небольшая площадь совсем не мешает такому ощущению.
Заказчики и задачи
Владельцы этой квартиры изначально планировали оформить ее для своей мамы. Хотели светлое пространство в серо-бежевых тонах. Со временем планы поменялись, и жилье запланировали сдавать в аренду. Дизайнер Наталья Юхнюк, основатель студии Sofa Interior, предложила усложнить цветовую гамму, добавить темных оттенков и контрастов. Сегодня здесь уже живет семья!

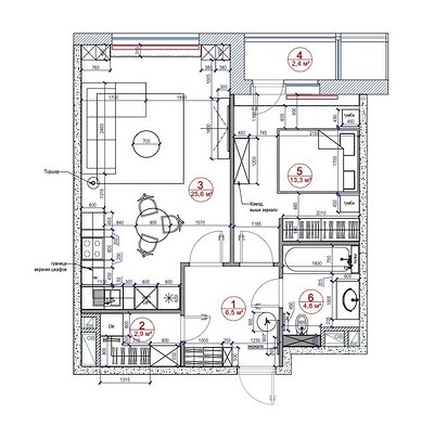
Перепланировка
Изначально квартира была евродвушкой — маленькая спальня и кухня-гостиная. Чтобы выделить место для гардеробной, «забрали» немного площади у кухни-гостиной. Так удалось освободить прихожую от шкафов. «Прихожая — это первое, что мы видим при входе, и хотелось сразу задать настроение и сохранить воздух и простор», — комментирует Наталья. Кроме того, ванную комнату немного увеличили за счет прихожей.

Отделка
Для стен во всех зонах использовали краску, украсив молдингами — прием классического стиля, который работает в любом пространстве, добавляет ритма и легкой атмосферы роскоши. Кухня-гостиная оформлена в спокойных бежевых тонах, а в спальне на стене за кроватью применили темный шоколадный оттенок. На полу в спальне уложена инженерная доска, а в кухне-гостиной — керамогранит под дерево.

В прихожей и гардеробной на полу также уложили керамогранит, но уже с рисунком мрамора и геометрическим принтом в виде ковра.

В ванной комнате скомбинировали несколько видов плитки и краску, и здесь тоже применили молдинги. «Хозяйке очень хотелось мягких коричнево-розовых оттенков — так в отделке появился нежный белый мрамор с серыми прожилками, на полу — керамогранит, который создает эффект ковра. Стиль сам диктовал не укладывать плитку до потолка, поэтому мы выделили переход бордюром и выкрасили краской стены, красиво обрамив молдингом настенный декор», — комментирует автор проекта.

Мебель и системы хранения
Для хранения в прихожей продумали небольшой встроенный шкаф, добавили комод. Основную нагрузку взяла на себя гардеробная комната, которую совместили с функцией постирочной, внутри установили стиральную машину.

Кухонный гарнитур сделали угловым, с верхним и нижним рядом шкафов двух цветов — серого и бежевого. Высокие шкафы-колонны вмещают встроенный холодильник, духовой шкаф и СВЧ. Фасады — минималистичные, так кухня привлекает к себе меньше внимания, а акцент сделали на столовой группе. В зоне гостиной хранение организовали по двум сторонам от окна — там два высоких одинаковых стеллажа, которые образуют симметричную композицию. Симметрия — еще один признак классики.
В спальне вписали вместительный шкаф-купе — из-за недостатка места распашные дверцы делать не стали.

В ванной комнате хранение организовано в шкафчике над инсталляцией унитаза — фасады сделали в цвет окрашенных стен.
Освещение
В качестве общего освещения выбрали точечные светильники. И добавили местные сценарии для того, чтобы реализовать атмосферное освещение. Это декоративные светильники — люстра в гостиной, подвес над обеденным столом, настольные лампы в спальне. Также есть подсветка штор.


Дизайнер Наталья Юхнюк, автор проекта:
Заказчики сами выбрали стиль американской классики. А так как я часто бываю в США и на выставках, сделать интерьер не составило труда. Этот стиль характеризуется непринужденностью, ощущением домашнего уюта и комфорта. Для него характерны открытая планировка кухни-гостиной, симметричные конструкции, использование натуральных материалов, преобладание спокойных оттенков, отсутствие большого количества декоративных элементов и, конечно же, приверженность традициям.
27 фото

Гостиная

Гостиная

Гостиная

Гостиная

Гостиная

Гостиная

Кухня

Кухня

Кухня

Кухня

Кухня

Спальня

Спальня

Спальня

Спальня

Спальня

Спальня

Спальня

Спальня

Спальня

Спальня

Спальня

Прихожая

Прихожая

Ванная комната

Ванная комната

Ванная комната Редакция предупреждает, что в соответствии с Жилищным кодексом РФ требуется согласование проводимых переустройств и перепланировок.

Смотреть перепланировку

Анастасия Дубровина

Екатерина Гейц Американский стиль Светлые цвета Коричневый цвет