Среда, 21 января, 2026

Мансарда с курортной атмосферой 65 м² в Светлогорске

Это интересно

Дизайнеру Алисе Бирт удалось уловить настроение и ожидания своих заказчиков, купивших квартиру в старинном курортном городе на побережье Балтийского моря

Кухня-гостиная, фрагмент.

Мансарда с курортной атмосферой 65 м² в Светлогорске

Дизайнер интерьера Алиса Бирт.

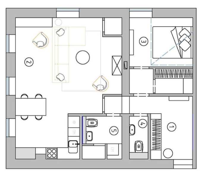
ОБЩИЕ ПАРАМЕТРЫ

Тип недвижимости: Квартира на мансардном шестом этаже в многоквартирном доме

Где находится: г. Светлогорск Калининградской области

Метраж: 65 м2

Стиль: современный с французскими нотками

Основная идея проекта: Квартира для отдыха у моря с настоящим камином

Цветовая гамма: монохром с цветными пятнами синего, охры и оранжевого

Автор проекта: дизайнер Алиса Бирт, т. +7 (952) 115-77-44

Заказчики — московская семья — купили квартиру на шестом мансардном этаже современного многоквартирного дома как альтернативу гостиничному номеру. Собственная квартира в курортном городе на Балтике — мечта, да и только. Алисе Брит предстояло превратить мечту в реальность.

Мечта — это всегда легкость, полет, беззаботность, поэтому прежде всего дизайнер избавилась от ощущения давящей крыши, которое очень часто возникает в мансарде. Скошенную стену она выкрасила в белый цвет, который «растворяет» и сглаживает все углы и нависающие над головой элементы.

Мансарда с курортной атмосферой 65 м² в Светлогорске

Кухня-гостиная, фрагмент.

Самый интересный предмет в этом интерьере — камин с настоящей дровяной топкой, облицованный белыми кружевными керамическими изразцами

Мансарда с курортной атмосферой 65 м² в Светлогорске

Поскольку в доме, построенном в 2011 году, есть дымоход, в мансарде удалось устроить настоящий дровяной камин.

Внимание перетягивает противоположная стена, черная; этот глубокий черный цвет стал идеальным фоном для белых изразцов камина вокруг которого выстроена мягкая зона. В доме есть дымоход, и это позволило устроить в мансарде настоящий дровяной камин — центр притяжения в кухне-гостиной.

Каминная группа одновременно является и телевизионной, но телевизор на фоне четной стены незаметен, что отвечает желаниям заказчиков. «Цвета стен лаконичные, но они решают много задач в этих геометрически сложных помещениях, — объясняет автор проекта. — Например, дымоход от камина и вентканал от вытяжки на кухне выкрашены в черный, и это делает их незаметными».

Мансарда с курортной атмосферой 65 м² в Светлогорске

Кухня-гостиная, фрагмент. Обеденная группа расположилась под мансардным скосом. Стол со столешницей из натурального дерева, Kare Design. Стулья The Masters, дизайн Филиппа Старка для Kartell.

«Классическая форма камина и небольшой отсыл к французскому стилю предполагают  наличие симметрии — для этого в гостиной было решено выстроить небольшую, но функциональную кладовую, которая в точности повторят форму и размер уже имеющегося „тамбура“ перед входом».

Мансарда с курортной атмосферой 65 м² в Светлогорске

Столовая группа.

Мансарда с курортной атмосферой 65 м² в Светлогорске

В зоне кухни тоже выстроили небольшую стеночку, за которой спрятался самый громоздкий предмет — встроенный холодильник, а вместе с ним и вся остальная кухонная техника. В спальне удалось выстроить гардеробную с отдельным входом, что позволило избежать установки большого гардеробного шкафа и сделать спальню только спальней.

Мансарда с курортной атмосферой 65 м² в Светлогорске

Кухня. Встроенный двухметровый холодильник, посудомоечная машина, система очистки воды, духовой шкаф с функцией микроволновой печи, полноценная индукционная варочная поверхность, мощная вытяжка, фурнитура — все от Blum.

Больше всего дизайнер гордится тем, как получилась кухня-гостиная: «У нее много функций, которые гармонично сочетаются друг с другом: здесь есть хорошо оснащенная кухня, не перетягивающая на себя внимание, не кричащий о себе телевизор прямо напротив дивана, и изюминка проекта — хорошо вписанный камин». А главной своей удачей она считает то, что ей удалось уловить настроение и ожидания своих заказчиков и самой получить массу приятных впечатлений от работы. Хорошо, когда все складывается именно так, как и было задумано.

Мансарда с курортной атмосферой 65 м² в Светлогорске

Аскетичная спальня: кровать с металлическим каркасом и таким же изголовьем, выкрашенным в черный цвет в поддержку общей стилистике квартиры. Кровать изготовлена на заказ.

Мансарда с курортной атмосферой 65 м² в Светлогорске

Прихожая.

Мансарда с курортной атмосферой 65 м² в Светлогорске

Ванная комната.

Мансарда с курортной атмосферой 65 м² в Светлогорске

Гостевой санузел.

Мансарда с курортной атмосферой 65 м² в Светлогорске

Татьяна Филиппова

Новое на сайте

ГД отклонила запрет привлекать коллекторов к взысканию долгов по

Это касается всех кредитов, в том числе взятых на покупку жилья. Также была отклонена предлагаемая норма запретить банкам переуступать...

Похожие статьи

Если вы хотите получать уведомления на свой E-mail о появлении новых статей, то рекомендуем вам чуть ниже ввести свой электронный почтовый адрес.