Студия Лины Князевой выполнила пожелание своего клиента и спроектировала для него монохромный интерьер без визуального шума
Кухня-гостиная. Диван и стол, SKDesign. Обеденные стулья, Barcelona Design. Ковер, Dovlet House. Паркет, «Косвик».

Дизайнер Лина Князева.
ОБЩИЕ ПАРАМЕТРЫ
Тип недвижимости: квартира в новом доме
Где находится: Москва, ЖК «Лайф Кутузовский»
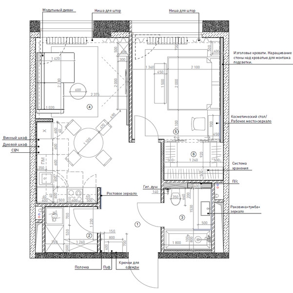
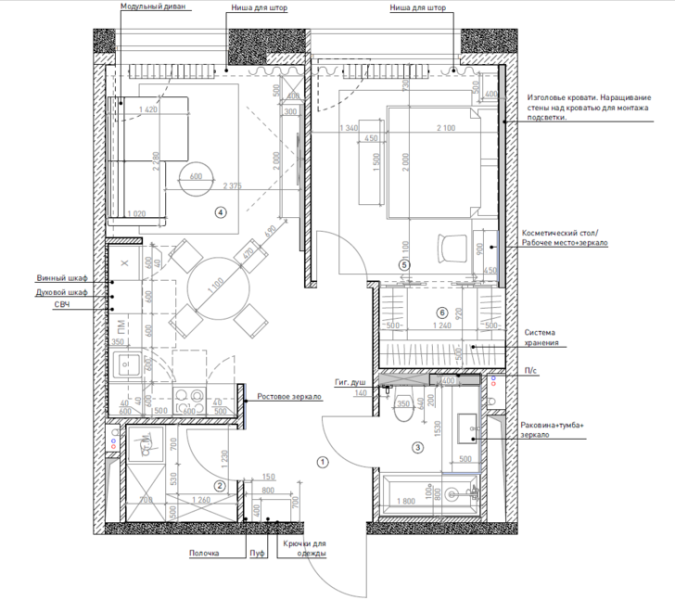
Метраж: 53,5 м2
Стиль: современный
Цветовая гамма: черно-серая-белая-молочная
Автор проекта: дизайнер Лина Князева, т. 7 (917) 572-32-75, t.me/linaknyazeva, www.linaknyazeva.ru
Заказчик, тридцатилетний холостяк, занимается созданием видеоигр, работает дома, поэтому интерьер ему нужен был нейтральный, монохромный, без ярких и отвлекающих акцентов. Иными словами, такой, в котором одинаково хорошо можно было бы и работать, и отдыхать.
Студия Лины Князевой сделала все возможное, чтобы создать в небольшой квартире комфортную обстановку. Квартиру разделили на шесть функциональных зон: прихожую, кухню-гостиную, спальню, гардеробную, ванную комнату и постирочную. Во всех помещениях использовали одни и те же отделочные материалы (это помогает сделать пространство однородным и визуально цельным), а разнообразие внесли при помощи дизайнерского света.

Кухня-гостиная, фрагмент. Кухня сделана на заказ по эскизам автора проекта. Обеденный стол, SKDesign. Стулья, Barcelona Design.
Поскольку цвета в квартире нет, дизайнеры решили поиграть с фактурами. «После общения с клиентом стало понятно, что ему нравится эффект грубовато-шершавой штукатурки на стене, — рассказывает Лина Князева. — Мы использовали две немного отличающиеся фактуры в гостиной за диваном и в спальне за кроватью. Ненавязчиво подсветили стены, чтобы подчеркнуть рельефность».

«Мне нравится видеть, как лаконичный интерьер магическим образом преображается при помощи декора, — говорит Лина. Рисунок на ковре, а также его мягкая фактура придают определенную характерность всему помещению. Мягкий ковер в сочетании с угловатым прямоугольным журнальным столиком — один из моих любимых элементов в этом интерьере».

Зона гостиной, фрагмент. Журнальный столик, Moon Stores. Ковер, Dovlet House.

Зона гостиной, фрагмент. Диван, SKDesign.
Стену с телевизором выделили с помощью крупноформатного керамогранита, рисунок которого напоминает фактуру темной штукатурки. Часть стены выдвинули вперед, чтобы спрятать кронштейн. По наблюдениям Лины, на фоне темной стены телевизионная панель выглядит более масштабно.

Спальня. Кровать, AKDesign. Светильники, Аromas. Стеклянная перегородка, FD Mebel.
В спальне две функциональные зоны разделили при помощи черной стеклянной перегородки. «При этом мы задействовали максимум площади под хранение вещей клиента, — подчеркивает Лина, — с запасом на годы вперед». Раздвижные двери экономят место в компактной спальне, стекло делает ее более глубокой.

Спальня, фрагмент. Кровать, AKDesign. Светильники, Аromas. Стеклянная перегородка, FD Mebel.

Спальня, фрагмент. Паркет, «Косвик».

Спальня, фрагмент. Небольшой столик может выполнять роль рабочего и туалетного.
В прихожей повесили большое зеркало во всю высоту стены с подсветкой, которое идеально сочетается с высокими дверьми. Клиенту было важно иметь двери до потолка, так как ему давно нравился такой дизайн.

Прихожая. Банкетка, Boca.
В ванной Лина сделала нишу с подсветкой, чтобы помещение выглядело больше и вместительнее, чем оно есть на самом деле. Овальное зеркало смягчает строгую прямоугольную форму тумбы под раковину и придает уют всему помещению.
Все эти детали создавались при активном участии клиента, а в большинстве случаев — по его пожеланиям. «Я горжусь, что мне удалось сделать квартиру комфортной в мелочах и при этом сохранить целостность дизайна, ту концепцию, которая была разработана в самом начале», — говорит дизайнер.

Ванная комната, фрагмент.

Ванная комната, фрагмент.


Квартира 58 кв. метров в новом доме в Москве. Проект Лины Князевой.
