Понедельник, 10 ноября, 2025

Московская квартира 40 м² в стиле кинфолк

Это интересно

Теплые охристые оттенки, природные фактуры и винтажные предметы помогли дизайнеру Валентине Иванниковой создать уютный интерьер квартиры под сдачу в аренду

Диван, Westeny. На стене — оформленная литография работы Куинджи «После грозы». Краска, Flugger.

ПАРАМЕТРЫ ОБЪЕКТА

Тип недвижимости: апартаменты в новом доме элит-класса

Где находится: Москва, ЖК I’m

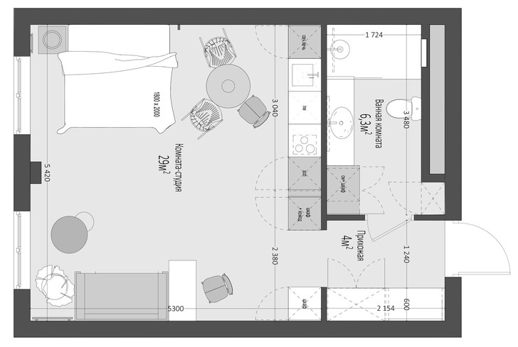
Метраж: 40 м2

Стиль: современный стиль с отсылками к кинфолку

Основная идея проекта: объединить современный функциональный интерьер с натуральными фактурами, материалами и винтажными предметами

Цветовая гамма: охристо-монохромная с изумрудно-зелеными акцентами

Авторы проекта: дизайнер Валентина Иванникова, www.tataroom-design.ru

Московская квартира 40 м² в стиле кинфолк

Терракотовый журнальный столик, La Redoute. Металлический журнальный столик, Ominimalism.

Заказчики проекта, люди состоявшиеся и зрелые, приобрели эту квартиру в качестве инвестиций. Статус нового жилья предполагал, что уровень вложений будет несколько выше обычного ремонта под сдачу, а архитектура дома отчасти продиктовала стилевое направление будущего интерьера.

Из окон квартиры открывается вид здания XIX века. Их лаконичный облик и нейтральный оттенок фасадов повлиял на выбор цветовой гаммы интерьера. «Мы решили уйти от безликости и отказались от светлых стен в пользу охристого тона. Нам хотелось, чтобы в квартире было тепло и уютно круглый год. Это был наш общий эксперимент с заказчиками, результат которого порадовал и нас, и арендаторов, — рассказывает дизайнер Валентина Иванникова, — Вторым основным цветом стал антрацит — он появился в оформлении кухонных фасадов, и усилился до черного оттенка в текстиле, на диване и в отделке стульев. Таким образом мы получили графичное и выразительное пространство».

Московская квартира 40 м² в стиле кинфолк

Кухня, мастерская Андрея Рязанова. Керамогранит Prada, Porcelanosa. Бетонный стол Павла Трещалина, мастерская @terrazzo.moscow. Винтажный сервиз, Villeroy & Boch.

Квартира изначально была свободной планировки: прямоугольное помещение с высоким потолком и двумя большими французскими окнами в пол. «Мы не стали делить площадь на две комнаты, чтобы сохранить ощущение простора. Это усложнило организацию пространства, нужно было найти всему свое место. Так кровать расположилась ближе к окну. Мягкие римские шторы днем приглушают свет, а вечером закрывают окна от любопытных глаз. Подвесной светильник отсылает к дизайну 60-х, также, как и декор на тумбочке».

Московская квартира 40 м² в стиле кинфолк

Кровать, Rhome.

Московская квартира 40 м² в стиле кинфолк

Стулья, La Redoute. Подвесной светильник Annular, Woud.

Московская квартира 40 м² в стиле кинфолк

Письменный стол выполнен из массива ясеня в мастерской Андрея Рязанова. Стул, Vitra.

Напротив кровати находится диван. Заказчики выбрали раскладную модель дивана, на случай, если в квартире будут гости и понадобится еще одно спальное место. Для прихожей был спроектирован большой встроенный шкаф. «Здесь мы сделали широкую нишу с зеркалом и местом для сидения, чтобы загромождать мебелью небольшую входную зону. Кухня и гардеробная система представляют собой единый объем, вытянутый вдоль стены. Я не хотела визуально разделять платяные шкафы от кухонных — чтобы сохранить целостность интерьера».

Московская квартира 40 м² в стиле кинфолк

Прикроватная тумбочка выполнена по эскизам дизайнера в мастерской Андрея Рязанова. Подвесной светильник Halo, Design Dallas. Картина с фарфоровым медальоном, винтаж. Текстиль, Zara Home.

Московская квартира 40 м² в стиле кинфолк

Стул-вешалка ручной работы, Ceccotti. Шкафы выполнены в мастерской Андрея Рязанова.

По задумке автора проекта в кухне должен был разместиться круглый бетонный стол испанского производства, но пандемия внесла корректировки, и было принято решение отливать бетонный стол в Москве по эскизам дизайнера. В композицию к столу добавили легкие деревянные стулья.

Московская квартира 40 м² в стиле кинфолк

Прихожая. Краска, Flugger. Освещение, Centrsvet. Панель для входной двери выполнена в мастерской Андрея Рязанова.

Московская квартира 40 м² в стиле кинфолк

Фрагмент прихожей.

В проекте удалось выделить место для большой и функциональной ванной комнаты. Центральное место заняла подвесная столешница из мрамора Carrara. Под ней предусмотрена полка для полотенец. Ее зелено-изумрудный оттенок перекликается с цветом рамы, украшающей зеркало. Также дизайнер спроектировала встроенные шкафы, за фасадами которых скрываются стиральная машина, пылесос и гладильная доска.

Московская квартира 40 м² в стиле кинфолк

Столешница выполнена из мрамора Carrara. Смеситель, VitrA. Полка шпонированная ясенем, мастерская Андрея Рязанова. Корзины, ZaraHome. Оловянный поднос, винтаж.

Московская квартира 40 м² в стиле кинфолк

Керамогранит Prada, Porcelanosa. Бельевая веревка, Keuco. Скамейка, Zara Home. Освещение, Centrsvet.

Московская квартира 40 м² в стиле кинфолк

Квартира в Москве. Проект Валентины Иванниковой.

Новое на сайте

В Москве предложение жилья на стадии котлована снизилось почти в 2

Наиболее заметное сокращение предложения столичных новостроек на начальной стадии строительства за год пришлось на массовый сегмент ...

Похожие статьи

Если вы хотите получать уведомления на свой E-mail о появлении новых статей, то рекомендуем вам чуть ниже ввести свой электронный почтовый адрес.