Пастельные тона и сочетание винтажных и современных деталей помогли дизайнеру Сабине Валиевой воссоздать в московской квартире атмосферу Парижа
Подвесной светильник, Forestier Paris. Стулья, Roomers. Перегородки, «Академия дверей».

дизайнер Сабина Валиева
ПАРАМЕТРЫ ОБЪЕКТА
-
Тип недвижимости: квартира в новостройке
-
Где находится: Москва, ЖК «Счастье на Соколе»
-
Метраж: 50 м2
-
Стиль: парижская эклектика
-
Основная идея проекта: создать в квартире настроение современного Парижа
-
Цветовая гамма: молочный, фисташковый + яркие акценты
-
Авторы проекта: дизайнер Сабина Валиева в сотрудничестве с компанией «Вира-АртСтрой»; sab.designer, eremont

Вазы Конcтантина Станового и Taina.Co. Фруктовница, Taina.Co. Шторы, Estetica. Лепнина, Orac Decor. Точечные светильники, «Центрсвет». На стенах — краска, Little Greene.
Эта квартира принадлежит молодой девушке, которая живет и работает на два города: Москву и Милан. Перед нами стояла задача создать интерьер в духе парижских квартир — легкий, воздушный, с винтажными и современными деталями, — рассказывает дизайнер Сабина Валиева.

Диван, Estetica. Плед и подушка, HKLiving и L’Appartement. Картина Ольги Леонтьевой «Горизонт».
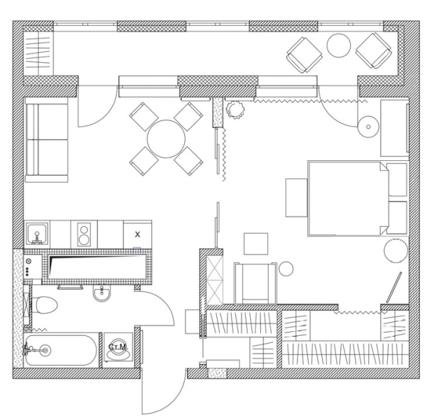
«Квартира изначально была со свободной планировкой. Мы стремились создать максимально открытое многофункциональное пространство, поэтому зону кухни-гостиной и спальню было решено разделить при помощи прозрачных раздвижных перегородок. Несмотря на относительно небольшую площадь, помимо основных функциональных зон, нам удалось организовать в спальне и прихожей отдельные гардеробные».

Кухня, Giulia Novars. Смеситель и раковина, Omokiri. Ваза Софии Карнукаевой.
«Чтобы воссоздать атмосферу парижской квартиры, при разработке цветового решения мы отдали предпочтение приглушенным тонам. Все жилое пространство выполнено в нежном фисташковым оттенке, а особый шарм ванной комнате придает сочетание белой плитки „кабанчик“ и светло-розовой краски. Также мы постарались связать воедино классические и современные элементы».

Вид на спальню. Люстра, Schuller. Кровать, Estetica.
«В прихожей нас встречает большое зеркало в позолоченной патинированной раме. Его дополняет винтажное бра 1960-х годов. Черная консоль на изящных резных ножках гармонично сочетается с ультрасовременным зеркалом с синей окантовкой».
«Дальше мы попадаем в общее пространство, где расположилась обеденная зона, небольшой удобный диван и кухонный гарнитур. Верхние шкафы кухни мы решили не доводить до потолка, чтобы он казался выше. Открытая труба вытяжки придает кухне легкую небрежность, свойственную парижским квартирам. Столовую зону подчеркивает гипсовая розетка и современный каркасный светильник. Его мягкие формы перекликаются с плавными линиями лепнины».

Постельное белье, покрывало, декоративные подушки, Ateliertati. Прикроватный столик, Eburet studio. Зеркало, Bekhana. Ковер, Kultura Kovrov.

Туалетный столик, Bekhana. Стул с ручной вышивкой Татьяны Подуфаловой, the.DOT.home. Вазы, Taina.Co. Постельное белье и покрывало, Ateliertati. Ковер, Kultura Kovrov.
«Спальня находится за стеклянными перегородками, которые при необходимости можно дополнительно закрыть плотным белым тюлем. Центр комнаты занимает кровать с минималистичным изголовьем, а над ней располагается итальянская люстра из крупного стеклянного бисера. Туалетный столик выполнен на заказ турецкими мастерами и своей формой и цветом напоминает мебель 60-70 годов. Справа от кровати мы поставили зеркало во французской стиле, которое создает контраст с расположившимся рядом столиком из переработанного пластика. За плотной шторой скрывается основная гардеробная, где мы также мы предусмотрели место для хранения гладильной доски и утюга».

Зеркало в золотой раме, Bekhana. Бра, дизайн Карло Нейсона, Mazzega, Италия, 1960-е. Керамогранит, Adex.

Прихожая. Консоль, Bekhan. Зеркало, мастерская Papa Carlo. На консоли подсвечники Софии Карнукаевой.

Квартира в Москве. Проект Сабины Валиевой.