В этом проекте интересно все: начиная от расстановки мебели и техники в крошечном пространстве (дизайнеру удалось вместить кухню, рабочую зону, спальню и сделать душевую с туалетом 1,4 кв. м) и заканчивая расположением дома, где находится эта комната — в самом центре Санкт-Петербурга, на Фонтанке, это Дом дирекции императорских театров, построенный в 1835 году.
Заказчик и задачи
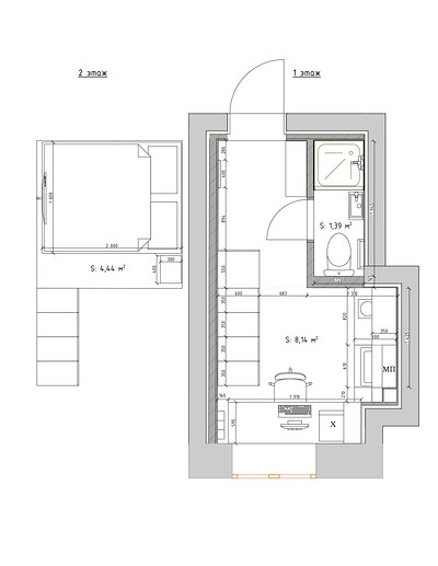
Владелец этой комнаты в коммунальной квартире — мужчина — вырос здесь. В маленьком пространстве 10,7 кв. м он хотел разместить спальню, кухню, рабочее место, обустроить санузел и организовать системы хранения. Дизайнер Полина Андреева называет свой проект вызовом. И действительно — без виртуозного владения приемами дизайна решить эту задачу было бы невозможно.

Перепланировка
Комната расположена в историческом доме. Этот объект — бывшая комната кухарки. Но то, что недвижимость документально не является жилой, позволило организовать «мокрые» зоны, фактически превратив комнату в квартиру со своими удобствами.
Изначально пространство было разделено на два уровня. Высокие потолки — почти 4 метра — это позволяли. Только вот второй ярус перекрывал единственное окно.
Автор проекта решила так же воспользоваться преимуществом высоких потолков, и спальню организовала на новой антресоли. Под ней — санузел и прихожая. Рабочая зона организована у окна, а рядом расположилась мини-кухня. На антресоль ведет небольшая лестница, в которую встроены ящики для хранения.

Отделка
Для стен выбрали светлую краску с легким холодным подтоном, что визуально расширило пространство почти вдвое (сравните с фото «до», где были темные стены). На полу первого уровня уложили ПВХ-плитку, она же — в санузле. А вот для покрытия пола антресоли использовали паркетную доску — натуральный и тактильно приятный материал.
На стенах маленького санузла скомбинировали краску и плитку — последнюю в зоне непосредственного попадания воды. Для кухонного фартука выбрали глянцевую прямоугольную плитку красивого бирюзового цвета, которая «ловит» солнце из окна и становится эффектным акцентом.

Мебель и системы хранения
Мебель выполнили на заказ. Основная система хранения — это шкаф-лестница.

Рабочий стол сделали с выдвижными ящиками и предусмотрели стеллаж с открытыми полками рядом. Под столешницей установлен мини-холодильник.
Кухонный гарнитур — компактный. Здесь разместили шкафчики для хранения, в верхний шкаф встроили микроволновку, а на столешнице установили варочную панель на две конфорки.

В зоне спальни — небольшая тумбочка для мелочей.

В маленькой прихожей — обувница и настенные крючки для верхней одежды. А на противоположной стене — шкафчик, где скрыта гладильная доска. Фасад отделан зеркалом, так что в закрытом виде ничего не указывает на хозяйственное назначение этого предмета.

Отдельная задача — обустройство санузла, который по площади равен всего 1,4 квадрата. Здесь удалось уместить душевую 70х70 см, мини-раковину с тумбочкой и унитаз, развернутый углом.

Освещение
На потолке разместили массивную люстру, которая освещает все небольшое пространство, но, конечно же, предусмотрели и дополнительные сценарии освещения. Это настенные бра на первом и втором этажах, подсветка стеллажа, кухонных шкафов и поручня лестницы.


Дизайнер Полина Андреева, автор проекта:
Заказчик вырос в этой комнате. Раньше часть окна была закрыта вторым ярусом, а лестница располагалась у входа. Мне захотелось развернуть ее, чтобы пустить естественный свет во все помещение, а второй ярус оставить только для кровати. Поскольку нужно много мест хранения, то лестница выполнила функцию шкафа. Каждый фасад открывается, получилось очень функционально. Конечно, мы понимали, что по лестнице лучше ползти наверх, а не подниматься (смеется), но постарались сделать ее максимально удобной, насколько это возможно, учитывая площадь помещения.
16 фото

Вид сверху на нижний уровень

Рабочая зона

Кухня

Кухня

Фрагмент стеллажа

Фрагмент кухни

Лестница-шкаф

Вид на антресоль

Вид с лестницы

Спальня

Спальня

Спальня

Спальня

Прихожая

Прихожая, вид на санузел

Санузел
Как квартира выглядела до ремонта


Бонус: парадная дома и вид на набережную Фонтанки, где расположен дом
6 фото






Редакция предупреждает, что в соответствии с Жилищным кодексом РФ требуется согласование проводимых переустройств и перепланировок.

Смотреть перепланировку

Анастасия Дубровина

Кристина Плеер

Дарья Кузнецова Маленькие квартиры Современный стиль Светлые цвета