У дизайнера Наталии Смородиной получился комфортный и уютный интерьер. Здесь продуманная детская для двоих детей, где каждому есть место, родительская спальня и общая зона для сборов всей семьи. Важный аспект — вместительные системы хранения.
Заказчики и задачи
Владельцы квартиры — семья с двумя детьми — хотели создать интерьер в современной эстетике и натуральной гамме, для чего обратились в студию дизайнера Наталии Смородиной. Особое внимание требовалось уделить системам хранения. Причем они должны были быть лаконичными, максимально сливающимися с обстановкой.

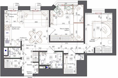
Перепланировка
Изначальная планировка квартиры вполне удачная: две изолированные комнаты, общая кухня-гостиная, ванная, маленький санузел, гардеробные в прихожей и в спальне, а также хозяйственное помещение. Но дизайнер предложила ее улучшить. Так, перегородку между кухней-гостиной и коридором убрали, расширив пространство. Это позволило задействовать площадь коридора в большей пользой, разместив обеденную зону.

В спальне отказались от гардеробной, чтобы разместить полноразмерную двуспальную кровать, оставив место для проходов.
Вход в детскую был из коридора, но его решили сделать из кухни-гостиной, чтобы, опять же, была возможность правильно расставить мебель. В прихожей возвели перегородку для встройки шкафа.
Отделка
Критерий выбора отделочных материалов — натуральность. Хотелось использовать природные материалы и натуральные цвета. Поэтому для основной отделки стен выбрали светлую серо-белую краску. Акцентные участки в общей зоне (стену рядом с диваном, в коридоре и за кроватью в спальне) оформили декоративной штукатуркой. Рисунок, который получился в итоге, разрабатывала дизайнер. В детской на стене над кроватями использовали обои-панно.

На полу во всех зонах, исключая санузлы — инженерная доска шоколадного оттенка. В ванной комнате и санузле использовали керамогранит под камень. В ванной — более темный, в санузле — графитовый. Скомбинировали эту текстуру с керамогранитом и панелями под дерево.
Мебель и системы хранения
Системы хранения проектировали на заказ по эскизам дизайнера, чтобы учесть все потребности семьи и использовать каждый уголок квартиры. Фасады у шкафов лаконичные, гармонирующие с интерьером.

Так, при входе оставили гардеробную, предусмотренную застройщикам, там выделили место для хранения одежды и неглубокие полки для сумок, головных уборов. Справа от входа — консоль для мелочей, а дальше по стене — шкаф для одежды. Там же спрятан электрощиток.

На кухне спроектировали угловой гарнитур, дополнив шкафы стандартной глубины узкой витриной у окна. Это сделано для того, чтобы не загораживать виды. Верхние шкафы гарнитура — в светлом оттенке для визуального облегчения пространства.

В детской — платяной шкаф, а также подвесной у окна для хранения книг и разных принадлежностей. В зоне окна обустроили рабочий стол на двоих. Отсутствие прикроватных тумбочек компенсировали. Для кровати, приближенной к окну, роль тумбочки играет рабочий стол. А для второй сделали углубление в торце шкафа, который стоит рядом.

В спальне вместо гардеробной сделали встроенный шкаф со светлыми фасадами, который не загромождает пространство, но выполняет прямую функцию хранения.
В ванной комнате для хранения предусмотрена тумба под раковину и полочки-ниши над инсталляцией унитаза. Также есть узкий хозяйственный шкаф для хранения швабры.

В санузле — встроенные полки рядом с унитазом и закрытый шкафчик над ним.

Также застройщик предусмотрел хозяйственную комнату, ее превратили в постирочную со стиральной и сушильной машинами, местом для хранения средств для уборки и одежды.

Освещение
В освещении сделали ставку на современный стиль светильников и их графичность — выбрали темные профили, которые контрастируют с цветом потолка. Основной сценарий света — магнитные треки, на которые можно добавлять светильники при необходимости, и линейные светильники. Подвесы использовали в общей зоне — над барной стойкой и обеденным столом, а также в спальне по бокам от кровати. Также дополнили сценарии бра. Кроме того, запроектировали скрытые подсветки, которые добавляют камерной атмосферы.

Дизайнер Наталия Смородина, автор проекта:
В отделке интерьера активно применяли зеркала, прежде всего, для визуального увеличения пространства. Трековые светильники в черном цвете, лаконичные формы подвесов и декора плюс зеркала разбавляют нейтральный интерьер и придают графичности. Отказ от портьер в традиционном исполнении позволил сохранить 20 см в зоне кухни-гостиной. Текстиль использовали преимущественно однотонный, в тех же оттенках, что и весь интерьер.
20 фото

Кухня

Кухня

Кухня

Кухня

Гостиная

Гостиная

Столовая

Спальня

Спальня

Спальня

Спальня

Детская

Детская

Детская

Детская

Детская

Вид из детской на кухню

Ванная комната

Ванная комната

Ванная комната Редакция предупреждает, что в соответствии с Жилищным кодексом РФ требуется согласование проводимых переустройств и перепланировок.

Смотреть перепланировку

Анастасия Дубровина

Наталья Вершинина Современный стиль Светлые цвета