Минимализм в моде сегодня, но не всем подходят такие интерьеры и стиль. Эта квартира — отличный пример работы с разными отделочными материалами, фактурами и классическими приемами, которые выглядят уютно, а не помпезно.
Заказчик и задачи
Эта квартира в одном из домов постройки конца 2000-х в подмосковном Королеве принадлежит женщине. По профессии она юрист, увлечена путешествиями, не пропускает новые выставки и постановки в театрах, любит посещать новые места, при этом с удовольствием принимает дома гостей — друзей и взрослую дочь с ее семьей. К дизайнеру Надежде Ященко хозяйка обратилась с запросом на функциональную кухню, вместительную обеденную зону, практичные системы хранения. Хотела сделать нарядный и женственный интерьер, который стал бы ее отражением.

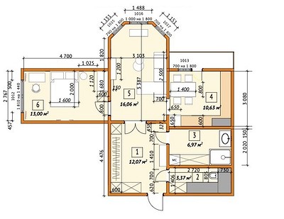
Планировка
Квартира не нуждалась в перепланировке. Это достаточно просторная двушка с большой прихожей, гостиной с эркером, спальней, кухней, раздельными ванной и санузлом. Гостиная — проходная комната. Через нее организованы входы на кухню и в спальню с разных сторон.

Отделка
Основным стилем была выбрана современная классика, но не помпезная, а уютная. И за уют, в большей мере, отвечают обои, которые украсили стены в спальне и гостиной. В первом случае это акцентные обои, размещенные на стене за изголовьем кровати. Выбрали цветочный рисунок. В гостиной два вида полотен. Основные — обои в полоску. Вертикальная полоска помогает вытянуть невысокий потолок. На стене напротив дивана — панно с графичным рисунком деревьев. Стены на кухне и в прихожей окрашены стойкой краской.

На полу в комнатах уложена инженерная доска. Для кухни и холла выбрали керамогранит под мрамор. В ванной комнате и санузле — прямоугольная белая плитка, дополненная акцентной фиолетовой керамикой и мозаикой.
Мебель и системы хранения
Самая большая система хранения — шкаф во всю длину стены в прихожей. Его выполнили на заказ и предусмотрели как для хранения одежды, сезонных вещей, так и для хозяйственных целей.

Также в холле установили комод для разных мелочей.

В спальне — готовый шкаф для одежды, в гостиной — тумба под телевизор и витрина, все это куплено в ИКЕА.

Кухню выбрали от белорусского производителя. Это угловой двухцветный гарнитур с верхним и нижним рядом шкафов. Верхние, традиционно, сделали светлыми. Обеденный стол раскладывается, как и хотела хозяйка, чтобы вместить больше гостей.

Освещение
Общий свет решен с помощью люстр, что традиционно для интерьера классического направления, а местные сценарии — подвесы в спальне, настольная лампа в гостиной, подсветка рабочей поверхности кухни — нужны и для функциональности, и для создания более камерной, расслабленной обстановки.


Надежда Ященко Дизайнер, автор проекта
Классические элементы здесь присутствуют в мебели и отделке; есть цвет, но при этом получилась неброская цветовая гамма. Входные двери со стеклом в гостиную придают интерьеру легкость и прозрачность. Окна украшают легкие портьеры с цветочным рисунком. На стенах разместили живопись разных авторов из коллекции заказчицы.
13 фото

Кухня

Кухня

Кухня

Кухня

Гостиная

Гостиная

Спальня

Спальня

Прихожая

Прихожая

Ванная комната

Ванная комната

Ванная комната Редакция предупреждает, что в соответствии с Жилищным кодексом РФ требуется согласование проводимых переустройств и перепланировок.

Смотреть перепланировку

Анастасия Дубровина

Ольга Браво

Мария Маркус Светлые цвета Современная классика