Этот дом стоит в плане реновации на 2027 год, но хозяева решили не жить еще несколько лет в старом ремонте, а сделать его сейчас. Получилось очень красиво и стильно!
Заказчики и задачи
Владельцы этой квартиры — молодая семейная пара. Супруг работает в IT, супруга — преподаватель. Семья обратилась к дизайнеру Лидии Напреенко из студии Mimosa Interiors с просьбой оформить новый интерьер. Нужно было предусмотреть два рабочих места в квартире, а еще уголок для хозяйки, где она могла бы заниматься любимым хобби — вязанием.

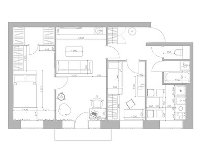
Планировка
Планировку не меняли, кроме того, что убрали встроенный шкаф с антресолью в прихожей. В остальном она осталась той же. Три комнаты (одна проходная — гостиная), маленькая кухня, раздельные ванная и санузел. При спальне есть гардеробная. Третью комнату отвели под кабинет-будущую детскую, она не участвовала в съемке.
Отделка
Для отделки стен выбрали обои под покраску. В гостиной на стене с дверью в спальне — обои-фреска с цветочным рисунком, которая оживила пространство.

В спальне стена с дверью в гардеробную тоже оклеена обоями, чтобы добавить акцента однотонным стенам. Для пола в комнатах выбрали ламинат, в прихожей и на кухне уложена одинаковая плитка.

Фартук кухни — плитка-терраццо, ее же использовали и для отделки зоны ванны. Также повторяется плитка на полу в санузле и в ванной комнате.

Такой ход в единстве материалов маленьких помещений позволяет не дробить интерьер и не делать его визуально еще меньше, а еще упростить процесс ремонта — проще закупить три вида плитки и распределить его по зонам, чем четыре или пять. Иногда это еще и способ сэкономить.

Системы хранения и мебель
У хозяев была выделена гардеробная еще во время предыдущего ремонта, но дизайнер разместила еще и достаточное количество шкафов для всех нужных вещей. Так, шкаф для верхней одежды есть в прихожей, его получилось вместить благодаря сносу перегородки в процессе ремонта.
В гостиной — тумба под телевизор и система подвесных шкафов, где можно хранить книги, какие-то сезонные вещи. В спальне, кроме гардеробной, есть шкаф и стеллаж, последний выполняет роль прикроватных тумб с одной стороны, а с другой — вмещает косметику и парфюмерию.

Комнаты достаточно вытянутые, и это пришлось корректировать с помощью расстановки мебели. Так, в спальне кровать стоит по центру комнаты изножьем к окну, а оставшееся пространство — это зона хранения и макияжа. Роль макияжного столика выполняет подвесная консоль, рядом на стене — большое зеркало.

В гостиной визуально сделали две зоны, поставив диван спинкой к окну. У окна же — рабочий стол для хозяйки и кресло, где она вяжет.

Кухня здесь очень маленькая. Решили гарнитур разместить по одной стене, а остальные оставить свободными, чтобы уместилась еще и обеденная зона. Тем не менее есть вся нужная техника и место для хранения. В одном из нижних шкафов — посудомоечная машина. В шкафу-колонне встроена духовка с функцией СВЧ, а под ней — маленький холодильник. Все остальные отданы под хранение.

В ванной комнате решили установить ванну, а не душ. Раньше здесь была именно душевая, хозяева выбрали ее, чтобы освободить место для стиральной машины. Тем не менее она стояла под раковиной. И в новом интерьере это было, в целом, единственное для нее место. Чтобы провести коммуникации, пришлось приподнять пол, но хозяевам это привычно и удобно. Для хранения разных бытовых принадлежностей есть шкафчик над инсталляцией унитаза в санузле.

Освещение
Потолок в квартире совсем невысокий, поэтому в качестве общего сценария света выбраны лаконичные точечные светильники. Подвесы использовали для дополнительного освещения обеденного стола и в спальне над изголовьем кровати.

Лидия Напреенко Дизайнер, автор проекта
У нас должна была получиться уютная квартира для отдыха после рабочего дня, где можно собраться в гостиной и уютно провести вечер. Бюджет и время были ограничены, поэтому часть мебели — шкаф в спальне и прихожей — осталась от старого ремонта. Остальную подбирали с минимальными сроками изготовления или вовсе из наличия. Ремонтные работы завершились за три месяца с учетом большого объема демонтажа старых коммуникаций и отделочных материалов.
11 фото

Гостиная

Гостиная

Гостиная

Гостиная

Гостиная

Гостиная

Кухня

Кухня

Кухня

Кухня

Спальня
Как квартира выглядела до ремонта
12 фото












Редакция предупреждает, что в соответствии с Жилищным кодексом РФ требуется согласование проводимых переустройств и перепланировок.

Смотреть перепланировку

Анастасия Дубровина

Леонид Сёмов

Екатерина Лаптева Хрущевки Маленькие квартиры Светлые цвета