Превратить однокомнатную хрущевку в удобное и стильное жилье? Легко! Рассказываем и показываем на примерах, как это сделать.
Площадь однокомнатной хрущевки сравнима со среднестатистической студией, только вот пространство не объединено, а разбито на отдельные маленькие помещения. Прибавьте к этому низкие потолки, старые коммуникации и плохую шумоизоляцию — кажется, что сделать из таких исходных данных удобное современное жилье почти невозможно. Но это не так, и в статье мы покажем на примерах, как можно преобразить типовую однушку и как правильно распорядиться имеющейся площадью.
Все о дизайне однокомнатной хрущевки
Особенности жилья
Перепланировка
Советы по оформлению
Примеры проектов
  — Поп-арт и 60-е
  — Квартира коллекционера
  — Чистый минимализм
  — Функциональность и эстетика
  — Образцовый контемпорари
Особенности жилья

Площадь однушек хрущевского периода варьируется от 28 до 34 кв. м — в зависимости от года постройки и серии дома.
Из них отводится:
- 5-6 кв. м — под кухню.
- 16-20 кв. м — под единственную жилую комнату.
- 3-4 кв. м — под прихожую и коридор.
- 2,5-3,5 кв. м — под совмещенный санузел.
Почему так неэргономично? Дело в самой концепции хрущевского жилья. Дома того периода возводились массово и быстро, они предназначались для временного проживания и не предполагали долгой эксплуатации. На семью выделялся минимум жилого пространства. Тем не менее большинство зданий стоят до сих пор, и в них можно жить. Но с учетом некоторых особенностей.
- Низкие потолки. От 2,5 в ранних и до 2,7 м в поздних сериях. Изменить это никак нельзя, только создавать визуальную иллюзию.
- Мало света. Помимо того, что проемы сами по себе небольшие, они выходят на одну сторону (если квартира не угловая), и дальняя часть жилой комнаты оказывается очень плохо освещена.
- Тонкие стены. Из-за этого в комнатах может быть холодно, а еще слышно все, что происходит у соседей. Исправить это поможет только дополнительная шумо- или теплоизоляция.
- Изношенные коммуникации. Трубопроводы в старых домах со временем приходят в негодность, и даже если формально ими еще можно пользоваться, возможно, придется поменять коммуникации в квартире.
13 фото

Соцсети дизайнера g_iana.moiseeva

Соцсети дизайнера g_iana.moiseeva

Соцсети дизайнера g_iana.moiseeva

Соцсети дизайнера sharapova_design

Соцсети дизайнера sharapova_design

Соцсети дизайнера sharapova_design

Соцсети дизайнера sharapova_design

Соцсети дизайнера sharapova_design

Соцсети дизайнера sharapova_design

Соцсети дизайнера sharapova_design

Соцсети дизайнера sharapova_design

Соцсети дизайнера sharapova_design

Соцсети дизайнера sharapova_design
Перепланировка
Ремонт однокомнатной хрущевки не всегда означает перепланировку: в конце концов это долго и сложно, особенно если изменения требуют согласования.
11 фото

Дизайн: Дарья Назаренко, darianazarenko.com

Дизайн: Дарья Назаренко, darianazarenko.com

Дизайн: Дарья Назаренко, darianazarenko.com

Дизайн: Дарья Назаренко, darianazarenko.com

Дизайн: Максим Тихонов, m2project.ru

Дизайн: Максим Тихонов, m2project.ru

Дизайн: Максим Тихонов, m2project.ru

Дизайн: Максим Тихонов, m2project.ru

Соцсети блогера rent_apart_renovation

Соцсети блогера rent_apart_renovation

Соцсети блогера rent_apart_renovation
Если же исходные данные меняют, то обычно это один из трех сценариев:
- Незначительные изменения, которые не нужно согласовывать. Например, переносят вход на кухню, разделяют санузел или забирают немного площади коридора.
- Из однушки — в студию. Это самый популярный тип перепланировки, когда кухню объединяют с жилой комнатой и получают более просторное открытое пространство. Если стена между помещениями не несущая, проблем не возникнет. Конечно, если у вас не газовая плита. Но большинство хрущевок газифицировано, из-за этого не получится просто сделать открытую кухню-гостиную, если вы хотите, чтобы перепланировку согласовали. Выхода два: отказ от газа или перегородка с дверцами. Кроме того, нужно как-то обыгрывать газовую трубу и колонку.
- Из однушки — в двушку. Противоположный прием — не объединять зоны, а, наоборот, сделать из одной комнаты две. Да, они будут очень маленькими, но при грамотном подходе к планировке это не станет проблемой.
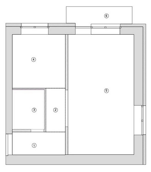
Ниже — пример перепланировки хрущевки.

Проект Надежды Поляковой До

Проект Надежды Поляковой Прсле
Советы по оформлению однокомнатной квартиры в хрущевке
Типовое жилье — это одинаковые для всех проблемы. А значит, и решения для них универсальные.

Вот несколько советов, которые понадобятся вам при оформлении такой однушки:
- Не мудрите с отделкой. Обои с культовыми узорами, панели под дерево или мрамор, акцентные стены — это все очень красиво, но рискованно. Чаще всего лучшее решение — самое простое: светлые однотонные стены (либо с неконтрастным рисунком), более темный пол с фактурой дерева, белый потолок.
- Продумайте зонирование. Единственная комната будет совмещать в себе сразу несколько функциональных зон, и важно не только найти для них место, но и удобно расположить.
- Используйте трансформеры. Откидные столешницы, столы-стеллажи, кровати-шкафы — любая многофункциональная мебель станет настоящем спасением в крошечной квартире.
- Впустите в квартиру как можно больше света. Не ставьте перед окнами высокую мебель и не завешивайте проемы темными, слишком плотными шторами.
- Не забывайте об истории такого жилья. Подбирайте общий стиль в соответствии с особенностями хрущевок. Например, адекватно реализовать в такой однушке лофт или строгую классику со всеми ее канонами не получится — да и не надо пытаться. Если вам нравится какое-то из «неподходящих» направлений, возьмите какие-то элементы, но не пытайтесь полностью его воссоздать.
- Кухня и ванная — самые проблемные места. Ищите компактные модели техники, сантехники, мебели. Отказывайтесь от того, что не жизненно необходимо, в пользу вещей или функциональных зон, без которых вам не обойтись.
13 фото

Дизайн: Дарья Назаренко, darianazarenko.com

Дизайн: Дарья Назаренко, darianazarenko.com

Дизайн: Дарья Назаренко, darianazarenko.com

Соцсети блогера pepper_sasha

Соцсети блогера pepper_sasha

Соцсети студии honeyhouse74

Соцсети студии honeyhouse74

Соцсети студии honeyhouse74

Соцсети студии honeyhouse74

Соцсети блогера ulianaamur

Соцсети дизайнера struve_anastasia

Соцсети дизайнера struve_anastasia

Соцсети дизайнера struve_anastasia
Примеры проектов
Как выглядит отремонтированная хрущевка в реальной жизни? Вот несколько примеров проектов квартир.

Поп-арт и 60-е
Однокомнатную хрущевку на фото ниже оформляли для студентки. Она любит стиль поп-арт, поэтому было решено двигаться в этой эстетике и сочетать современные и ретроэлементы. Так в интерьере появилась спокойная серо-белая отделка, а на ее фоне — крупные яркие акценты. Это большой желтый диван, светло-зеленый пуф и контрастный черный стеллаж с цветным декором. Кухню же сделали максимально нейтральной — это лучший вариант для такой маленькой площади.
8 фото

Дизайн: Галина Соколова. Фото: Анастасия Кутырина

Дизайн: Галина Соколова. Фото: Анастасия Кутырина

Дизайн: Галина Соколова. Фото: Анастасия Кутырина

Дизайн: Галина Соколова. Фото: Анастасия Кутырина

Дизайн: Галина Соколова. Фото: Анастасия Кутырина

Дизайн: Галина Соколова. Фото: Анастасия Кутырина

Дизайн: Галина Соколова. Фото: Анастасия Кутырина

Дизайн: Галина Соколова. Фото: Анастасия Кутырина
Перепланировка коснулась только зоны коридора. Заказчице он был не нужен, поэтому вход на кухню перенесли, а освободившуюся площадь использовали, чтобы выделить в зоне готовки нишу под холодильник и сделать в квартире постирочную. Она находится рядом с ванной.

Дизайн: Галина Соколова. Фото: Анастасия Кутырина

Дизайн: Галина Соколова. Фото: Анастасия Кутырина

Дизайн: Галина Соколова. Фото: Анастасия Кутырина
Квартира коллекционера
Эта однушка в Москве принадлежит молодому мужчине, который увлекается искусством и коллекционирует его. Масштабную перепланировку не делали, все помещения остались в своих границах. Дом газифицирован, поэтому кухню-гостиную не объединяли. Но заменили стандартную дверь на большую амбарную дверь, которая отъезжает в сторону.
В жилой зоне расположили угловой раскладной диван, у окна — рабочее место и еще одну мини-зону отдыха, представленную мягким креслом и столиком. А вдоль стены сделали встроенный шкаф в тон отделке, который стал основной системой хранения в однушке.
6 фото

Соцсети студии mirburo

Соцсети студии mirburo

Соцсети студии mirburo

Соцсети студии mirburo

Соцсети студии mirburo

Соцсети студии mirburo
В санузле для экономии места сделали душ, рядом стоят туалет и раковина на тонких ножках. Интересная деталь — стеклоблоки, которыми оформлена часть стены. Это и визуальный акцент, и дополнительный естественный свет в ванной. В маленькой прихожей вместо шкафа повесили вешалку для верхней одежды и поставили компактную этажерку на колесиках.

Соцсети студии mirburo

Соцсети студии mirburo
Чистый минимализм
Минимализм подходит не только для просторных квартир, но и для типовых малогабариток. Этот проект — еще одно тому подтверждение. Заказчик оформлял жилье для себя, и стиль, как и цветовая гамма, — его пожелания. Интерьер получился очень современным, при этом он не надоест через пару лет: здесь нет кричащих цветов и трендовых приемов, которые через пару сезонов набьют оскомину.
Основные цвета — белый и светло-бежевый. Стены однотонные, но с выраженной грубоватой фактурой. Ее холодность балансируют мебель из светлой фанеры и деревянный пол. В комнате выделено несколько зон: для сна, отдыха, столовая, рабочая. Между кухней и спальней-гостиной — широкий проем, который дает ощущения простора.
10 фото

Дизайн: студия KODD Bureau, ko-d-d.com

Дизайн: студия KODD Bureau, ko-d-d.com

Дизайн: студия KODD Bureau, ko-d-d.com

Дизайн: студия KODD Bureau, ko-d-d.com

Дизайн: студия KODD Bureau, ko-d-d.com

Дизайн: студия KODD Bureau, ko-d-d.com

Дизайн: студия KODD Bureau, ko-d-d.com

Дизайн: студия KODD Bureau, ko-d-d.com

Дизайн: студия KODD Bureau, ko-d-d.com

Дизайн: студия KODD Bureau, ko-d-d.com
Ванная и прихожая оформлены в том же стиле, что и вся квартира: минималистично, в меру просто, без цветовых всплесков. Во входной зоне из той же фанеры сделан хозяйственный шкаф, где спрятаны стиральная машина и бойлер.

Дизайн: студия KODD Bureau, ko-d-d.com

Дизайн: студия KODD Bureau, ko-d-d.com

Дизайн: студия KODD Bureau, ko-d-d.com

Дизайн: студия KODD Bureau, ko-d-d.com

Дизайн: студия KODD Bureau, ko-d-d.com
Функциональность и эстетика
Эту однушку автор проекта купила для себя, но с перспективой дальнейшей перепродажи. Еще на этапе выбора объекта дизайнер обращала особое внимание на планировку, предполагая, что ее придется менять. Так и получилось. Квартиру почти полностью «перекроили»: из одной жилой комнаты сделали две, поделив пространство на спальню и гостиную с рабочим местом. Последняя объединена с кухней (прим. ред. чтобы согласовать такую перепланировку, между кухней с газом и комнатой должна быть дверь или раздвижная перегородка).
8 фото

Дизайн: Надежда Полякова. Фото: Ник Руденко

Дизайн: Надежда Полякова. Фото: Ник Руденко

Дизайн: Надежда Полякова. Фото: Ник Руденко

Дизайн: Надежда Полякова. Фото: Ник Руденко

Дизайн: Надежда Полякова. Фото: Ник Руденко

Дизайн: Надежда Полякова. Фото: Ник Руденко

Дизайн: Надежда Полякова. Фото: Ник Руденко

Дизайн: Надежда Полякова. Фото: Ник Руденко
При выборе визуальной (да и функциональной) концепции дизайнер вдохновлялась интерьерами ГДР период с 60-х по 90-е годы. Главная идея дизайна того периода — практичность и эстетика. Отделка и мебель подбирались с учетом ограниченной площади, здесь нет темных цветов и ярких орнаментов. Особое внимание автор проекта уделила системам хранения: они продуманные, вместительные и эргономичные. В каждой комнате есть место для вещей.

Дизайн: Надежда Полякова. Фото: Ник Руденко

Дизайн: Надежда Полякова. Фото: Ник Руденко

Дизайн: Надежда Полякова. Фото: Ник Руденко
Образцовый контемпорари
Этот проект — яркий пример того, как вторичку можно превратить в комфортное современное жилье. При взгляде на интерьер трудно поверить, что до ремонта это была убитая хрущевка, в последний раз обновлявшаяся несколько десятилетий. В первую очередь такой эффект создается за счет новой планировки. Газовую плиту заменили на электрическую и снесли стену между кухней и жилой комнатой. Спальню изолировали, отделив прозрачными стеклянными перегородками. Получилось светлое открытое пространство, которое совсем не кажется тесным.
Отделку сделали максимально нейтральной, а мебель и декор подобрали в духе стиля контемпорари: простые силуэты, природные оттенки, разнообразие фактур, контраст матовых и глянцевых поверхностей.
8 фото

Дизайн: студия Mossebo, mossebo.studio

Дизайн: студия Mossebo, mossebo.studio

Дизайн: студия Mossebo, mossebo.studio

Дизайн: студия Mossebo, mossebo.studio

Дизайн: студия Mossebo, mossebo.studio

Дизайн: студия Mossebo, mossebo.studio

Дизайн: студия Mossebo, mossebo.studio

Дизайн: студия Mossebo, mossebo.studio
Для ванной выбрали подвесную сантехнику и компактные системы хранения разного типа: есть закрытые ящики и открытые полки стеллажа. В отделке скомбинировали два вида плитки в базовых цветах — получилось динамично, не не слишком пестро.
6 фото

Дизайн: студия Mossebo, mossebo.studio

Дизайн: студия Mossebo, mossebo.studio

Дизайн: студия Mossebo, mossebo.studio

Дизайн: студия Mossebo, mossebo.studio

Дизайн: студия Mossebo, mossebo.studio

Дизайн: студия Mossebo, mossebo.studio

Анастасия Степанова Хрущевки Маленькие квартиры
