Рассказываем о преимуществах и недостатках трехкомнатных квартир в разных типах домов и показываем примеры планировок.
Трехкомнатная квартира — пространство, предназначенное для проживания большого количества людей. В современных домах этому способствуют все условия: высокие потолки, продуманное расположение комнат, возможность перепланировки. В более старых постройках есть свои нюансы: чаще всего в них встречаются маленькие и неудобные помещения с невысокими потолками. В этой статье подробно рассмотрим особенности планировок 3-х комнатных квартир в домах разного типа.
Идеи планировок и дизайна 3-х комнатной квартиры
В советских домах
  — Сталинки
  — Хрущевки
  — Брежневки
В современных домах
  — С отдельной кухней
  — Евроквартира
Идеи оформления
Планировки трехкомнатных квартир в советских домах
Планировки советских домов разнятся в зависимости от материала и года постройки. Комнаты могут быть смежными, проходными и отдельными. От совокупности факторов зависит и возможность перепланировки. Зачастую в старых зданиях можно столкнуться с проблемой тонких стен и совмещенных маленьких санузлов, однако встречаются дома с высокими потолками, большими гостиными и просторными коридорами, что позволяет дизайнерам интересно оформить площадь.

Сталинка
Дома этого типа строили с 1933 до 1960 года. Самые первые возводили по авторским проектам и учитывали еще дворянские нормативы, поэтому планировки у таких сталинок нестандартные: высокие потолки около 3 метров, большие кухни и комнаты. Типовые здания начали строить в 1950-х годах. В них проекты жилых помещений намного скромнее.
Характеристики трешек в сталинках следующие:
- Высокие потолки.
- Раздельные ванная комната и туалет.
- Изолированные друг от друга помещения.
- Хорошая звукоизоляция.
Обычно в жилых пространствах присутствуют широкие подоконники, есть кладовые. Площадь разнится и зависит от серии дома. К минусам относят устаревшие материалы и сложность перепланировки, в том числе ее согласования. Самостоятельно проект делать не стоит, так как можно не знать всех особенностей старого здания.
7 фото

Дизайн: Сергей Грааф. Фото: Сергей Красюк

Дизайн: Сергей Грааф. Фото: Сергей Красюк

Дизайн: Сергей Грааф. Фото: Сергей Красюк

Дизайн: Сергей Грааф. Фото: Сергей Красюк

Дизайн: Сергей Грааф. Фото: Сергей Красюк

Дизайн: Сергей Грааф. Фото: Сергей Красюк

Дизайн: Сергей Грааф. Фото: Сергей Красюк
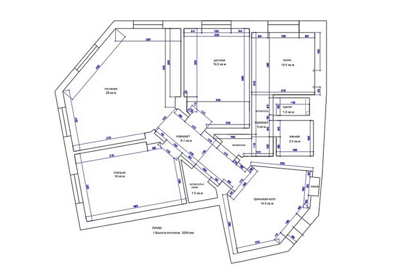
Пример
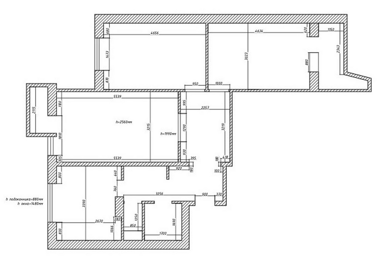
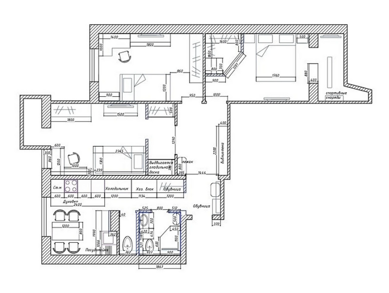
Хозяева этой квартиры в доме 1953 года — семейная пара с двумя детьми-школьниками. Жилье находится в самом центре Москвы. Поскольку менять планировку в сталинке проблематично, делать этого не стали.

Проект Татьяны Ртищевой До

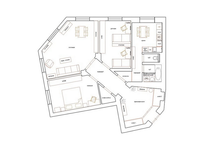
Проект Татьяны Ртищевой После
В изначальное планировочное решение внесли только одно изменение — оно коснулось просторной (почти 15 квадратов) прихожей сложной формы. Чтобы рационально использовать пространство и обустроить вместительное хранение, по эскизам дизайнера спроектировали систему встроенных шкафов, которые образовали между входом и остальной частью прихожей небольшую буферную зону, похожую на тамбур.
Все остальные исходные данные остались без изменений: изолированная кухня, просторная гостиная и две жилые комнаты. В одной из них обустроили родительскую спальню, в другой — общую детскую для двоих детей. Санузел оставили раздельным.
10 фото

Дизайн: Татьяна Ртищева. Фото: Наталья Вершинина

Дизайн: Татьяна Ртищева. Фото: Наталья Вершинина

Дизайн: Татьяна Ртищева. Фото: Наталья Вершинина

Дизайн: Татьяна Ртищева. Фото: Наталья Вершинина

Дизайн: Татьяна Ртищева. Фото: Наталья Вершинина

Дизайн: Татьяна Ртищева. Фото: Наталья Вершинина

Дизайн: Татьяна Ртищева. Фото: Наталья Вершинина

Дизайн: Татьяна Ртищева. Фото: Наталья Вершинина

Дизайн: Татьяна Ртищева. Фото: Наталья Вершинина

Дизайн: Татьяна Ртищева. Фото: Наталья Вершинина
Хрущевка
Типовые хрущевки пришли на смену сталинкам, их строили с конца 1950-х годов по 1980-е года. В течение этого периода архитекторы модифицировали и улучшали дома.
В самых первых сериях жилье было неудобным: с маленькими помещениями, длинными коридорами и низкими потолками. Комнаты были смежными и проходными, а самая большая из них располагалась рядом с кладовкой. Планировки 3-х комнатных квартир в домах этого типа отличаются плохой звуко- и теплоизоляцией стен. Многие хрущевки этого времени отличаются крошечными пятиметровыми кухнями, поэтому при ремонте владельцы жилья стараются присоединить их к гостиной хотя бы визуально — с помощью прозрачных перегородок. Также еще одна проблема в домах этого типа — темные и маленькие прихожие.
В 1960-1975 годах трешки имели общую площадь 44 кв. м, из которых 32 квадратов составляла жилая. Размер кухонь — до 6 кв. м. В конце 1970-х появились новые девятиэтажные дома, площадь квартир с тремя комнатами в них была увеличена до 60 кв. м.
6 фото

Соцсети блогера brotkinaolga

Соцсети блогера brotkinaolga

Соцсети блогера brotkinaolga

Соцсети блогера brotkinaolga

Соцсети блогера brotkinaolga

Соцсети блогера brotkinaolga
Пример
В этом проекте планировка напоминает 3х-комнатную «распашонку», за исключением того, что это жилье угловое. В остальном для него характерны все типичные черты: проходная гостиная с балконом и окна на разных сторонах.

Проект Полины Андреевой До

Проект Полины Андреевой После
Заказчица получила трешку в наследство и обустраивала ее для себя. Поскольку квартира предназначена для одного человека, оптимизировать пространство не требовалось. Вход на кухню и в спальню находятся на одной линии, поэтому получилась анфилада, которая устраивала хозяйку. Дальнее помещение отвели под кабинет, к нему ведет маленький коридор. Ванная и туалет изначально были раздельными, объединять их не стали.
9 фото

Дизайн: Полина Андреева. Фото: Кристина Плеер. Стиль: Дарья Кузнецова

Дизайн: Полина Андреева. Фото: Кристина Плеер. Стиль: Дарья Кузнецова

Дизайн: Полина Андреева. Фото: Кристина Плеер. Стиль: Дарья Кузнецова

Дизайн: Полина Андреева. Фото: Кристина Плеер. Стиль: Дарья Кузнецова

Дизайн: Полина Андреева. Фото: Кристина Плеер. Стиль: Дарья Кузнецова

Дизайн: Полина Андреева. Фото: Кристина Плеер. Стиль: Дарья Кузнецова

Дизайн: Полина Андреева. Фото: Кристина Плеер. Стиль: Дарья Кузнецова

Дизайн: Полина Андреева. Фото: Кристина Плеер. Стиль: Дарья Кузнецова

Дизайн: Полина Андреева. Фото: Кристина Плеер. Стиль: Дарья Кузнецова
Брежневка
Брежневки считаются модернизированными версиями хрущевок. Их квадратура была увеличена по сравнению с предыдущими сериями, помещения — изолированы друг от друга, вставлены большие окна, а также предусматривались ниши и места для антресолей над дверями. В хрущевках преимущественно были балконы, в брежневках же появились просторные лоджии.
Средние размеры трешки в брежневке — от 48 кв. м до 56 кв. м, по сравнению с современными квартирами помещения нельзя назвать просторными. На протяжении всего периода архитекторы модернизировали здания, поэтому есть множество вариантов планировок 3-х комнатных квартир в панельных домах. Например, в «башнях» размер кухни достигает 10 квадратных метров.
9 фото

Дизайн: Анастасия Уфимцева

Дизайн: Анастасия Уфимцева

Дизайн: Анастасия Уфимцева

Дизайн: Анастасия Уфимцева

Дизайн: Анастасия Уфимцева

Дизайн: Анастасия Уфимцева

Дизайн: Анастасия Уфимцева

Дизайн: Анастасия Уфимцева

Дизайн: Анастасия Уфимцева
Пример
Эта квартира находится в доме серии П-44, которую относят к периоду поздних брежневок. Одна из главных особенностей — увеличенная площадь всех помещений, включая кухню (здесь она почти 10 кв. м).

Проект Ирины Акимовой До

Проект Ирины Акимовой После
Заказчики — семья с двумя детьми-подростками. Как и в любой панельке, здесь было много несущих стен, и это наложило ограничения на возможности перепланировки. Было решено не менять конфигурацию помещений, работали с исходными данными: все три комнаты отвели под спальни, санузел оставили раздельным, кухню — изолированной. В родительской спальне организовали небольшую гардеробную, а часть одной из детских отдали под хозяйственный блок.
10 фото

Дизайн: Ирина Акимова. Фото: Мария Иринархова

Дизайн: Ирина Акимова. Фото: Мария Иринархова

Дизайн: Ирина Акимова. Фото: Мария Иринархова

Дизайн: Ирина Акимова. Фото: Мария Иринархова

Дизайн: Ирина Акимова. Фото: Мария Иринархова

Дизайн: Ирина Акимова. Фото: Мария Иринархова

Дизайн: Ирина Акимова. Фото: Мария Иринархова

Дизайн: Ирина Акимова. Фото: Мария Иринархова

Дизайн: Ирина Акимова. Фото: Мария Иринархова

Дизайн: Ирина Акимова. Фото: Мария Иринархова
Современные дома
Трешки в новостройках отличаются большим разнообразием планировок и размеров: они продаются с изолированными, смежными и проходными комнатами.

Также есть большие студии со свободной планировкой, которые подразумевают, что будущие хозяева возведут стены в тех местах, где им нужно. Однако для любых изменений внутри квартиры обязательно нужны согласование и индивидуальный проект.
У современных зданий есть много преимуществ перед домами старого типа. Проекты предполагают достаточный уровень комфорта, жилые помещения стараются не располагать рядом с шумными лифтами. По сравнению с типовой застройкой, у новых жилых комплексов интересные и необычные планировки: есть двухуровневые пространства, дома с панорамными или французскими окнами, некоторые проекты предполагают наличие балкона-террасы. Архитектурные особенности разные у каждого дома, поэтому вывести общие для всех черты нельзя.
С изолированной кухней
Несмотря на популярность открытых пространств, современные застройщики все еще предлагают стандартные планировочные решения с отдельной кухней и тремя помещениями. Их в зависимости от состава семьи можно наделить любыми нужными функциями: гостиная-спальня-детская, гостиная-спальня-кабинет, спальня-детская-детская и т.п. В таком жилье зону готовки, как правило, делают достаточно просторной, чтобы там можно было разместить все необходимые мебель и технику.
11 фото

Дизайн: Наталья Константинова. Фото: Михаил Чекалов. Стиль: Катя Клее

Дизайн: Наталья Константинова. Фото: Михаил Чекалов. Стиль: Катя Клее

Дизайн: Наталья Константинова. Фото: Михаил Чекалов. Стиль: Катя Клее

Дизайн: Наталья Константинова. Фото: Михаил Чекалов. Стиль: Катя Клее

Дизайн: Наталья Константинова. Фото: Михаил Чекалов. Стиль: Катя Клее

Дизайн: Наталья Константинова. Фото: Михаил Чекалов. Стиль: Катя Клее

Дизайн: Наталья Константинова. Фото: Михаил Чекалов. Стиль: Катя Клее

Дизайн: Наталья Константинова. Фото: Михаил Чекалов. Стиль: Катя Клее

Дизайн: Наталья Константинова. Фото: Михаил Чекалов. Стиль: Катя Клее

Дизайн: Наталья Константинова. Фото: Михаил Чекалов. Стиль: Катя Клее

Дизайн: Наталья Константинова. Фото: Михаил Чекалов. Стиль: Катя Клее
Пример
Эта трешка принадлежит семье с двумя разнополыми детьми, что нужно было учесть при распределении помещений под спальни.

Проект Дженнет Койтемировой До

Проект Дженнет Койтемировой После
Глобальная планировка не требовалось: изначальные данные устраивали заказчиков, к тому же застройщик сдавал объект уже с отделкой. Функциональные зоны распределили следующим образом: кухня с зоной отдыха, которую отделили от гарнитура и столовой группы небольшой перегородкой; спальня родителей; детская для мальчика и детская для девочки. Второй санузел сделали гостевым.
8 фото

Дизайн: Дженнет Койтемирова. Фото: Антон Бояршинов. Стиль: Анастасия Громова

Дизайн: Дженнет Койтемирова. Фото: Антон Бояршинов. Стиль: Анастасия Громова

Дизайн: Дженнет Койтемирова. Фото: Антон Бояршинов. Стиль: Анастасия Громова

Дизайн: Дженнет Койтемирова. Фото: Антон Бояршинов. Стиль: Анастасия Громова

Дизайн: Дженнет Койтемирова. Фото: Антон Бояршинов. Стиль: Анастасия Громова

Дизайн: Дженнет Койтемирова. Фото: Антон Бояршинов. Стиль: Анастасия Громова

Дизайн: Дженнет Койтемирова. Фото: Антон Бояршинов. Стиль: Анастасия Громова

Дизайн: Дженнет Койтемирова. Фото: Антон Бояршинов. Стиль: Анастасия Громова
Евроквартира
Европейский подход к планированию жилья подразумевает большую кухню-гостиную, которая занимает до 50% всей площади. Сейчас очень популярны евродвушки и евротрешки, но и полноценные трехкомнатные квартиры могут быть подобной конфигурации. В этом случае план предполагает одно просторное объединенное пространство и три небольших изолированных помещения.
9 фото

Дизайн: Надежда Абрамова. Фото: Женя Муравьева

Дизайн: Надежда Абрамова. Фото: Женя Муравьева

Дизайн: Надежда Абрамова. Фото: Женя Муравьева

Дизайн: Надежда Абрамова. Фото: Женя Муравьева

Дизайн: Надежда Абрамова. Фото: Женя Муравьева

Дизайн: Надежда Абрамова. Фото: Женя Муравьева

Дизайн: Надежда Абрамова. Фото: Женя Муравьева

Дизайн: Надежда Абрамова. Фото: Женя Муравьева

Дизайн: Надежда Абрамова. Фото: Женя Муравьева
Пример
Эта просторная трешка — яркий пример европланировки с типичным распределением пространства.

Проект Александры Якушенко До

Проект Александры Якушенко После
Кухня-гостиная занимает 23 квадрата, а более маленькие изолированные помещения отдали под спальню и две детских. Из двух санузлов один сделали гостевым. Основной имеет сложную форму — со скошенными стенами. Эту проблему исправляли с помощью сделанной на заказ мебели.
10 фото

Дизайн: Александра Якушенко. Фото: Иван Сорокин. Стиль: Диана Ремизова

Дизайн: Александра Якушенко. Фото: Иван Сорокин. Стиль: Диана Ремизова

Дизайн: Александра Якушенко. Фото: Иван Сорокин. Стиль: Диана Ремизова

Дизайн: Александра Якушенко. Фото: Иван Сорокин. Стиль: Диана Ремизова

Дизайн: Александра Якушенко. Фото: Иван Сорокин. Стиль: Диана Ремизова

Дизайн: Александра Якушенко. Фото: Иван Сорокин. Стиль: Диана Ремизова

Дизайн: Александра Якушенко. Фото: Иван Сорокин. Стиль: Диана Ремизова

Дизайн: Александра Якушенко. Фото: Иван Сорокин. Стиль: Диана Ремизова

Дизайн: Александра Якушенко. Фото: Иван Сорокин. Стиль: Диана Ремизова

Дизайн: Александра Якушенко. Фото: Иван Сорокин. Стиль: Диана Ремизова
Идеи дизайна 3-х комнатной квартиры
Для одного или двух взрослых
Трехкомнатное жилье, предназначенное для одного или двух человек, позволяет проявить фантазию и реализовать множество интересных вариантов оформления: выделить гостиную и хозяйскую спальню, а в оставшейся комнате сделать гостевую или кабинет. Бывает так, что одно помещение оставляют под будущую детскую или оформляют там мини-спортзал.
13 фото

Дизайн: Александра Дашкевич и Наталья Каримова. Фото: Евгений Кулибаба

Дизайн: Александра Дашкевич и Наталья Каримова. Фото: Евгений Кулибаба

Дизайн: Александра Дашкевич и Наталья Каримова. Фото: Евгений Кулибаба

Дизайн: Александра Дашкевич и Наталья Каримова. Фото: Евгений Кулибаба

Дизайн: Александра Дашкевич и Наталья Каримова. Фото: Евгений Кулибаба

Дизайн: Александра Дашкевич и Наталья Каримова. Фото: Евгений Кулибаба

Дизайн: Александра Дашкевич и Наталья Каримова. Фото: Евгений Кулибаба

Дизайн: Александра Дашкевич и Наталья Каримова. Фото: Евгений Кулибаба

Дизайн: Александра Дашкевич и Наталья Каримова. Фото: Евгений Кулибаба

Дизайн: Александра Дашкевич и Наталья Каримова. Фото: Евгений Кулибаба

Дизайн: Александра Дашкевич и Наталья Каримова. Фото: Евгений Кулибаба

Дизайн: Александра Дашкевич и Наталья Каримова. Фото: Евгений Кулибаба

Дизайн: Александра Дашкевич и Наталья Каримова. Фото: Евгений Кулибаба
Для семьи с одним ребенком
В этом случае одну комнату обычно отдают под гостиную: чаще всего ту, что больше всего по размеру. Ее в свою очередь объединяют с зоной готовки или оставляют изолированной. Остальные помещения отдают под детскую и спальню. Так семья сможет проводить время вместе в большом пространстве, а затем уединяться в своих комнатах.
10 фото

Дизайн: Надежда Токарева. Фото: Роман Спиридонов

Дизайн: Надежда Токарева. Фото: Роман Спиридонов

Дизайн: Надежда Токарева. Фото: Роман Спиридонов

Дизайн: Надежда Токарева. Фото: Роман Спиридонов

Дизайн: Надежда Токарева. Фото: Роман Спиридонов

Дизайн: Надежда Токарева. Фото: Роман Спиридонов

Дизайн: Надежда Токарева. Фото: Роман Спиридонов

Дизайн: Надежда Токарева. Фото: Роман Спиридонов

Дизайн: Надежда Токарева. Фото: Роман Спиридонов

Дизайн: Надежда Токарева. Фото: Роман Спиридонов
Для семьи с детьми одного возраста или пола
Предыдущий вариант оформления можно рассматривать и для этого случая. Он предполагает, что дети растут в одном помещении: так им удобнее вместе играть, учиться и делиться своими секретами. Наличие одной детской дает возможность оформить полноценную гостиную и спальню для родителей. Однако нужно учитывать, что если ваши дети разного пола, то совместное проживание возможно до какого-то периода времени, далее потребуются раздельные спальни.
8 фото

Дизайн: Анастасия и Богдан Дидус. Фото: Инна Каблукова. Декоратор: Мария Панипартова

Дизайн: Анастасия и Богдан Дидус. Фото: Инна Каблукова. Декоратор: Мария Панипартова

Дизайн: Анастасия и Богдан Дидус. Фото: Инна Каблукова. Декоратор: Мария Панипартова

Дизайн: Анастасия и Богдан Дидус. Фото: Инна Каблукова. Декоратор: Мария Панипартова

Дизайн: Анастасия и Богдан Дидус. Фото: Инна Каблукова. Декоратор: Мария Панипартова

Дизайн: Анастасия и Богдан Дидус. Фото: Инна Каблукова. Декоратор: Мария Панипартова

Дизайн: Анастасия и Богдан Дидус. Фото: Инна Каблукова. Декоратор: Мария Панипартова

Дизайн: Анастасия и Богдан Дидус. Фото: Инна Каблукова. Декоратор: Мария Панипартова
Для семьи с детьми разного возраста или пола
Если в семье дети разного возраста или пола, им понадобятся раздельные помещения. Чаще всего дизайнеры предлагают отказаться от полноценной гостиной и оформить для всех спальни. Если кухня просторная, то общей зоной для проведения времени становится именно она. Там же можно обустроить зону отдыха с диванчиком.
12 фото

Дизайн: Валерия Хуснутдинова и Екатерина Астафьева. Фото: Наталья Градусова

Дизайн: Валерия Хуснутдинова и Екатерина Астафьева. Фото: Наталья Градусова

Дизайн: Валерия Хуснутдинова и Екатерина Астафьева. Фото: Наталья Градусова

Дизайн: Валерия Хуснутдинова и Екатерина Астафьева. Фото: Наталья Градусова

Дизайн: Валерия Хуснутдинова и Екатерина Астафьева. Фото: Наталья Градусова

Дизайн: Валерия Хуснутдинова и Екатерина Астафьева. Фото: Наталья Градусова

Дизайн: Валерия Хуснутдинова и Екатерина Астафьева. Фото: Наталья Градусова

Дизайн: Валерия Хуснутдинова и Екатерина Астафьева. Фото: Наталья Градусова

Дизайн: Валерия Хуснутдинова и Екатерина Астафьева. Фото: Наталья Градусова

Дизайн: Валерия Хуснутдинова и Екатерина Астафьева. Фото: Наталья Градусова

Дизайн: Валерия Хуснутдинова и Екатерина Астафьева. Фото: Наталья Градусова

Дизайн: Валерия Хуснутдинова и Екатерина Астафьева. Фото: Наталья Градусова

Екатерина Савенко
