Здесь был интерьер, характерный для 90-х и 2000-х годов, к тому же семье требовалась дополнительная комната — дети выросли, было нужно их расселить. Все задачи решили, создали новый интерьер с духом места и эпохи постройки дома.
Заказчики и задачи
Эта квартира в Санкт-Петербурге в доме сталинской эпохи принадлежит семье с двумя детьми-подростками: старшей девочкой и младшим мальчиком. Семья обратилась к дизайнеру Наталье Васильевой — они дружат еще с института — для переделки интерьера. Главным пожеланием было выделить дополнительную спальню в существующей планировке. Хотелось сохранить некоторые предметы интерьера, в частности, паркет, двери, картины.

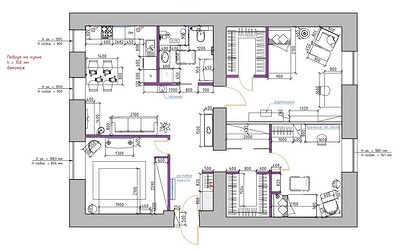
Перепланировка
Изначально в квартире была общая кухня-гостиная, ванная комната и две спальни. На площади гостиной выделили вторую спальню, но оставили все-таки часть общей зоны для объединения с кухней, чтобы семья могла собраться вместе и с комфортом провести время. Кухня — с газовой плитой, по правилам перепланировки необходима разделяющая перегородка, но пока заказчики от нее отказались. До ремонта ванная комната была со скошенной стеной, ее выровняли и вернули ванную в границы, которые соответствуют плану БТИ.

Детей расселили по двум существующим комнатам. В комнате дочери выделили личную гардеробную. Комнату сына уменьшили, чтобы создать общий гардероб и место для кладовой.

Отделка
Для отделки стен выбрали краску. В общей зоне — приятный голубой оттенок, периметр под потолком выделен светлой краской. В комнате сына — более насыщенный голубой, который скомбинирован с желтым.

В спальне дочери — нежный оливковый, а в комнате родителей — светлый бежевый.

Также дизайнер выбрала обои, которые дополнили интерьер. Для родительской спальни — обои с цветочным рисунком на приглушенном зеленом фоне. Для комнаты дочери — геометрический рисунок клетка. Обоями оклеены стены в изголовье кровати.

В ванной комнате скомбинировали три вида отделки на стенах. Это прямоугольная глянцевая плитка в мокрых зонах, краска на других стенах и обои в зоне раковины.

На полу оставили паркет, отциклевали его и придали новый вид. Плитку использовали в зоне прихожей и кухни (одинаковая, стилизованная под метлахскую плитку). И, конечно же, в ванной комнате — с похожим рисункам в тех же тонах и стилистике.

Старые двери тоже оставили, их перекрасили в приятный зеленый оттенок, подходящий интерьеру. Для ванной комнаты выбрали двери-пенал, чтобы они не сильно выделялись и не занимали много места.
Мебель и системы хранения
Дизайнер стремилась скрыть системы хранения, для этого в процессе создания планировки продуманы две гардеробные и хозяйственный блок.

В комнате родителей — платяной шкаф, в детских — небольшие шкафчики для повседневных вещей, стеллажи для книг.

На кухне почти полностью отказались от верхних шкафов, сделали их только над мойкой. Но компенсировали это высокими шкафами со встроенной техникой и пространством для хранения по одной из стен. Также задействовали подоконник — подняли его на уровень кухонной столешницы и расширили, сделав дополнительную рабочую поверхность.

Эффектные предметы — старинный буфет в гостиной и зеркало со столиком в прихожей. Их приобрели на «Авито» и отреставрировали специально под проект. Таким образом хотели усилить созданную атмосферу.

Освещение
Высокие потолки позволили использовать подвесные люстры. Так и сделали в спальнях и гостиной, прихожей. Но, конечно, потолочными светильниками не ограничились. Есть и бра, и настольные лампы, которые позволяют создать уютную камерную обстановку. Более того, классические светильники скомбинированы с современными по стилю. Так, например, в гостиной потолочная люстра с лампочками-«свечками» соседствует с точечными спотами на потолке и лаконичными бра в зоне кухни.

Наталья Васильева Дизайнер, автор проекта
Мои институтские друзья обратились с просьбой создать дизайн-проект и доверились моему видению. Они хотели ощущать в квартире дух времени и историю поколений. Так родилась идея использовать полистилистику, соединить новые вещи с антиквариатом и теми предметами, которые уже были. Сталинский дом уже задавал легкую ноту классики, дети и их пожелания диктовали более современное ее прочтение. Мебель с легким флером французского шика и современности достаточно органично вписалась в интерьер и решила поставленные задачи.
21 фото

Кухня-гостиная

Кухня-гостиная

Спальня родителей

Спальня родителей

Спальня родителей

Комната дочери

Комната дочери

Комната дочери

Комната дочери

Комната дочери

Комната дочери

Комната сына

Комната сына

Комната сына

Комната сына

Комната сына

Санузел

Санузел

Санузел

Санузел

Санузел
Как квартира выглядела до ремонта
7 фото







Редакция предупреждает, что в соответствии с Жилищным кодексом РФ требуется согласование проводимых переустройств и перепланировок.

Смотреть перепланировку

Анастасия Дубровина

Ирина Павленко Светлые цвета Пастельные цвета Современная классика