Дизайнер Яна Гаевская создала этот проект для сдачи в аренду. И квартира уже нашла своих арендаторов.
Заказчики и задачи
Двухкомнатную квартиру в типовом доме П-44, построенном в конце 90-х, хозяева хотели сдавать в аренду. Ремонт давно устарел и нуждался в обновлении. За этим они и пригласили дизайнера Яну Гаевскую. «Основная идея проекта — создание функционального пространства для сдачи в аренду, подходящего для любого человека или семьи, но в тоже время выделяющегося среди других квартир на рынке недвижимости», — говорит Яна. При разработке проекта дизайнер предполагала, что квартиру захочет снять семья из 2-3 человек.

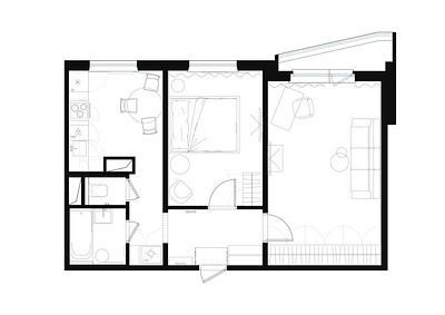
Планировка
Планировку не меняли. Не видели в этом смысла, к тому же в панельном доме перепланировка или невозможна совсем, или доступна минимально, так как большинство стен несущие. Таким образом, остались две комнаты, кухня, раздельные санузлы. Большую комнату сделали гостиной. Поменьше — спальней.

Отделка
Для стен выбрали краску бежевого цвета. Ее использовали по всей квартире. В спальне тон чуть темнее, напоминает какао с молоком. В прихожей на полу — бежевый керамогранит. Остальные комнаты, включая кухню, оформили ламинатом. В ванной комнате и туалете для стен выбрали бежевый керамогранит, а для пола — темно-серый.

В качестве акцентнов выступают красный и графичный черный. Они прослеживаются в части мебели, декоре и отделке. Например, дверной проем, ведущий из прихожей в коридор на кухню, оформлен МДФ именно в красном цвете.

В спальне за изголовьем кровати автором проекта создана абстракция из черных линий.

На кухне стену, которая закрывает общедомовой стояк с коммуникациями, оклеили панно с оранжевыми птицами.
Мебель и системы хранения
Так как квартира для сдачи в аренду, у дизайнера была задача сделать достаточно систем хранения для того, чтобы уместить вещи 2-3 человек. Большой шкаф во всю стену встроили в гостиной. Фасады выполнены в цвет стен, к тому же стена торцевая, поэтому габаритная система хранения не загромождает пространство комнаты.

В спальне небольшой шкаф уместили в углу рядом со входом. Сделали закругленный угол, чтобы избежать возможных травм жильцов, которые будут ходить мимо.

В прихожей ограничились шкафом с большой открытой секцией с вешалками. Эта секция — как раз красного цвета. Антресольная часть закрыта, можно хранить сезонные вещи, а в нижней части — обувь.

Кухня компактная. Ее выстроили в линию и вписали в своеобразную мебельную нишу, так, чтобы не было зазора между верхними шкафами и потолком, где скапливается пыль и грязь. Дизайнер предусмотрела необходимую технику: холодильник, духовой шкаф, посудомоечную машину и варочную панель.

В коридоре, ведущем на кухню, отлично вписался хозяйственный шкаф. В него встроили стиральную машину и оставили место для хранения разных запасов. У шкафа реечные фасады, что удобно для вентиляции, в случае со стиральной машинкой это важно.

В ванной комнате — небольшая тумба под раковину, а в санузле — шкафчик над инсталляцией унитаза. Дверцы тоже сделали яркими, красными — в поддержку других цветных акцентов в квартире.

Освещение
Продумано несколько сценариев света: общий и локальный. В гостиной — точечные светильники и винтажная люстра, которую отреставрировала автор проекта собственноручно. В спальне — люстра с вязаным абажуром (ручная работа) и бра по бокам от кровати, тоже ручной работы. В прихожей и коридоре — два потолочных светильник, настенная лампа около двери в санузел. На кухне — основной потолочный светильник, бра на стене над обеденной зоной и подсветка кухни.

Яна Гаевская Дизайнер, автор проекта
Я очень люблю upcycling (давать вторую жизнь вещам). И в этой квартире есть предметы, отреставрированные мной. Это люстра в гостиной советского периода, с нее я сняла плафоны и покрасила в черный цвет. И зеркало в прихожей, которому добавила патины в виде красного цвета на раме. В каждом проекте остается частичка моей души. Здесь это роспись на стене в спальне, выполненная мной.
13 фото

Гостиная

Гостиная

Гостиная

Спальня

Спальня

Кухня

Кухня

Прихожая

Прихожая

Прихожая

Прихожая

Ванная комната

Ванная комната
Как выглядела квартира до ремонта
19 фото

Кухня

Кухня

Кухня

Коридор

Коридор

Коридор

Прихожая

Прихожая

Прихожая

Прихожая

Ванная комната

Ванная комната

Ванная комната

Сейчас спальня

Сейчас спальня

Сейчас гостиная

Сейчас гостиная

Сейчас гостиная

Сейчас гостиная Редакция предупреждает, что в соответствии с Жилищным кодексом РФ требуется согласование проводимых переустройств и перепланировок.

Смотреть перепланировку

Женя Муравьева

Анастасия Дубровина Маленькие квартиры Современный стиль Красный цвет Бежевый цвет