Одно из главных достоинств этой просторной квартиры — видовые террасы, которые делают ее светлой и воздушной. Основатели Insight-Studio Максим Марухин и Мария Лыч стремились не потерять эту легкость. Как им это удалось, они рассказали сами
Зона столовой. Обеденный стол и стулья, Midj. Свет в столовой зоне, Moooi. Из больших панорамных окон открывается прекрасный вид на лес.
ОБЩИЕ ПАРАМЕТРЫ
-
Тип недвижимости: квартира в урбан-вилле
-
Где находится: ЖК «Пирс» в 10 минутах от Минска
-
Метраж: 145 кв.м + террасы по периметру квартиры
-
Стиль: современный интерьер с элементами лофта
-
Основная идея проекта: сохранить легкость и воздушность пространства
-
Цветовая гамма: монохром
-
Автор проекта: дизайн-студия Insight Studio, info@insight-studio.by, www.insight-studio.by, т. +375(33) 635-76-50

Гостиная, фрагмент. Диван, Mexo. ТВ-композиция и консоль сделаны на заказ по чертежам студии. Бра над консолью, LedsC4.
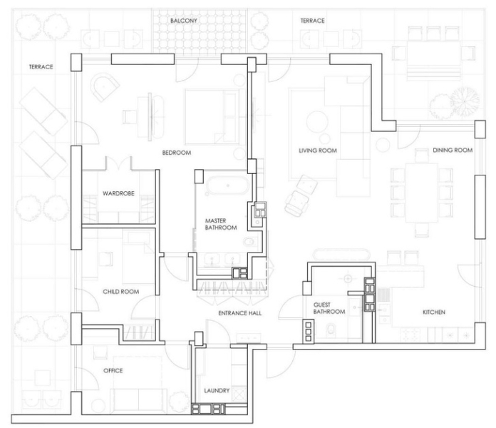
Эффектный пентхаус со стильным монохромным интерьером, большими панорамными окнами, дизайн-проект которого разрабатывала наша студия, расположен в закрытом автономном жилом комплексе в 10 минутах от Минска.
Большой бонус комплекса — просторные террасы по периметру пентхауса. Из больших панорамных окон открывается прекрасный вид на лес, потоки света делают пространство легким и воздушным.

Гостиная, фрагмент. Диван, Mexo.
Свободная планировка квартиры предоставила возможность поиграть с объемами. При разработке планировочных решений главной целью было разделить пространство пентхауса на две зоны: частную и общественную.
Общественную часть квартиры разделили еще на три части: гостиную, кухню и столовую. В гостиной в главной роли выступает большой модульный диван-остров, соединяющий эту зону со столовой и местом для просмотра телевизора. Столовая сообщается с кухней и основным выходном на террасу, где организована летняя кухня и зона отдыха.

Кухня, фрагмент. Кухня сделана на заказ по дизайну и чертежам студии. Барные стулья, Midj. Керамогранит на рабочей поверхности кухни, Marazzi.
При проектировании пространства хотелось сохранить высоту потолка. Было принято решение не опускать потолок в общем пространстве, а сохранить бетонное перекрытие, которое зашлифовали и покрыли специальным лаком. В приватной зоне, где расположены спальня, детская, кабинет, ванные комнаты, потолки были опущены. Это решение позволило добавить приватным помещениям уюта и комфорта.

Спальня. Кровать, Sofaclub. Вся корпусная мебель изготовлена на заказ по чертежам студии.
Пространство спальни разделяет на две части легкая перегородка, разработанная по чертежам студии. Выполнена она из отдельных металлических элементов, собранных в единую ажурную композицию.

В один блок со спальней входят гардеробная и ванная комнаты.
С одной стороны перегородки расположена гардеробная зона, включающая в себя отдельное помещение для хранения одежды, зону туалетного столика и лаунж, а с другой стороны расположены зона сна и просторная ванная комната.

Ванная комната при спальне, фрагмент. Отдельно стоящая ванна, Holbi.

Ванная комната при спальне, фрагмент. Раковины, Ragno. Смесители, IBrubinetti.

Ванная комната при спальне, фрагмент. Раковины, Ragno. Смесители, IBrubinetti. Керамогранит, Imolaceramiche.
Заказчица работает психологом, поэтому для нее было важно иметь свой личный кабинет. Мы сделали его светлым, с контрастными акцентами в виде корпусной мебели и яркой картины в центре пространства. В кабинете, так же как и во всех помещениях, есть выход на террасу, куда можно выйти в теплое время года и работать на свежем воздухе, любуясь красивым видом.

Кабинет. Стул, Midj. Корпусная мебель сделана на заказ по чертежам студии. Ковер, Morestyle.
При входе в квартиру мы попадаем в просторный холл. Высокое, парящее зеркало высотой 3,5 метра отражает естественный свет из гостиной и наполняет темное помещение холла светом. Большой подвесной шкаф в виде парящего кубического объема врезается в гостиную, добавляя ощущение перетекания помещений из одного в другое.

Душевая, фрагмент. Смесители, Tubadzin. Керамогранит, Brubinetti.

Душевая, фрагмент. Керамогранит, Brubinetti.

Квартира в пригороде Минска. Проект Insight-Studio.