Хозяева этого дома не хотели делать «деревянную избушку». В итоге получился современный интерьер — так тоже могут выглядеть дома из клееного бруса.
Заказчики и задачи
Владельцы этого загородного дома — молодая семья с двумя дочками. К дизайнеру Аделине Шараповой семья обратилась, когда дом был уже готов. Они хотели оформить комфортный и стильный интерьер. «Семейная пара — владельцы ресторанов — любит принимать гостей и готовить на улице. Им не хотелось увидеть деревянную избушку. Наоборот, нужно было сделать деревянный дом современным и минималистичным с элементами скандинавского стиля», — комментирует задачи автор проекта.

Были и конкретные пожелания. Например, функциональный кухонный остров, за которым могла бы готовить вся семья днем, а по вечерам родители — отдыхать с друзьями. А также обустройство сауны, хозяева любят так проводить время, и при строительстве запроектировали возможность обустройства этой зоны.

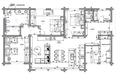
Планировка
Согласно изначальному плану, в центре дома была предопределена большая кухня-гостиная. Из нее — выход в приватный блок: общий коридорчик объединяет детскую, мастер-спальню и большую ванную комнату с душевой. Из кухни — вход в гостевую комнату. Во входной зоне — котельная, маленький гостевой санузел и собственно сауна. Для отделения сауны построена перегородка и ниша, а в остальном пространстве организованы душ и раздевалка. Большое преимущество этой зоны — два больших окна: и из сауны, и из душевой. Они выходят на будущий сад.

Отделка
Отделка дома была определена материалом строительства — клееный брус. На потолке — вагонка. Деревянную отделку покрыли беленым маслом, чтобы избежать желтого оттенка и приблизиться к холодной гамме скандинавского стиля. Небольшой участок стен в прихожей (там, где вход в сауну) окрашен в приятный зеленый оттенок.

Конечно, для отделки стен в мокрых зонах использовали плитку — в душевой-раздевалке, в ванной комнате хозяев. Пол также отделан плиткой — такой выбор обусловлен тем, что по всему дому проложена система теплых полов.

Для отделки сауны использовали доску абаш — дерево, распространенное в Африке. Оно обладает низкой теплопроводностью, устойчиво к влаге, не выделяет смол.
Мебель и системы хранения
Так как этот дом используется хозяевами как дача — то есть не для постоянного проживания — в габаритных системах хранения не было необходимости.

Продумали достаточно для базовых потребностей: шкаф в прихожей, платяные шкафы в спальнях, открытый стеллаж в раздевалке-душевой для полотенец (это еще и лавочка), комод в гостиной, тумбы под раковины в ванной комнате (их две, для удобства использования).
Кухню, как и хотели хозяева, запланировали с островом. Он получился функциональным. На нем расположена мойка, внутри — посудомоечная машина и винный шкаф. Основной блок кухни — линейного типа с двумя шкафами-колоннами по бокам. Такая расстановка позволила отказаться от верхнего ряда шкафов и визуально освободить пространство.

Освещение
Освещение проектировали так, чтобы можно было воспользоваться разными сценариями. Так, например, в кухне-гостиной кухню подсвечивают точечные светильники на шинопроводе, над обеденным столом размещены два крупных подвеса, а над диваном — подвес с уютным текстильным абажуром. Такой же трек, как и над кухней, размещен в свободной зоне гостиной, он дополнен настенными бра. В спальнях — потолочные люстры и прикроватные бра. Санузлы, прихожая и раздевалка при сауне освещаются точечными светильниками. В сауне спроектировали мягкую подсветку.


Аделина Шарапова Дизайнер, автор проекта
Нам не хотелось перегружать дом декором, потому что его главный акцент — это вид из окна на реку Каму. Поэтому цвета в интерьере поддерживают вид из окон, а само оформление минималистичное, чтобы ничего не отвлекало от наслаждения природой и отдыха с семьей.
8 фото

Кухня-гостиная

Кухня-гостиная

Детская

Ванная комната

Сауна

Сауна

Сауна

Раздевалка Редакция предупреждает, что в соответствии с Жилищным кодексом РФ требуется согласование проводимых переустройств и перепланировок.

Смотреть перепланировку

Анастасия Дубровина

Георгий Трушкин Скандинавский стиль Минимализм Светлые цвета