Пятница, 23 января, 2026

Современный дизайн квартиры 100 м² в московской сталинке

Это интересно

Проектируя эту квартиру, Александра Хелминская-Леонтьева объединила исторический контекст сталинской архитектуры дома, современные тенденции в дизайне и любимые цвета всех членов семьи

Гостиная. Диван, Soul Wood. Подушки, Enere. Свет, Lampe Gras и Marset. Картины, галерея Carre d’artistes Moscow.

ПАРАМЕТРЫ ОБЪЕКТА

Тип недвижимости: квартира в сталинском доме

Где находится: Москва

Метраж: 100 м²

Основная идея проекта: создать уютный интерьер на основе сочетания исторического контекста сталинской архитектуры и современных тенденций в дизайне

Цветовая гамма: в проекте отражены цветовые пристрастия всех обитателей квартиры, от серо-голубых оттенков до бордово-розовых

Архитектор: Александра Хелминская-Леонтьева, @shurarch, т. +7 (926) 479-38-01

Современный дизайн квартиры 100 м² в московской сталинке

Диван, Soul Wood. Подушки, Enere. Журнальные столики, блюдо и чаша, GK Concept. Ковер, Art de Vivre.

Современный дизайн квартиры 100 м² в московской сталинке

Александра Хелминская-Леонтьева, архитектор.

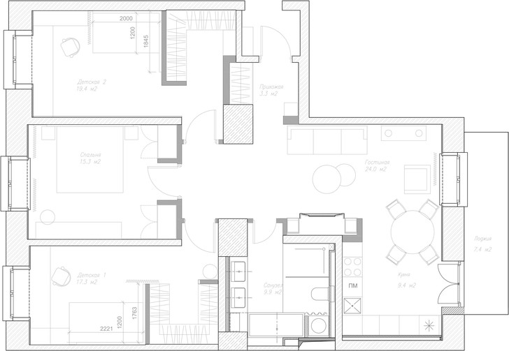
«В квартире сделана классическая симметричная планировка, — рассказывает архитектор Александра Хелминская-Леонтьева. — Налево от входа — объединенная кухня-гостиная. Направо — спальня и две детские. Получилось четкое разделение на приватную и общественную зоны. При этом нам удалось полностью уйти от коридоров. Пространства плавно перетекают одно в другое».

Современный дизайн квартиры 100 м² в московской сталинке

Кресло, DreamManufacture. Журнальные столики, блюдо и чаша, GK Concept. Ваза с черно-белым узором, Savour.Design. Шторы, AS Textile.

«Камин, который „не запланировано“ возник в ходе проектирования, оказался самым важным и контрастным элементом интерьера»

Современный дизайн квартиры 100 м² в московской сталинке

Столярное производство: шпонированные порталы и стеллажи вокруг камина, mebel.pw. Ваза, Savour.Design. Мрамор, mpamop.ru.

«Изначально заказчики — молодая семья с двумя детьми, хотели получить классический американский интерьер. Но уже на первой встрече я поняла, что им подойдет немного другая стилистика. Тогда же решили разбавить классический интерьер яркими цветовыми акцентами и современной мебелью. Концепцию утвердили сразу, и далее весь процесс проектирования и ремонта шел очень легко, „на одной волне“ с заказчиками, что случается не так часто, но неизменно приводит к хорошему результату».

Современный дизайн квартиры 100 м² в московской сталинке

Комод, Rooma design. Настольные лампы с керамическим основанием, работа Елены Ореховой, Savour.Design. Ковер, Art de Vivre. Картины, галерея Carre d’artistes Moscow. Журнальный стол, GK Concept.

Современный дизайн квартиры 100 м² в московской сталинке

Стол, UNIKA Møblär. Стулья, Cattelan Italia. Портал с отделкой из натурального шпона, mebel.pw.

«Зона столовой может „мигрировать“ из кухни в гостиную благодаря поворотным светильникам на длинных кронштейнах»

Современный дизайн квартиры 100 м² в московской сталинке

Свет, Lampe Gras. Вазы, Savour.Design.

Декораторские и архитектурные приемы, использованные в оформлении этого интерьера:

  • Классический декор стен с использованием молдингов и скрытых дверей.

  • Зонирование цветом и смелые контрастные сочетания.

  • Разделение пространства при помощи порталов.

  • Зеркальная отделка стен. В гостиной этот прием позволил расширить вытянутое пространство и сделать его более воздушным.

  • Поворотные светильники на длинных кронштейнах. Благодаря им столовая зона может «мигрировать» из кухни в гостиную.

Современный дизайн квартиры 100 м² в московской сталинке

Кухня, Mittel Cucine.

Современный дизайн квартиры 100 м² в московской сталинке

Современный дизайн квартиры 100 м² в московской сталинке

Двери, Soul Wood. Картины: Евгений Серков «Петровка», Даниэль Рейманн «Монблан», Йо «Легкость бытия» и «Воздушное настроение», Евгений Серков «Утро на Никольской», галерея Carre d’artistes Moscow.

«Соединить в одном интерьере цветовые пристрастия всех членов семьи, не разрушив цветовую гармонию пространства, было самым серьезным вызовом этого проекта».

Современный дизайн квартиры 100 м² в московской сталинке

Спальня. Кровать, DreamManufacture. Постельное белье, Amalia Home Collection. Ковер, Art de Vivre. Тумба, Pianca. Картина — Сергей Карев из серии «Последние дни апреля». Свет, Linea Light.

Современный дизайн квартиры 100 м² в московской сталинке

Современный дизайн квартиры 100 м² в московской сталинке

Кровать, DreamManufacture. Шторы, декоративные подушки и покрывало, AS Textile. Пуф, Rooma design. Картина — Франсуаз Суазо «Столичная штучка», галерея Carre d’artistes Moscow. Встроенные шкафы, mebel.pw.

Современный дизайн квартиры 100 м² в московской сталинке

Фрагмент детской. Стол и стеллаж, mebel.pw. Стул, ИКЕА. Картина — Петр Бронфин «Набережная». Вазы, Savour.Design. Ковер, Art de Vivre.

«В семье подрастают две дочки. Девочки настолько разные, что изначально хотели иметь диаметрально противоположные пространства. Но планировка внесла свои коррективы. Комнаты получились абсолютно симметричными. Только одна — нежно-розовая, а вторая — „а-ля“ кабинет в серо-голубых тонах».

Современный дизайн квартиры 100 м² в московской сталинке

Детская. Кровать, DreamManufacture. Постельное белье, Amalia Home Collection. Покрывало, AS Textile. Стол и стеллаж, mebel.pw. Стул, ИКЕА. Ковер, Art de Vivre. Обои, Cole & Son.

Современный дизайн квартиры 100 м² в московской сталинке

Современный дизайн квартиры 100 м² в московской сталинке

Современный дизайн квартиры 100 м² в московской сталинке

Современный дизайн квартиры 100 м² в московской сталинке

Планировка квартиры 100 м², проект Александры Хелминской-Леонтьевой.

Современный дизайн квартиры 100 м² в московской сталинке

Прихожая. Дверь, Soul Wood.Чесова Полина

Новое на сайте

Доходные дома Москвы: история и современность

От исторических памятников к современным жилым комплексам: как изменились столичные арендные дома с момента их появления ...

Похожие статьи

Если вы хотите получать уведомления на свой E-mail о появлении новых статей, то рекомендуем вам чуть ниже ввести свой электронный почтовый адрес.