Дизайнера Диану Калинкину вдохновил на создание этого интерьера архитектурно-парковый ансамбль Альгамбра, который расположен на юге Испании.
Заказчик и задачи
Эти апартаменты расположены в комплексе «Актер Гэлакси» в Сочи. Владелец — молодой бизнесмен — рассматривал объект как коммерческий, для сдачи в аренду. И пригласил дизайнера Диану Калинкину создать интерьер. Экстерьер комплекса намекал на современную стилистику жилья, но при этом хотелось создать атмосферу солнечного города. Решили оформить современный интерьер с нотками мавританского стиля, а вдохновением послужил реальный объект — архитектурно-парковый ансамбль Альгамбра в Гранаде, на юге Испании.

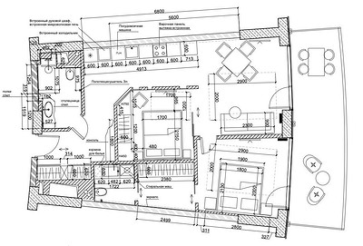
Планировка
Изначально застройщик сдавал апартаменты без перегородок, это был трапециевидный объем с окнами по одной стороне и просторной террасой. Статус апартаментов означает достаточно свободы в планировке, здесь нет строгих норм, как в случае с жилыми помещениями. Нужно было обустроить две спальни, общую зону кухни-гостиной, санузлы. Так и сделали.

При входе выделили большой гардеробный шкаф и основную ванную комнату. Дальше — общую кухню-гостиную, где кухонная зона занимает проходную часть. Одна из спален — главная — изолирована и расположена у окна. В ее блоке также есть своя гардеробная и небольшой санузел. Выделить вторую спальню было сложнее, но и это получилось. Небольшую комнату решили организовать по центру квартиры, отделив от кухни-гостиной стенами с раздвижной дверью-перегородкой из стекла. Так в спальню попадает естественный свет.

Отделка
В отделке применяли материалы с отсылкой к выбранному мавританскому стилю. В общих помещениях — прихожей, кухне, гостиной — на стенах использовали декоративное покрытие с фактурой штукатурки, сочетая с рельефной плиткой, которой оформили фартук, стену в столовой зоне и две стены в прихожей.

В спальнях использовали обои. В малой — рисунок с будто бы размытой полосой. В большой — тоже полосы с неровными краями. Но на стене за кроватью также выложили мозаику и фигурные молдинги. На полу использовали паркетную доску и керамогранит (в прихожей, на кухне). Санузлы оформили плиткой с разными фактурами и рельефом.

Системы хранения
Гардеробный шкаф, который установлен прихожей, предназначен не только для одежды — он увеличенной глубины, так что внутри скрылись также коллекторный шкаф и щиток. Функцию хранения в спальне выполняет гардеробная, а в малой спальне — встроенный шкаф, который выполнен в единой композиции с кроватью для визуального облегчения маленького пространства.
Кухонный гарнитур — линейный, со всей необходимой техникой. Часть верхних шкафов заменена открытыми полками, что тоже работает на визуальную легкость.
Дизайн мебели — комбинация современных и стилизованных предметов. Так, например, диван и обеденная группа, а также кухонный гарнитур — подчеркнуто современные. При этом в гостиной стоит деревянный столик с фигурным основанием. В малой спальне — мягкое изголовье кровати со строчкой и фасады шкафа, обитые материалом таким же образом. На ручках — кисточки, что напоминает о восточном стиле. В главной спальне — кровать с мягким изголовьем в форме заостренного полукруга и фигурные тумбочки также отсылают к эстетике Востока.

В прихожей установлен эффектный стол-консоль и над ним — зеркало в фигурной раме.

Освещение
Общее освещение продумано в виде встроенных точечных светильников и линейных подсветок. Декоративные сценарии решены в виде крупной люстры над обеденным столом, бра на длинной регулируемой ножке над диваном, двух симметричных бра с медной отделкой в главной спальне, маленького ридера у кровати в малой спальне и бра в рабочей зоне там же.


Дизайнер Диана Калинкина, автор проекта:
Мы хотели передать атмосферу отдыха, солнечного города, но не хотелось буквально цитировать элементы мавританского стиля, так как апартаменты находятся в современном жилом комплексе. Заказчик все же хотел современный интерьер с элементами этого стиля.
30 фото

Гостиная

Гостиная

Гостиная

Кухня-столовая

Кухня-столовая

Кухня-столовая

Кухня-столовая

Кухня-столовая

Кухня-столовая

Кухня-столовая

Кухня-столовая

Кухня-столовая

Вид на малую спальню

Малая спальня

Малая спальня

Вид на главную спальню

Главная спальня

Главная спальня

Главная спальня

Главная спальня

Главная спальня

Санузел при спальне

Санузел при спальне

Прихожая

Прихожая

Санузел

Санузел

Санузел

Санузел

Санузел Редакция предупреждает, что в соответствии с Жилищным кодексом РФ требуется согласование проводимых переустройств и перепланировок.

Смотреть перепланировку

Анастасия Дубровина

Виола Заварзина Эклектика Светлые цвета Оранжевый цвет Яркие цвета