Владелец этой квартиры несколько лет прожил в Нью-Йорке и мечтал ощутить его атмосферу в Москве. Оказалось, это возможно
Кухня-гостиная, фрагмент. Кресло, Gallotti radice. Светильники, SWG. Шторы, Persa Design. Стеновые панели, Zenkitchens. Инженерная доска, Eurohome.
ОБЩИЕ ПАРАМЕТРЫ
Тип недвижимости: квартира в новостройке на 15 этаже
Где находится: Москва, метро «Октябрьское поле».
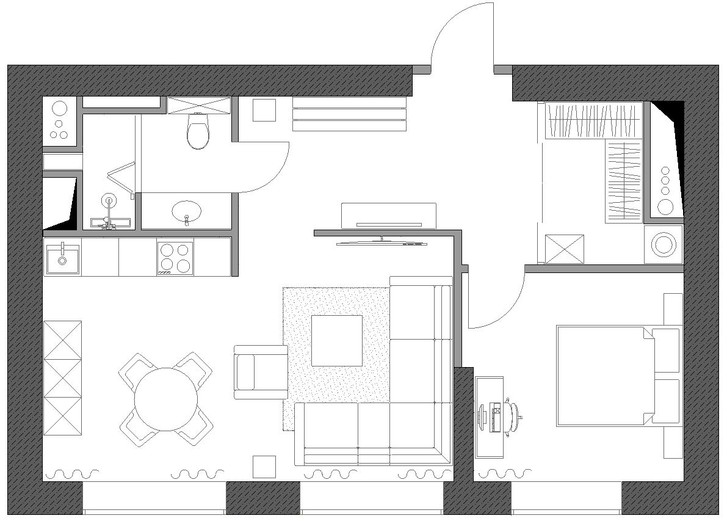
Метраж: 59 м2
Стиль: минималистичный люкс
Основная идея проекта: передать настроение и атмосферу Нью-Йорка
Цветовая гамма: бежевый/ хаки/ орех
Автор проекта: Игорь Ким, т. +7 (969) 065-13-13, ik@zenkitchens.ru

Кухня-гостиная, фрагмент.
Путешествия расширяют горизонт, но заставляют нас грустить о том, что осталось в прошлом. С владельцем этой квартиры на «Октябрьском поле» так и произошло: несколько лет он прожил в Нью-Йорке и привык к ритму этого города. Из книг и фильмов мы знаем, что этот город никогда не спит, а еще, оказывается, не дает забыть о себе тем, кто в нем хоть однажды побывал.

Кухня-гостиная, фрагмент.
У этого проекта есть предыстория, достойная если не повести, то по крайней мере новеллы. Заказчик пришел к Игорю Киму, основателю кухонной студии Zenkitchens, за кухней. Но что-то его зацепило, и в результате дизайнер получил заказ на оформление интерьера всей квартиры.

Кухня-гостиная. Кухонный гарнитур, Zenkitchens. Стеновые панели, Zenkitchens. Инженерная доска, Eurohome.
Разумеется, это не финал истории, а ее начало. Заказчик хотел сложные потолки, которые видел и запомнил в Нью-Йорке, они должны были сочетаться с деревянными панелями, создающими в квартире уют. У дизайнера было несколько иное представление о том, как могла бы выглядеть квартира на пятнадцатом этаже московского ЖК, с шикарным видом на Останкинскую телебашню, но в итоге было найдено решение, устроившее всех.

Кухня-гостиная, фрагмент. Кухонный гарнитур — работа кухонной студии Zenkitchens, основателем которой является автор проекта, дизайнер Игорь Ким.

Кухня-гостиная, фрагмент.
Отдельная история связана со спальней. Стена за изголовьем кровати отделана керамогранитом с красивым рисунком. «Когда я увидел этот керамогранит, сразу понял, что ничего лучшего для изголовья кровати в этот проект мы не найдем», — рассказывает Игорь Ким. — Заказчику она тоже сразу понравилась, но каково же было наше разочарование, когда нам объявили, что этой плитки не только нет в наличии, но и вообще не будет».

Спальня. Кровать, Rejoice Life. Прикроватный столик, Gallotti radice. Текстильные панели, MolleMebel. Светильники, SWG.

Спальня, фрагмент. Стол, Le Home Interiors.

Спальня, фрагмент. Кровать, Rejoice Life. Прикроватная зеркальная тумба под аксессуары, Zenkitchens. Текстильные панели, MolleMebel.
Трудно объяснить, что чувствует автор проекта, когда уже сложившаяся в его голове картинка начинает рушиться. Найти именно такую плитку в других магазинах не удалось, и дизайнер уже начал подыскивать альтернативные варианты. И тут кто-то из менеджеров предложил безумную идею — собрать по одной экспозиционной плитке из каждого шоурума в сети магазинов по всей Москве. Заказчик согласился на эту авантюру, и через неделю паззл был собран.

Коридор. Банкетка и консоль, Le Home Interiors. Зеркало, Kare. Инженерная доска, Eurohome Светильники, SWG.

Фрагмент коридора. Банкетка и консоль, Le Home Interiors. Зеркало, Kare. Раздвижная перегородка, Dorian.
Заказчик несколько лет прожил в Нью-Йорке и привык к ритму этого города, ему хотелось перенести эту атмосферу в Москву

Фрагмент коридора. Зеркальная тумба под аксессуары, Zenkitchens.

Ванная комната. Тумба под раковину, Zenkitchens. Зеркало, Alexvitrage. Сантехника, Grohe. Керамогранит, Dixer.

План квартиры.Татьяна Филиппова