Обустройство квартиры пришлось на время, когда зарубежные бренды ушли с рынка. Но дизайнер Галина Соколова успешно использовала материалы и мебель российских производителей, что сыграло только в плюс.
Заказчики и задачи
Эта квартира находится в типовом блочном доме серии II-18, построенном в 1963 году. Владелица — молодая девушка, студентка факультета политологии. Эпоха постройки дома, страсть хозяйки к стилю оп-арт, а также любовь дизайнера Галины Соколовой к эстетике 60-х определили и вид будущего интерьера — современное пространство с отсылками к 60-м.

Перепланировка
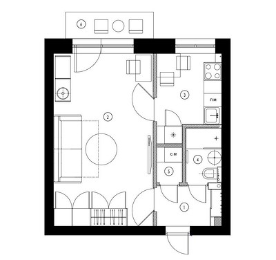
Однокомнатная квартира типовая, здесь комната площадью 20 метров, маленькая кухня, по площади не достигающая и 6 квадратов, крошечная ванная 2,2 кв. м, прихожая. Кухню, прихожую и комнату связывал коридор, от которого хозяйке хотелось избавиться. Дизайнер это и сделала в плане перепланировки. Вход в комнату организовали из прихожей, а на кухню — из комнаты.

Коридор же задействовали, частично расширив кухню (сделали нишу для встройки колонн с холодильником и выдвижными полками), а также для организации хозяйственного блока — места для стиральной машины.

Отделка
В отделке отдали предпочтение базовым материалам: краске на стенах, обоям с геометрическим рисунком, который помогает воссоздать настроение эпохи 60-х, — в комнате на стене за диваном, керамограниту и плитке в ванной и постирочной. На полу в комнате уложен ламинат «елочкой», имитирующий паркет. На кухне и в прихожей — крупноформатный керамогранит.
В квартире низкие потолки (2,5 м), и дизайнер хотела как-то компенсировать этот недостаток с помощью визуальных приемов. Нашли нестандартное решение — высокие двери 2,2 метра. Так потолки кажутся выше, чем есть на самом деле.

Мебель и системы хранения
В прихожей не было возможности установить шкаф стандартной глубины из-за ограниченного пространства, поэтому сделали узкий шкаф глубиной 38 см. Внутри — крючки для верхней одежды и полки для хранения мелочей.
Полноценное место для хранения обустроено в комнате — это четырехдверный шкаф. Также есть комод для мелочей.
В кухне удалось вписать все необходимое, даже посудомоечную машину (компактную) и микроволновую печь (встроили в верхние шкафы). Варочную панель выбрали на две конфорки, чтобы сэкономить место на рабочей поверхности. Холодильник встроен в нишу, которую организовали на месте бывшего коридора.

В мебели отдали предпочтение российским брендам и производству на заказ.
Освещение
В проектировании освещения учитывали низкие потолки: подвесы или крупные люстры не смотрелись бы удачно в таких условиях. Поэтому на потолке — точечные полувстраиваемые светильники, а дополнительное освещение реализовано с помощью настенных бра над диваном, настольной лампы на комоде, подсветки зеркала в санузле.


Дизайнер Галина Соколова, автор проекта:
Стиль можно определить как подражание минимализму 60-х. Эпоха безграничной легкости и простоты, когда в моду входят бумажные обои с геометрическим рисунком, выпуск мебели становится массовым, чувствуется влияние оп-арта в интерьерном дизайне. С учетом того, что сам дом принадлежит этой удивительной эпохе, то мне хотелось вновь вдохнуть дух 60-х в интерьер этой малогабаритной квартиры. Необычным декором стала гипсовая голова древнеримского бога. Когда-то моя заказчица училась в художественной школе и рисовала гипсовые головы древнеримских богов и героев. Голова Антиноя была ее любимой, и поэтому она путешествует с заказчицей по всем съемным и не съемным квартирам. В этой квартире мы решили придать скульптуре новый яркий цвет, вдохнуть новую жизнь. Диван желтого цвета был выбран потому, что он напоминает солнце и добавляет радостных оттенков в интерьер, перекликаясь с удивительным постером в стиле оп-арт по мотивам Виктора Вазарели.

Гостиная

Кухня

Санузел

Санузел Редакция предупреждает, что в соответствии с Жилищным кодексом РФ требуется согласование проводимых переустройств и перепланировок.

Смотреть перепланировку

Анастасия Дубровина

Анастасия Кутырина Хрущевки Маленькие квартиры Современный стиль Яркие цвета