Дизайнер спроектировала комфортное пространство для семьи с двумя детьми, где есть общая зона для семейного времяпрепровождения и приватные комнаты для занятия любимыми хобби.
Заказчики и задачи
Владельцы этой квартиры в современном жилом комплексе Санкт-Петербурга — семья с двумя детьми: девочкой 9 лет и мальчиком 14 лет. Хозяйка дома любит готовить и увлекается шитьем, дети учатся и занимаются музыкой — гитарой и фортепиано, а глава семьи много работает, и дома стремится к полноценному отдыху. Исходя из этого дизайнеру Александре Якушенко предстояло спроектировать интерьер их квартиры.

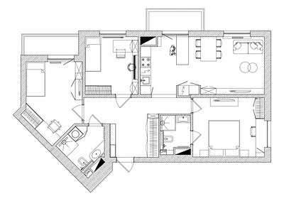
Перепланировка
Изначальную планировку дизайнер называет «хорошей»: здесь были три изолированные комнаты, два санузла (один из них при спальне) и достаточно просторная кухня-гостиная. Глобальных изменений делать не стали, но улучшили имеющиеся данные. Так, согласно плану от застройщика кухня должна была занимать нишу длиной 2,2 погонных метра. Но семье нужна была более просторная и вместительная зона. Дизайнер решила задачу, разместив перегородку для встройки шкафов-пеналов с техникой, а также разобрав обшивку труб — доступ к ним организовали в кухонном пенале. Кроме того, планировкой кухни теперь предусмотрен кухонный остров. «Нам удалось добавить функционального пространства и увеличить общий погонаж кухни почти в 3 раза», — рассказывает Александра.

Общий санузел — неправильной формы, со скошенными углами. Эти недостатки пришлось исправлять уже с помощью мебели, изготовленной на заказ. В частности, тумбы под раковину сложной конструкции, которая выравнивает стену.
Отделка
Для отделки стен выбрали краску. В качестве основного фона — оттенки серого, они разбавлены мятным и белым в мебели и частично в отделке. Так, например, в кухне-гостиной нижние шкафы гарнитура и остров оформлены в мятном цвете, в тот же оттенок окрашена часть стены на границе кухни и гостиной. Фартук выполнен из плитки с рисунком терраццо.

Стены украшают молдинги, а потолки — карнизы. В кухне-гостиной и прихожей-коридоре дизайнер применила необычный эффектный прием: под карнизом протянут тонкий молдинг, окрашенный в мятный цвет (главный акцентный оттенок этого интерьера). «Он хорошо подчеркивает геометрию помещения», — объясняет автор проекта.

В родительской спальне решили выделить акцентом стену за изголовьем кровати. Для этого использовали декоративную покраску с фактурой велюра — подобный прием не перегружает интерьер, но делает его интереснее, избавляет от необходимости как-то украшать стену.

На полу в мокрых зонах и прихожей уложили керамогранит, а для жилых комнат выбрали ламинат. В кухне-гостиной — комбинация керамогранита (в зоне кухни) и паркетной доски.
Системы хранения
Для хранения предусмотрели шкафы в каждой спальне. Так, в родительской решили задействовать пространство у окна, там поместился небольшой шкаф, но стандартной глубины, а также рабочее место с тумбой и узким шкафчиком. Стол предназначен для любимого хобби хозяйки — шитья. Для дополнительного хранения предусмотрели подвесной комод напротив кровати и две подвесные тумбы.

В каждой детской — платяные шкафы и рабочие места со стеллажами и полками, где можно хранить учебники и тетради.

В прихожей — встроенный шкаф, фасады которого окрашены в цвет стен. Один из фасадов оформлен зеркалом — для визуального расширения пространства. Торец шкафа со стороны коридора в кухню дополнен витриной. «Это сделано для визуального облегчения стены и создания более приятной глазу перспективы со стороны кухни», — объясняет дизайнер. Кроме того, в прихожей есть вешалка и обувница.

Про размещение кухни мы уже подробно говорили в пункте о перепланировке, но повторимся, что для того, чтобы сделать кухню максимально вместительной, дизайнер продумала незначительные изменения еще на этапе проектирования. С помощью острова расширен функционал: внутри есть ящики для хранения и встроена микроволновая печь, а также винный шкаф. В зоне гостиной — подвесная консоль с пеналом.
В санузлах хранение организовано с помощью выдвижных ящиков под раковинами, также в каждом санузле предусмотрен шкаф. В большой душевой в нем удалось разместить стиральную машину и бойлер.

Освещение
В качестве общего верхнего света продуманы люстры и трековые светильники. В спальнях у кроватей предусмотрены бра для вечернего света, в санузлах — подсветки зеркал над раковинами. В душевой — декоративный подвес у зеркала.


Дизайнер Александра Якушенко, автор проекта:
Главной темой общего пространства стала палитра, выстроенная на сочетании мятного и белого цвета. Мебель и текстиль поддерживают эту идею. Диван в обивке цвета Deep ocean («глубокий океан») стоит рядом с картиной, в которой присутствуют розовые тона. Мятный цвет дозировано «выходит» в зону прихожей (молдинги), как и оттенки розового (мебель). В комнате девочки мятный цвет представлен на фасадах шкафа и в текстиле. Черный — как акцентный в деталях: ножки стула, фортепиано, ручка стола. А в комнате мальчика палитра темнее и строже. Тут появляются синие и голубые оттенки в мебели и текстиле в сочетании с темным полом.
21 фото

Гостиная

Кухня

Кухня

Кухня

Кухня

Столовая

Спальня

Спальня

Спальня

Санузел при спальне

Комната дочери

Комната дочери

Комната дочери

Комната сына

Комната сына

Комната сына

Комната сына

Душевая

Душевая

Душевая

Прихожая Редакция предупреждает, что в соответствии с Жилищным кодексом РФ требуется согласование проводимых переустройств и перепланировок.

Смотреть перепланировку

Анастасия Дубровина

Иван Сорокин

Диана Ремизова Современный стиль Белый цвет Серый цвет Розовый цвет Мятный цвет