«Конфетные» цвета, арочные формы, терраццо в ванной и на кухне — дизайнер Мария Михайлова применила модные приемы и создала фотогеничное пространство для молодой девушки.
Заказчица и задачи
Владелица этой квартиры в новостройке Саратова — популярный блогер, которая ведет свой бизнес. Интерьер должен был быть не только комфортным для жизни, но и фотогеничным для записи видеоуроков и трансляций. Для этого хозяйка обратилась к дизайнеру Марие Михайловой.

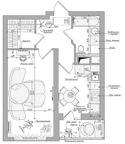
Планировка
По изначальному плану в квартире предполагалась отдельная вытянутая комната, ванная и кухня с балконом. В прихожей выделили гардеробную, а в остальном планировка осталась прежней. В комнате организовали гостиную с большим мягким полукруглым диваном и макияжную зону. На балконе — мини-кабинет с рабочим столом и креслом. Кухня, как и ванная, используются по прямому назначению.

Отделка
«Выбор чистовых отделочных материалов обусловлен повышенной износостойкостью и удобством эксплуатации», — говорит автор проекта.

На стенах — краска. Использовали нестандартные приемы окрашивания, формируя арочные формы. Две арки в гостиной окрашены грифельной и магнитной краской для того, чтобы можно было сделать записи и прикрепить важные бумаги.

На полу во всей квартире, кроме ванной, уложен кварцвинил. Это практичное покрытие, которое не боится влажности, поэтому его можно укладывать даже на кухне и в прихожей.
В ванной использовали плитку терраццо и скомбинировали отделку с окрашиванием. Краску нанесли на участок стены под потолком, добавив цвета.

Мебель и системы хранения
Благодаря тому, что в прихожей выделили гардеробную, квартира осталась свободной от габаритных шкафов. Дополнительное место для хранения сделали в ванной комнате — это тумба под раковину и высокий хозяйственный шкаф.
Кухонный гарнитур получился компактным, выстроенным в одну линию.

Нижние и верхние шкафы выполнены в разных цветах. Внизу — голубой, который сочетается с окрашенной стеной в обеденной зоне. Наверху — светлый сиреневый, который делает конструкцию визуально легче.

Освещение
В качестве основного освещения использовали точечные светильники. В гостиной на потолке также размещена крупная люстра, которая привлекает к себе внимание. В той же стилистике — бра над диваном. В зоне туалетного столика — зеркало с подсветкой.
На кухне к точечным светильникам добавили подвесы над обеденным столом, а на балконе — бра рядом с рабочим местом.


Дизайнер Мария Михайлова, автор проекта:
Это проект однокомнатной квартиры в стиле мемфис для яркой и активной заказчицы. Мемфис — стиль 80-х, он предполагает использование в интерьере геометрических форм и необычных орнаментов. Характерной чертой являются арки, закругленные и обтекаемые формы мебели. Все это присуще нашему интерьеру. Заказчица является блогером с большим количеством подписчиков, и квартира подразумевалась для фото- и видеосъемок, а также для постоянных трансляций из интернета. Было продумано большое количество локаций. Жизнеутверждающие надписи на латыни отражают высокий уровень образованности заказчицы.
14фото

Гостиная

Гостиная

Гостиная

Гостиная, вид на прихожую

Прихожая

Прихожая

Кухня

Кухня

Балкон при кухне

Балкон при кухне

Дверь в ванную комнату

Ванная комната

Ванная комната

Ванная комната Редакция предупреждает, что в соответствии с Жилищным кодексом РФ требуется согласование проводимых переустройств и перепланировок.

Смотреть перепланировку