Решив переехать в знаменитый «Дом летчиков» в центре Москвы, архитектор Анастасия Стенберг придерживалась двух главных принципов проектирования: «Хочешь жить в старом доме, забудь про минимализм!» и «Главное — воздух. Его должно быть много!»
Диван Venere от Calia Italia. Кресло Delfino от Arflex. Винтажный журнальный столик, ГДР, семейное наследство. Стеллаж Less Reol от PBJ Designhouse. Торшер, 101 Copenhagen. Балконные двери, «Баварский дом». Гипсовые карнизы, «Дикарт».
Коротко о проекте:
Объект: собственная квартира архитектора Анастасии Стенберг в московском «Доме летчиков» — историческом здании 1937 года постройки
Где находится: центр Москвы
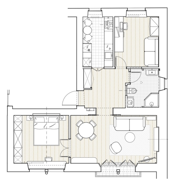
Метраж: 65 м²
Стиль: «осовремененный ретро»
Цветовая гамма: Earth colours (нейтральные природные оттенки)
Контакты: архитектор Анастасия Стенберг, www.astenberg.com

Архитектор Анастасия Стенберг, www.astenberg.com.
«До переезда в эту квартиру на Китай-городе мы с тремя детьми жили в прекрасном зеленом районе Сокольники, в большой 4-х комнатной квартире, — рассказывает архитектор Анастасия Стенберг. — Но настал момент, когда дети выращены, обучены, выпущены из гнезда, а значит — можно подумать о себе в статусе заказчика и исполнителя собственного интерьера. Итак, мы с мужем приступили к поискам и первым делом четко определили границы. Китай-город, Лубянка, Покровка и Чистые пруды — это мои любимые районы с юности. Всегда знала: если перееду в центр, то только сюда и только в старый фонд. Никаких новостроек и монолита! Только кирпич, толстые стены и подоконники глубиной 40–50 сантиметров, а никак не 20. Хотя это уже издержки профессии, я понимаю».

«В торцевой стене в гостиной была низкая ниша для радиаторов. Теперь в комнате один высокий радиатор и один внутрипольный конвектор, благо высота полов позволяет. Сама ниша немного „выросла“, утеплилась и стала обрамлением для прекрасного датского стеллажа Less Reol от PBJ Designhouse. На полочке над радиатором стоит „мой друг“, так я называю керамический „Полумесяц“, купленный в магазине Академии художеств на Пречистенке. С другой стороны стеллажа на узком лакированном шкафчике — фигурка девушки-ангела из Белладжио, с озера Комо. Не могла уехать без нее».

Потолочный светильник, Flos. Настольная лампа, семейное наследство. Буфет, ГДР, 1960-е. Балконные двери, «Баварский дом». Гипсовая лепнина, «Дикарт».
«Дом, в который мы переехали, был построен по проекту архитектора А.И. Ефимова для военного ведомства в 1937 году. Примерно тогда же стал известен в народе как „Дом летчиков“ в честь первых жильцов — героев авиации, которым здесь давали квартиры».

«Суперудобное кресло Delfino от Arflex я давно увидела на одной из выставок и сразу поняла, что когда-нибудь такое же будет и у меня».

Раскладной стол, Ozzio Italia, со столешницей из керамогранита. Светильник Ginger от Marset. Стулья, Findahls. Дубовый паркет, «Золотой лес». Краска для стен, Sherwin-Williams.
«Прекрасные пропорции архитектуры дома, двойные балконные окна в пол и вид на город компенсировали некоторую нехватку метров и сами собой определили стиль будущего интерьера: немножко ретро, где-то даже с претензией на классицизм, но обязательно с легкостью бытия и с привкусом скандинавского дизайна».

Планировка квартиры 65 м², «Архитектурное бюро Стенберг Анастасии», www.astenberg.com.
«Передвинув пару стен, переоборудовав ванную и туалет, перенеся кухню (все официально, с экспертизой и согласованной перепланировкой), мы получили небольшую, но в то же время просторную трехкомнатную квартиру».

«В спальне мой любимый светильник от Verner Panton. У него есть разные модификации, но этот, полностью белый, дает самый правильный свет». Шкафы из MDF выполнены на заказ по чертежам архитектора.
«Интерьер не должен противоречить экстерьеру! — уверена Анастасия Стенберг. — Хотите минимализм — покупайте квартиру в небоскребах Сити. Решили поселиться в старом доме — извольте соответствовать»

Бра, &Tradition. Изголовье кровати, Andersen. Тумбочка, Дания, 1960-е.
«Так появились двери с рифленым стеклом, одна — книжкой, другие — вкатные в стену, круглое окно в ванную. Небольшой французский балкончик увеличился за счет того, что вместо двойного остекления массивный стеклопакет поставили по внутреннему контуру. А в спальне огромный подоконник несет функцию и туалетного, и консольного столика».

Стул, Findahls. Краска, Little Greene.

Фрагмент спальни. Окна, «Баварский дом». Настольная лампа, 101 Copenhagen.
«Светильник, красующийся теперь в прихожей, достался в наследство от прежних жильцов, конечно, в удручающем состоянии. Нашла, где отреставрировать и теперь даже знаю, что это 60-е годы, называется он UFO. Также отреставрировали, отполировали дверные ручки, латунные продухи в полу. Сам паркет был дубовым, неплохо сохранившимся, но под ним скрипели балки и лаги. Так что весь „пирог“ пола пришлось поменять. Распашные двери в спальню и в остальные комнаты тоже новые, но выполненные по историческим образцам».

Раздвижные двери, Provance, со вставками из рифленого стекла «Флутс». Потолочный светильник UFO, 1970-е. Зеркало, Hoff. Дубовый паркет, «Золотой лес».
«Моя особая гордость — буфет из шпона и корня палисандра, таких сейчас уже не делают. Увидела я его в плачевном состоянии, к тому же он не проходил по длине. Но эта несимметричная форма и закругленные стекла меня сразили, так что я решила „бороться“. От буфета была отрезана глухая высокая часть, которая теперь превратилась в вертикальный шкафчик и стоит отдельно в углу у ниши в гостиной. Весь буфет перебрали, обновили, покрыли лаком — и теперь любуемся, до чего он красив! Таких историй в этой квартире немало».

Кухня, Mr.Doors, деревянные фасады выполнены на заказ. Столешница из гранита, Stone Paradise. Стулья Series 7, дизайн Арне Якобсена 1955 года, Fritz Hansen.
«На кухне — знаменитые стулья Series 7, придуманные Арне Якобсеном в 1955 году и с тех пор являющиеся одним из главных бестселлеров марки Fritz Hansen. Чаще всего они выпускаются с сидением из прессованного шпона, но для себя я выбрала отделку из кожи коньячного цвета. На стене — привезенная из Питера авторская копия картины художницы Юлии Сопиной, это „Ангел-хранитель“ нашего дома».

Светильник, Lampe Gras. Стул Series 7, дизайн Арне Якобсена, Fritz Hansen. Репродукция картины Юлии Сопиной «Эрарта». Керамогранит, Mainzu Ceramica.
«Я всегда говорю своим заказчикам: вы должны видеть и ощущать свои квадратные метры. Ни к воем случае нельзя перегружать интерьер, главное — воздух. Его должно быть много!»

Светильник и кровать, La Redoute. Винтажная тумбочка, ГДР, семейное наследство. Фотография, Геннадий Никеев. Картина, Ольга Солдатова. Керамика, Illum.

Круглое окно в ванную комнату дает стилистическую отсылку ко времени постройки дома и заодно пропускает естественный свет в прихожую. Секретер, Selva. Стул, Softline. Картина, Катя Медведева.

Окно, Kaleva. Радиатор, Irsap. Раковина, Bleu Provence. Плитка Octogono от Adex.Чесова Полина