Архитекторы Мария Илюк и Игорь Черновол провели реконструкцию квартиры 77 кв. метров в бывшем петербургском доходном доме 1912 года в стиле северного модерна
Кухня-гостиная. Утраченные элементы старинной гипсовой лепнины восстановили. Двери — ровесники дома, очистили от краски и частично отреставрировали. Настольная лампа, Zara Home. Краска для стен, Sherwin-Willams. Блочный паркет от Coswick.
Тип недвижимости: квартира в бывшем доходном доме 1912 года, без капитального ремонта
Где находится: центр Санкт-Петербурга, район Пески
Метраж: 77 м²
Стиль: эклектика
Основная идея проекта: реконструкция квартиры с приспособлением исторической планировки под современный комфорт
Цветовая гамма: монохромная, с яркими цветовыми акцентами
Контакты: архитекторы Мария Илюк и Игорь Черновол, выпускники СПбГАСУ, работают в Санкт-Петербурге и в Москве, www.Idealabspb.ru, т. +7 (911) 947-99-39

Игорь Черновол и Мария Илюк, архитекторы.
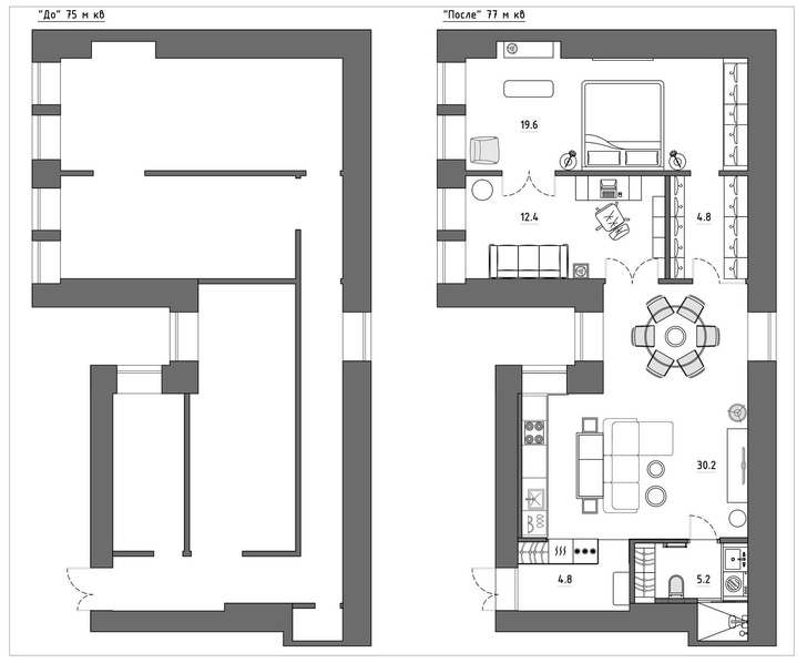
«Мы долго искали квартиру для себя в центре Санкт-Петербурга, сохранившую дух эпохи начала ХХ века. И вот, наконец, нашли! — рассказывают архитекторы Мария Илюк и Игорь Черновол. — Квартира годами стояла на продаже по сниженной цене. Никто не хотел ее покупать — без ремонта, с планировкой «расческа» (см.ниже), типичной для доходного дома начала ХХ века — длинный коридор с узкими нарезанными комнатами, старые двери, замазанные масляной краской, ветхая лепнина царских времен, ванна на кухне, ниша в коридоре для туалета — типичная питерская коммуналка. Но архитекторам это только на руку!
Мы сразу увидели, что внутри квартиры нет несущих стен, только перегородки. К тому же первая комната при кухне изначально считалась нежилой из-за низкой освещенности. Идея новой планировки тут же родилась!»

Стол сделан на заказ. Дубовая столешница, мастерская «Артель». Чугунное подстолье Mеtro от Resta line. Стулья из гевеи Jupiter от TetСhair.
«Квартира годами стояла на продаже по сниженной цене. Никто не хотел ее покупать, но архитектор всегда может найти решение!»


Люстра, Artefacto.ru. Зеркало, Teak House. Подсветка зеркала, Eglo. Поднос, Balmuir. Ваза, ИКЕА. Бюст Афродиты привезли из Афин.
«Первым делом мы решили избавиться от длинного коридора, который занимал почти четверть полезной площади, объединили кухню с нежилой комнатой и получили большое пространство для будущих идей. Далее встал вопрос, как выгородить место для полноценного санузла и прихожей. Если с санузлом все оказалось очевидным, то над прихожей пришлось подумать. Не хотелось делать еще один коридор взамен старому, поэтому мы решили вместо перегородки поставить кухонные пеналы до потолка, тем самым визуально разгородили зону прихожей и кухни-гостиной».

На фасады кухни, ИКЕА, наклеены итальянские состаренные зеркала, Anticato Oro. Карниз буфета, Ultrawood. Техника, Bosch. Мойка и смеситель, Omoikiri Kanto. Столешница кухни — гранит Capolavoro Anticato. Столешница острова — гранит Golden Galaxy. Барные стулья, Artefacto.ru.
«Получившееся пространство хотелось сделать максимально единым по стилю, чтобы избежать ощущения дисбаланса между функциональной зоной приготовления пищи и гостиной-столовой. Поэтому верхний фронт кухни стилизовали под буфет бистро эпохи модерн».

Подвесные светильники, Artefacto.ru. Светильник над окном, Eglo. Кухонный фартук — керамогранит Manhattan от FAP Ceramiche. Электрооборудование, Jung. Перцемолки, Peugeot Paris. Старинные супница и блюда, Кузнецовский фарфор, остались от прежнего хозяина квартиры.

Диван Mendini от Sk Design. Пуф, Glasar.
«В отличии от мест общего пользования, с жилыми комнатами все было куда проще. В квартире до нас жили интеллигентные люди, которые бережно относились к имуществу. От них осталось много книг, посуды, картин, которые мы смело использовали как декор в создании нового интерьера. Лепнину и двери так же удалось сохранить — очистить, восстановить утраченные элементы. Дубовый паркет за сто лет пришел в полную негодность, его пришлось заменить на новый, с раскладкой „корзинка“, типичной для доходных домов того времени».

Вид из кабинета на гостиную-столовую. Бра, Artefacto.ru, дополнены абажурами, Soprasotto Paralumi, привезенными из Флоренции. Настольная лампа, Pentik.
«Мы долго думали, что делать с системой хранения в исторических комнатах. Ставить платяные шкафы и выгородки в цельных помещениях не хотелось, поэтому решили рискнуть и задействовать под гардероб оставшийся кусок коридора между комнатами, тем самым максимально функционально использовать всю площадь квартиры».

Фрагмент кабинета. Диван, Pohjanmaan. Картина Александра Меерсона. Подоконники из гранита Саpolavoro Anticato. Венецианское зеркало, Casa Stockmann. Чугунные радиаторы Derby от Radimax. Краска для стен Topsail от Sherwin-Williams.
«Самые ценные экспонаты в нашем доме — картины крымского художника Александра Меерсона. Его работы можно увидеть в филиале галереи Айвазовского и во многих частных собраниях по всему миру. Мы рады, что изначально выбрали нейтральный цвет стен, так как он стал идеальным фоном для истинного искусства».

Кабинет. Стол и стеллаж из палисандра, Artefacto.ru. Настольная лампа, Zara Home. Кресло, Arcada Group. Антикварная картина над столом и кораблик остались от предыдущего хозяина квартиры.
«Нам удалось комплексно решить все вопросы — совместить прошлое и настоящее, при этом максимально задействовать всю полезную площадь под современные функции использования пространства»

Фрагмент спальни. Стена из цветных зеркал выполнена под заказ, наличники, Ultrawood. Консоль, банкетка и настольная лампа, Artefacto.ru. Шелковый абажур, Imperial Lighting. Фурнитура, Zara Home. Картина Александра Меерсона. Керамическую статуэтку Хаката-нинге и вазу привезли из Фукуока. Китайские вазы, Teak House.

Спальня. Кровать Silvana от Ascona. Покрывало, Zara Home. Бра, Artefacto.ru. Картины Александра Меерсона. Зеркальный шкаф, ИКЕА.
«После демонтажа ненужных перегородок встал вопрос, что делать с историческими полотнами дверей. Решили очистить от старой краски, отреставрировать и приспособить к новой планировке. Таким образом мы получили анфиладную систему с тремя распашными дверями, ощущение единого пространства во всей квартире, воздуха и свободы».

Столешница прикроватной тумбы выполнена под заказ из мрамора Nero Marquina. Бра, Artefacto.ru. Блочный паркет, Coswick.

Ванная комната. Плитка New Yorker от Settecento. Рама у зеркала выполнена из мозаики из нержавеющей стали с контурной подсветкой изнутри. Тумба под раковину и стиральную машину, ИКЕА. Смеситель, Grohe. Столешница из гранита Absolute Black. Рейлинги, Wess. Настольная лампа, Markslojd. Косметическое зеркало, Bauer.

Фонарь, Artefacto.ru. Напольная мозаика, Tubadzin от Maciej Zień. Душевой поддон из гранитного слеба Capolavoro Anticato, щелевой трап, Advantix Vario. Душевая система Raindance Select, Hansgrohe. Аксессуары Edition Palais, Keuco. Душевое ограждение, Hueppe. Унитаз Starck 3, Duravit. Инсталляция, Geberit.

Планировка квартиры 77 м², проект архитекторов Игоря Черновола и Марии Илюк.Чесова Полина