Обычно архитекторы стремятся как можно полнее отразить в интерьере аутентичность постройки, сделать его соответствующим исторической эпохе здания. Эта квартира — отступление от правил. Несмотря на то что она расположена в доме XIX в., в ее оформлении смиксовали традиции и современные тренды.
Квартиру в районе Бульварного кольца, в историческом здании 1880 г. постройки, приобрела семейная пара. Но из-за пандемии супруги переехали за город, а недвижимость в самом центре культурной, ресторанной и театральной жизни Москвы решили отремонтировать, оформить в современном ключе и сдать в аренду.

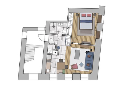
Перепланировка
Изначально в квартире имелись две жилые комнаты, крохотная кухня, ванная, туалет и прихожая. Кухню объединили с гостиной, согласовав отключение газа. (По действующим нормам кухня с газовой плитой должна быть изолирована от жилых помещений.) Дверь в спальню перенесли из прихожей в гостиную, подальше от входной зоны.

Освободившееся пространство позволило разместить в прихожей встроенный шкаф. На месте туалета организовали кладовую, где поставили стиральную машину, организовали нишу под встроенный холодильник в кухне, разместили оборудование для зеленой стены.

Всю необходимую сантехнику установили в бывшей ванной комнате. Перенос унитаза на 1,5 м от канализационного стояка допускается с соблюдением уклона трубы. Другой вариант — подключение канализационной установки с принудительной циркуляцией. Оборудование имеет компактные размеры, однако требует обслуживания, поэтому остановились на первом варианте с самотеком, как более простом.

Ремонт
Старую перегородку между кухней и комнатой демонтировали. Стяжку выполнили заново; в ней закрыли вновь проложенные коммуникации. Уклон канализационной трубы предусмотрели с запасом — 4 см на 1 м трубопровода. Солидная высота потолка позволила решить все задачи без ущерба для объемов помещений. Новые перегородки построили из пеноблоков и гипсокартона на металлическом каркасе, материале, не требующем тонкого выравнивания стен под покраску. Потолок также зашили гипсокартоном, сделав опуск под воздуховоды, электрическую проводку и встроенные светильники. Поверх стяжки нанесли самовыравнивающееся покрытие под укладку инженерной доски с теплоизолирующей подложкой.

В мокрых зонах на пол положили керамогранит, а под ним — электрические маты теплого пола. Все же квартира находится на первом этаже, и для комфорта требовалось современное решение. Окна и радиаторы отопления были ветхими — их заменили. Стеклопакеты выбрали с защитой от шума, состоящие из трех камер, заполненных инертных газом.
Дизайн
Интерьер сложился из элементов нескольких стилей; они подбирались исходя из ассоциаций, пожеланий, необходимости и данности исторической составляющей. От классики есть карнизы с характерным рельефом и молдинги. Карнизы сосуществуют с фантазийным светильником птичкой на кухне и лаконичными мебельными фасадами, которые открываются легким нажатием руки.

Сканди прослеживается в деревянных поверхностях и серых оттенках, экоэстетика — в фитостене и натуральных материалах.
Подробнее о фитостене: она с таймером полива и WiFi-модулем управления. Через заданные промежутки времени насос в автоматическом режиме подает воду в систему полива, к растениям жидкость поступает через капельницы.
Дизайнер скрупулезно отнеслась к выбору цвета стен в гостиной, где недостает естественного освещения: квартира находится на первом этаже, и свет перекрывают здания по соседству. Требовалось высветлить пространство, но не белыми красками, а теми, что придали бы радостное настроение. После долгих поисков и раздумий выбор сделали в пользу красивого, освежающего оттенка закатного неба. Он выигрышно смотрится в разное время суток и при любом освещении.

Спальня решена в спокойных тонах. Дорогой натуральный ковер и мягкое панно в обивке из бархатистой ткани добавляют помещению комфорта. Как и во всей квартире, тут несколько сценариев освещения. Общий свет обеспечивают потолочные светильники, в отделке которых присутствует латунь. (Она деликатно представлена во всех помещениях.) Для чтения предназначены бра на гибких подвесах, а подвесные кольца с шарами задают настроение.

При входе в квартиру встречает синий шкаф с латунными ручками. Яркий оттенок задает праздничное настроение, смело контрастируя с розоватым цветом стен. Из прихожей в кухню-гостиную ведет открытый проем — интерьер раскрывается в схожих тонах, поддерживая впечатление единого пространства.

В санузле акцент сделан на оригинальном, по преимуществу синем панно из шестигранной плитки. Поверх необычной «рамы» два маленьких зеркала.
Городская архитектура — словно произведение искусства в раме, с той разницей, что рама оконная. Из окон квартиры можно увидеть фрагмент исторического центра — часть Бульварного кольца и знаменитые дома на Сретенке. Несмотря на уникальный городской пейзаж за окнами, квартиру следовало изолировать от любопытных взглядов с улицы. Поэтому на окнах появились плотные и лаконичные рулонные шторы, а снаружи — жалюзи-роллеты на приводе.

Дизайнер Лилия Голубь, автор проекта:
Мне хотелось привнести много актуальных решений в старый дом, создать современную среду обитания в стенах со 140-летней историей. Если раньше кухня была тесной и жаркой, то сегодня стала пространством для кулинарного творчества и общения. На скромной площади удалось разместить вместительные шкафы, в которых много разделителей, две бутылочницы. Чтобы сэкономить место под бытовую технику, мы поставили духовку с функцией СВЧ, ограничились двумя конфорками, расположенными одна за другой. Холодильник встроили в нишу и покрасили в цвет стен — сразу и не найти. Также мы впервые применили интересный прием, который подсмотрели у немцев, и покрыли поверхность столешницы керамогранитом. Получилось, что кухонный фартук, пол и столешница отделаны одинаковым материалом. Пришлось повозиться с обустройством фитостены. Производитель из Липецка, монтажом он не занимается, а к оборудованию прикладывает видеоинструкцию.
8 фото

Вид на гостиную из прихожей

Кухня

Кухня

Спальня

Спальня

Спальня

Спальня

Санузел Редакция предупреждает, что в соответствии с Жилищным кодексом РФ требуется согласование проводимых переустройств и перепланировок.

Смотреть перепланировку
- Источник: Журнал «Идеи вашего дома»№257
 

Татьяна Гронская

Дина Александрова

Настасья Корбут Маленькие квартиры Эклектика Яркие цвета