В этой краснодарской квартире живет семья дизайнера Ксении Лысенко.
Дизайнер Ксения Лысенко с мужем и двумя маленькими детьми купили эту квартиру в одном из жилых комплексов Краснодара. «Мы любим путешествовать в тропические страны, любим горы. Муж хотел сделать быстро. Я хотела больше индивидуальных вещей, иногда даже созданных или задекорированных мной», — рассказывает о пожеланиях Ксения. Интерьер получился многообразным, запоминающимся, по-настоящему эклектичным.

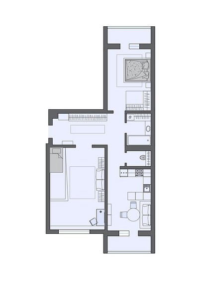
Планировка
Ксения решила не делать перепланировку. Это двушка с планировкой, которую принято называть «распашонкой» — на две стороны. Здесь кухня-гостиная, две комнаты, два балкона, санузел и ванная. Большую по площади комнату отвели детям. Дизайнер справедливо рассудила, что помещение будет трансформироваться по мере их взросления, а значит, площадь должна быть не маленькой. Меньшую спальню супруги забрали себе.

Отделка
Для отделки стен выбрали обои под покраску и краску. На полу — прочный качественный ламинат. В ванной комнате скомбинировали керамогранит с ярким рисунком камня и краску. Дизайнер намеренно не стала «закатывать» стены только в плитку, чтобы сохранить уют в этой зоне, сделать ее более «живой».

В санузле использовали краску, а верхнюю часть стен украсили обоями с рисунком рыб.

Палитра интерьера сложная, многообразная. Общая зона — кухня-гостиная, прихожая — окрашена в пудровый цвет. Причем в прихожей-коридоре дизайнер не стала окрашивать стены до потолка. Чуть больше 2/3 стены окрашены в пудровый, а остальная поверхность — в светлый цвет потолка. Это визуально сделало его гораздо выше!

В кухне-гостиной тот же прием, но зона белого меньше. Для детской выбрали серо-зеленый светлый оттенок.

Спальня же стала коралловой. Цвет насыщенный, «острый», обволакивающий и очень согревающий. Даже потолок в этой комнате окрашен в коралловый. Также стены и потолок украшают молдинги. Получилась комната-шкатулка.

Потолок был в хорошем состоянии, и его не хотели штробить для прокладки электрики, поэтому дизайнер решила сделать открытую проводку. Впрочем, такое решение только придало своего шарма интерьеру.
Мебель и системы хранения
Габаритные системы хранения — шкаф в прихожей, гардероб за реечными перегородками в спальне, два шкафа в детской, шкаф в ванной комнате — делали в цвет стен, чтобы растворить их в пространстве.

То же можно сказать и о крупной мебели, такой как детский уголок в комнате детей.

Ксения хотела и лично «приложить руку» к оформлению мебели. Например, прикроватные столики в спальне изготовили в местной мастерской, но декорировала их дизайнер собственноручно. Стеллаж и стол в детской у окна сделал супруг Ксении. А проектировать шкаф в спальне помогал папа дизайнера.

Кое-что из мебели переделали. Например, диван в гостиной достался семье от предыдущих хозяев этой квартиры. Его переобили, поменяли форму спинки и убрали подлокотник.

Кровать в спальне приехала из предыдущей квартиры Ксении, на ней также заменили обивку. Обеденные стулья тоже переобиты, выбрали модную фактурную ткань букле. В прихожей — комод от ИКЕА, для которого в мастерской заказали мозаику на фасады, и с ней же покрасили.

Освещение
Дизайнер продумала разные точки света: это и люстры, и потолочные споты, и трековые светильники. Открытую проводку на потолке сделали дополнением интерьера. Как, например, в кухне-гостиной, где от одной точки на длинных проводах идут два светильника — над кухней и обеденным столом. Проводка черная, в цвет графичного молдинга на стене. В детской проводку покрасили в цвет потолка.

Ксения Лысенко Дизайнер, автор проекта
Не могу отнести помещения к определенной стилистике. Я люблю в проектах использовать сочетания современных и винтажных вещей, дорогих и купленных на распродаже. Так же я поступала в декорировании своей квартиры.
20 фото

Кухня-гостиная

Кухня-гостиная

Кухня-гостиная

Кухня-гостиная

Кухня-гостиная

Кухня-гостиная

Прихожая-коридор

Прихожая-коридор

Детская

Детская

Детская

Детская

Детская

Спальня

Спальня

Спальня

Спальня

Ванная комната

Ванная комната

Ванная комната Редакция предупреждает, что в соответствии с Жилищным кодексом РФ требуется согласование проводимых переустройств и перепланировок.

Смотреть перепланировку

Анастасия Дубровина

Михаил Чекалов

Софья Калбазова Эклектика Яркие цвета