По методике студии Lares Design, хозяйка квартиры создала свой коллаж — эстетический код. И он лег в основу интерьера.
Заказчики и задачи
Владелица этой однокомнатной квартиры в современном жилом комплексе Санкт-Петербурга — молодая девушка, студентка. «Она «впереди планеты всей», — так описывают свою клиентку авторы проекта, ведущий дизайнер Анна Шевченко и стилист Татьяна Кочетова. Девушка занимается волонтерской работой, путешествует, много общается с друзьями, любит животных, увлекается цветоводством, а также занимается йогой.

Ей было необходимо оформить комфортное место для занятий спортом, организовать удобную кухню со столовой зоной, место отдыха. Было и конкретное пожелание — не устанавливать стиральную машину на кухне. «Не нужно было привязываться к определенному стилю, лучше дать волю фантазии и сделать интерьер с «сумасшедшинкой», — так описывают пожелания авторы. — Любимый цвет нашей клиентки — розовый в любых оттенках. Его нужно было дополнить многоцветьем. Не нужно было делать сероватый интерьер с цветными акцентами. Идея калейдоскопа приветствовалась».
Перепланировка
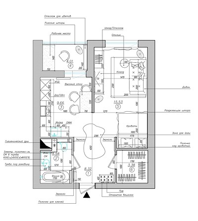
Эта квартира была стандартной однушкой — небольшая кухня, комната, ванная комната. Значительный плюс изначальной планировки — отдельная гардеробная. Ванная — достаточной площади для однокомнатной квартиры, есть также балкон из кухни.

Сделали незначительную перепланировку — убрали часть перегородки между кухней и комнатой, чтобы пространство стало свободнее. Изначально хозяйка была настроена на то, чтобы сделать полностью студийное пространство, но авторы проекта убедили ее в обратном — в отсутствии перегородок сложнее оформить многофункциональное пространство и приватные зоны. Тут же получилось за перегородкой обустроить гостиную, отделить кровать решили шторами — днем можно закрыть, чтобы придать собранности обстановке, ночью открыть. То, что входная зона освободилась от перегородок и дверных проемов, позволило назначить ее местом для занятий йогой и гимнастикой. Стены там оформили зеркалами специально для этих целей. На балконе решили обустроить мини-кабинет.

Отделка
Во всех зонах, кроме ванной — окрашенные стены, дополненные художественной росписью в столовой, гостиной и на балконе. «Покрашенные стены практичны, их можно использовать как холст для росписи, что и было сделано».

На полу уложен кварцвинил под камень — практичный материал, который не боится влаги и грязи, поэтому его можно укладывать единым покрытием, включая прихожую.
В ванной комнате скомбинировали несколько материалов: зона ванны выделена плиткой под травертин, причем материал уложен и на стенах, и на потолке. В зоне раковины — 3D-плитка бордового цвета. Там, где туалет, — прямоугольная голубая плитка. На полу использовали микроцемент: бордовый у раковины, голубой — у туалета.

Интересное решение выбрали для балкона. Здесь на пол уложили ковролин, чтобы дополнительно утеплить помещение.

Конечно, большую роль в отделке играют зеркала — ими оформлена большая площадь стен в прихожей, чтобы, как мы уже описывали, у хозяйки была возможность хорошо видеть себя во время занятий йогой.
«В качестве любимого цвета клиентка обозначила розовый. Второй по предпочтению — изумрудный. Мы художественно подобрали цвета-компаньоны, чтобы создать насыщенную цветовую гамму. Розовый играет в ней важную роль, при этом не доминирует. Также мы играем на контрасте тона. В жилых помещениях (кухня и комната) доминируют светлые цвета. А в подсобных, небольших помещениях — темные. Ванная и гардеробная — симметричные помещения на плане квартиры, в них была использована одинаковая цветовая гамма. Светлые тона расширяют пространство и позволяют сделать акцент на цветовые пятна росписи стен», — комментируют дизайнеры студии.

Системы хранения
Благодаря отдельной гардеробной квартиру полностью освободили о шкафов. «В оформлении гардеробной мы разрушаем стереотипы, — рассказывают авторы проекта. — Синие стены и шкафы цвета бордо поддерживают цветовую гамму санузла. Совершенно не обязательно делать шкафы белыми или под дерево. Сочная краска стоит столько же, сколько и светлая. А удовольствия от необычной цветовой гаммы гораздо больше».

В прихожей есть открытая вешалка для верхней одежды. Кухня — компактная, она двухцветная, в ней продолжается тема бордо и голубого. В гарнитур встроена вся необходимая техника, включая холодильник, духовой шкаф, посудомоечную машину и СВЧ. В шкафчиках также достаточно места для хранения. В гостиной — два комода для мелочей и документов.

Освещение
«Использование большого количества интересных светильников — авторский почерк дизайнера Анны Шевченко», — уточняет Татьяна. Он проявился и здесь. Центральный свет на кухне решен с помощью встроенных гипсовых светильников. Над обеденным столом — три подвеса с нарочито небрежно подвязанными шнурами. В прихожей — крупный геометрический подвес. В гостиной — люстра, почти классическая по стилю, играющая на контрасте с современной направленностью интерьера. Интересны два бра на стене над диваном — металлические, сделанные на заказ, они так хорошо вписались в пространство, что кажутся продолжением художественной росписи стен.

В спальне — потолочный светильник и настенное бра. Также бра предусмотрены над комодом в гостиной и дверью в ванную комнату в прихожей, рядом с зеркалом.

В санузле — тоже несколько сценариев света. Во-первых, общий потолочный. Во-вторых, подвесы над раковиной и два спота унитазом. И, конечно, подсветка зеркала. На балконе — потолочный подвес и два маленьких подвесных светильника над рабочим столом.

Татьяна Кочетова и Анна Шевченко Стилист и дизайнер интерьера, студия Lares Design
Это динамичный интерьер, в котором отражена идея меняющейся картинки. Переводишь взгляд с одного ракурса на другой, и получаешь новые впечатления. Интерьер меняется вслед за изменением точки зрения. Удивляет и открывает новый образ. Наша дизайн-студия работает по уникальной методике выявления личного эстетического кода клиента. Эстетический код — это индивидуальное понимание красоты и уникальные художественные предпочтения конкретного человека. Проанализировав коллаж, созданный клиенткой по определенной методике, мы увидели, что ей нравится атмосфера легкости, игривости. Она ведет жизнь, в которой есть место и творчеству, и учебе, и вечеринкам. Она ценит моду и шик. Смело отправляется навстречу приключениям и ярким впечатлениям. Мы увидели мотивы детской искренности, непосредственности и открытости миру. Эти идеи эстетического кода и легли в основу стилевого решения дизайн-проекта.
16 фото

Кухня

Кухня

Столовая

Вид на столовую из прихожей

Гостиная-спальня

Гостиная

Спальня

Прихожая

Ванная комната

Ванная комната

Ванная комната

Ванная комната

Ванная комната

Ванная комната

Ванная комната

Тот самый коллаж, который составляла клиентка Редакция предупреждает, что в соответствии с Жилищным кодексом РФ требуется согласование проводимых переустройств и перепланировок.

Смотреть перепланировку

Анастасия Дубровина

Екатерина Титенко Маленькие квартиры Фьюжн Яркие цвета