Минимализм — это новая роскошь, уверена дизайнер этой маленькой, но уютной московской квартиры Елена Соренсен
Мебель, ИКЕА. Над столом — подвесной светильник Flowerpot VP7, &Tradition. Аксессуары, H&M Home, Zara Home.
ОБЩИЕ ПАРАМЕТРЫ:
-
Тип недвижимости: однокомнатная квартира, новостройка
-
Где находится: г. Москва, ЖК Фестиваль парк
-
Метраж: 35,7 м² (квартира) + 5,1 м² (лоджия)
-
Стиль: шведский
-
Основная идея проекта: первое собственное жилье для девушки, которое полностью отвечает ее вкусам и представлениям об уютной городской квартире.
-
Цветовая гамма: нейтральная, монохромная
-
Контакты: дизайнер Елена Соренсен, т. +7 916 188 5340, www.stylebysorensen.com, stylebysorensen@gmail.com

Дизайнер Елена Соренсен в интерьере квартиры.
Заказчица — молодая девушка, увлекается модой и дизайном одежды, изучала искусство в Британской высшей школе дизайна. Любит путешествовать и принимать гостей.
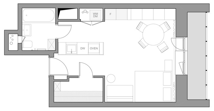
Квартира не предполагала никаких других решений по перепланировке кроме студии из-за единственного окна. Поскольку площадь небольшая, спальню решили не выделять, сохранив единое пространство. Закрытыми помещениями остались ванная комната и гардеробная, также получилось сделать небольшую постирочную.

Мебель и кухня, ИКЕА. Паркетная доска, Tarkett.
Островную кухню организовали на месте бывшей прихожей, а холодильник и кухонные шкафы замаскировали под корпусную мебель в зоне столовой. В одной комнате удалось органично совместить все необходимые функции: двуспальная кровать возле окна и рядом раскладной диван для гостей, большой стол на шесть человек, глубокие шкафы для скрытого хранения, полноценная кухня.

Мебель, ИКЕА. Аксессуары, H&M HOME, Zara Home.
В интерьере считываются отсылки к простоте быта типового отечественного жилья 80-х
Клиентка хотела получить монохромный нейтральный интерьер без узнаваемого современного русского почерка, в европейском стиле, но с отсылками к простоте быта типового отечественного жилья 80-х. Например, в ванной аскетичная белая глянцевая плитка на стенах, а на полу — матовая керамика, окрашенная в массе, вместе напоминает отделку старых советских квартир. Также надо было постараться уложиться в минимальный бюджет, поэтому всю мебель купили в ИКЕА, а материалы для полов и покраски — в ОБИ.

Кухня, ИКЕА.

Аксессуары, H&M HOME, Zara Home.
В интерьере изначально планировалось разместить графические офорты тети заказчицы, художницы, и ее собственные учебные работы, поэтому обстановка подбиралась с учетом домашней коллекции картин.

Кухня, ИКЕА. Аксессуары, H&M Home, Zara Home.
В квартире устроено необычное для нас освещение — нет встроенных и накладных потолочных светильников. Все лампы имеют теплый спектр и расположены либо на низких подвесах, либо на стене — подобная схема применяется в скандинавских странах, где яркий искусственный верхний свет считается неприемлемым для жилья.


Кухня, ИКЕА. Паркетная доска, Tarkett. Дверь, ProfilDoors.
В целом, светильникам как предмету дизайна уделено большое внимание в проекте. Акцентные точки визуального притяжения — подвес над обеденным столом Flowerpot от датской компании &Tradition и настенный светильник возле кровати Tolomeo от Artemide.
Для подбора декора использована палитра отделки и охристый цвет, который присутствовал в офортах и рисунках, — этот сложный оттенок подчеркнут текстилем и аксессуарами. Бежевое льняное белье стало отличной парой для лампы над столом, янтарные подушки и вазы повторили и усилили колорит картин и графики.

Мебель, ИКЕА. Аксессуары, H&M HOME, Zara Home. Графика художницы Оксаны Косенко.
Благодаря архитектурным решениям квартира, несмотря на маленькую площадь, кажется просторной и воздушной. Визуально она не перегружена мебелью и предметами быта. Например, из зоны гостиной и спальни не видно кухонной техники и столешницы, поскольку остров закрыт высокими бортиками с трех сторон. Двери в постирочную выполнены из тех же мебельных фасадов, что и встроенные шкафы — это создает непрерывность в отделке и объединяет пространство в целостную композицию.
Натуральные материалы делают среду комфортной, привычной и расслабляющей
Мебель массового производства смонтирована необычным образом, что делает обстановку неузнаваемой, особенной, а использование качественных материалов заставляет интерьер выглядеть дороже, чем есть на самом деле.

Диван, ИКЕА. Столик, Zara Home. Графика художницы Оксаны Косенко.

Кровать, диван, все — ИКЕА. Аксессуары, подушки, постельное белье, гардины, H&M HOME, Zara Home. Столик у дивана и столик у кровати, все — Zara Home. Над кроватью — настенный светильник Tolomeo Mini Parete, Artemide. Графика художницы Оксаны Косенко.
Мне больше всего запомнилось «технической задание» клиентки на дизайн ванной комнаты: «понимаешь, я хочу такую ванную, чтобы мой папа зашел — и ему не понравилось!» Я сходу уловила этот посыл. Как правило, нашим родителям, жизнь которых прошла в дефиците, хочется, чтобы у детей все было по-другому: и керамогранит с рисунком, и потолки с подсветкой, и фасады кухонные с какой-нибудь текстурой — в общем, чтобы комнаты были выразительными и непростыми, а цвета и формы «радовали глаз». Поэтому люди старшего поколения часто бывают разочарованы выбором своих потомков, этой простотой, вызывающей у них ассоциации с лишениями и бедностью.
Минимализм в обустройстве дома — это способ упорядочить хаос внешнего мира
Для нас же, тридцатилетних, напротив, минимализм в обустройстве дома — это способ упорядочить хаос внешнего мира, ограничить визуальный шум. Нейтральная отделка не нагружает лишней информацией, а натуральные материалы делают среду комфортной, привычной и расслабляющей. Новую роскошь — не потреблять, информацию в том числе, — нашим родителям сложно понять и оценить.

Плитка на стенах, Marazzi. Плитка на полу, Topcer. Сантехника, ИКЕА.

План квартиры, Елена Соренсен.