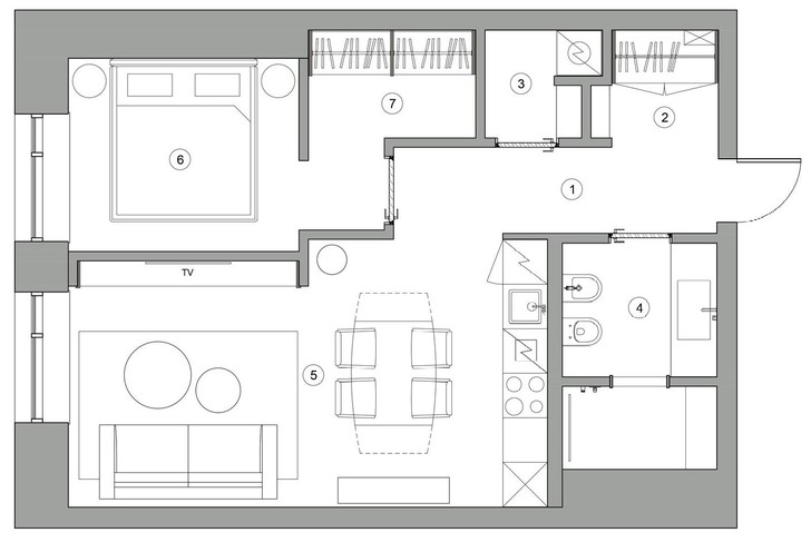
Архитектор Данило Ружичич стремился создать гармоничный и целостный интерьер, в котором все помещения плавно перетекают из одного в другое
Обеденный стол, Cattelan Italia. Стулья, Bonaldo.

Архитектор Данило Ружичич
«Хозяин этой квартира, молодой мужчина, обратился ко мне с просьбой создать теплый, уютный интерьер в современном стиле с преобладанием светлых оттенков в отделке. Пожалуй, самым главным пожеланием была полноценная изолированная спальня без стеклянных перегородок», — рассказывает автор проекта.
«Кухню, гостиную и столовую мы объединили в одно пространство. В качестве основного декораторского приема здесь мы использовали акцентную стену. На ее фоне отлично смотрится консоль, дополненная работой художницы Дарьи Дмитриевой».

Консоль, Porada. Картина Картина Дарьи Дмитриевой Rendez-vous avec du rosé.

Кухня выполнена на заказ.
«Кухня, как и вся корпусная мебель в проекте, изготовлена по моим эскизам. Фасады выполнены в шпоне дуба, навесные ящики покрыты эмалью, а фартук и столешница сделаны из гранита Nero Zimbabwe. ТВ-стенку в гостиной мы постарались сделать максимально легкой и воздушной. В отделке также использовали дубовый шпон и жидкую поталь золотого оттенка».

Диван, Desiree. Журнальные столики и ковер, Cattelan Italia.

Светильники, «Центрсвет». ТВ-стенка выполнена на заказ.

Пуф, Bontempi. Декор, BoConcept.
«Спальня получилась очень минималистичной. Здесь есть только кровать, прикроватные столики и пара гипсовых бра на стене за изголовьем, все остальное спрятано в гардеробной. Спальня отделена от остального пространства высокой дверью скрытого монтажа, которая зрительно увеличивает высоту потолка в коридоре».


Кровать, Desiree. Прикроватные столики, Bontempi. Бра, Astro Lightning.

Гардеробная выполнена на заказ.
«В прихожей расположились вместительный шкаф, подвесная консоль с ящиками и ростовым зеркалом. На полу мрамор Daino Venato уложен единым полотном, что придает целостность помещению».

Сантехника, Villeroy & Boch.

«Мрамор из коридора плавно переходит в ванную комнату. Здесь мы сделали большую душевую, вход в которую обрамлен мраморным порталом, и функциональную систему хранения с полками для декора. Раковину и столешницу выполнили из красивого кварцита Blue Roma».
Авторы проекта: архитектор Данило Ружичич, r.danilo@inbox.ru


Квартира 52 кв.м в Москве. Проект Данило Ружичича.