Посмотрите, как выглядит современный хюгге — стиль Северных стран, который приобрел большую популярность в России несколько лет назад.
Заказчики и задачи
Владельцы этих апартаментов не первый раз работают с дизайн-бюро Александра Лузгина, поэтому, когда было необходимо обустроить интерьер, решение об исполнителе приняли быстро. Перед автором проекта стояла задача решить вопрос с хранением вещей, так как площадь квартиры совсем небольшая. В остальном же запрос был на уютный теплый интерьер, располагающий к отдыху.

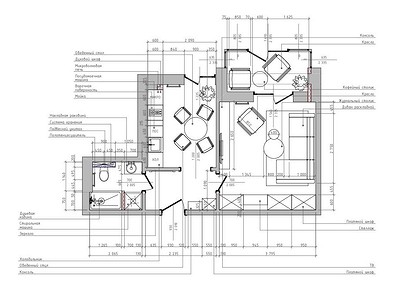
Планировка
Апартаменты однокомнатные. Здесь изолированная кухня, комната с балконом, ванная и прихожая. В перепланировке не было необходимости. Все, что сделал дизайнер — убрал дверь между кухней и прихожей. Это позволило впустить естественный свет во входную зону, сделать ее более располагающей. В остальном планировка осталась прежней.

Отделка
Для отделки стен выбрали краску. На балконе разнообразили отделку стен декоративными реечными панелями. На полу по всей квартире уложен кварцвинил. Его выбрали даже для балкона и душевой. Решение приняли для того, чтобы отказаться от порожков в маленькой квартире, не дробить ее на зоны. И так как кварцвинил — устойчивый материал к влажности и грязи, его можно укладывать в таких «сложных» зонах, как кухня, ванная, прихожая и балкон.

На стенах в ванной комнате — квадратная белая плитка, уложенная со смещением и подчеркнутая черной затиркой. Она же — на фартуке. Повторение материалов «связывает» помещения друг с другом. В санузле автор проекта убедил заказчиков использовать акриловый поддон, который изготовили на заказ по нужным размерам. Такое решение удачно заменило поддон, выполненный строительным способом, из плитки. Акрил будет теплым даже в холодное время года.

Также интересен ход в отделке потолка. На деле он невысокий, до ремонта был 2,58 м. Но даже в чистовом виде он кажется выше, чем есть на самом деле. Секрет — в высоких потолочных карнизах в цвет светлого потолка. Они визуально вытягивают его.
Мебель и системы хранения
Самая большая система хранения расположена в комнате — гостиной, которая в ночное время будет выполнять роль спальни. Здесь шкаф во всю длину торцевой стены с открытыми и закрытыми секциями. Напротив дивана — длинная подвесная консоль, куда можно сложить необходимые мелочи.
В прихожей — небольшой шкаф глубиной 45 см и шириной 55 см. Там поместится верхняя одежда. Сразу у входа — консоль с двумя выдвижными ящиками.

В ванной комнате уместили шкаф, где установлены стиральная и сушильная машины. Есть тумба под раковину для повседневной косметики и гигиенических принадлежностей, а также шкафчик над инсталляцией унитаза.
Кухня небольшая, линейная. По бокам — колонны со встроенной техникой. Хранения достаточно за счет верхних высоких шкафов под потолок. Предусмотрели всю необходимую технику, включая посудомоечную машину.

Стиль мебели — скандинавский. Корпусная выполнена в минималистичном ключе с белыми фасадами и фасадами под дерево. Мягкая мебель в обивке разных оттенков коричневого и бежевого. В группе «диван-кресло» особую роль играет последнее, это мягкое кресло с кожаной обивкой, которое совсем не выглядит утилитарно за счет своей формы и дизайна. На балконе создано располагающее место отдыха, куда можно вынести кресла.

Освещение
Дизайнер проработал разные сценарии света. На потолке — накладные точечные споты, в гостиной — узнаваемая люстра-шляпа французского бренда. На кухне — потолочный светильник по центру, здесь отказались от спотов, так же поступили и на балконе, где разместили светильник в виде половинки яйца.
Конечно, есть и дополнительные источники света в виде встроенных подсветок мебели, зеркала в ванной. Все источники освещения подключены к диммерам, позволяющим регулировать яркость света в зависимости от настроения и времени суток.

Александр Лузгин Дизайнер, автор проекта
Стиль хюгге не терпит фальши — большинство материалов, использованных при реализации дизайн-проекта, натуральные. При подборе текстильного оформления и подбора тканей дивана мы руководствовались именно этой системой координат: натуральный лен в отделке дивана и портьер, а также натуральная кожа в отделке кресла. Фарфор и керамика ручной работы стали правильным дополнением в создании атмосферы уюта.
14 фото

Гостиная

Гостиная

Гостиная

Гостиная

Гостиная

Балкон

Балкон

Балкон

Кухня

Кухня

Кухня

Кухня

Санузел

Прихожая Редакция предупреждает, что в соответствии с Жилищным кодексом РФ требуется согласование проводимых переустройств и перепланировок.

Смотреть перепланировку

Екатерина Валеева

Алена Гарти

Анастасия Дубровина Маленькие квартиры Скандинавский стиль Светлые цвета