Дизайнер Инна Азорская спроектировала комфортное жилье для сына своих давних заказчиков. Он приехал в столицу после учебы и начал строить карьеру. Как выглядит жилье молодого перспективного человека? Посмотрите.
Хозяева квартиры поставили перед Инной Азорской амбициозную задачу — обустроить максимальное количество мест для хранения, обязательно сделать спальную зону с полноценной кроватью, уложиться в сжатые сроки и строго оговоренный бюджет. И все это на небольшой площади.

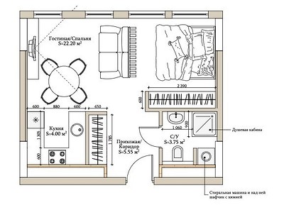
Перепланировка
Официальный статус жилья — апартаменты, что означает определенную свободу действий в перепланировке. Можно не так строго придерживаться правил жилищного законодательства. Тем не менее здесь не стали совершать глобальную перепланировку. Мокрые зоны остались на своих местах. Комнату объединили с кухней-гостиной, создав общее студийное пространство. Спальня отделяется от зоны гостиной реечной перегородкой, а прихожая соединена с общей зоной. Это решение позволило удобно разместить мебель и продумать пространство, комфортное для одного молодого человека.

Отделка
Для отделки стен выбрали светлую краску. В зоне спальни на стене за изголовьем кровати поклеили обои-фреску для создания эффектного акцента.

На полу в прихожей и мокрой зоне кухни — керамогранит под мрамор, сложенный в панно. В жилой зоне уложили ламинат. В ванной комнате скомбинирована базовая отделка — керамогранит под мрамор светлого оттенка на стенах и под дерево — на полу. Сочетание, которое выглядит изысканно и вне времени.

Мебель и системы хранения
Для хранения вещей в квартире есть два вместительных шкафа. Один расположен в прихожей — он предназначен для верхней одежды. Второй — в спальне. Для размещения подушек и одеял есть ящики под кроватью (выбрали конструкцию с подъемным механизмом).

Компактную кухню (всего 4 квадратных метра) сделали П-образной. Одна из частей — это высокие шкафы-колонны со встроенной техникой. Вторая — верхние и нижние базы с мойкой и системами хранения. Третья — нижние шкафы, здесь отказались от верхних модулей в пользу эффектной вытяжки каминного типа. Кстати, каркасы гарнитура выбрали в ИКЕА, для экономии, а вот фасады сделали на заказ, что придало индивидуальности.
В ванной комнате продумано хранение в хозяйственном шкафу — туда встроена стиральная машина и есть полки над ней.
Освещение
В качестве основного освещения выбрали трековые светильники. Декоративные (они же дополнительные) сценарии света реализованы в виде подвеса над обеденным столом на кухне, бра на стене рядом со спальней, мини-бра над кроватью и настольной лампы на тумбочке.


Дизайнер Инна Азорская, автор проекта:
Стилистика — современная. Мы опирались на бюджет, поэтому не могли позволить себе запроектировать украшательства на стенах, потолке и полу. Отсюда у нас простой потолок, ровные стены без ниш, только декоративные обои за кроватью и зеркало возле кухни, чтобы максимально расширить пространство. Основные акценты мы поставили на мебели. Она должна была быть яркой и запоминающейся.
18 фото

Кухня

Кухня-столовая

Кухня-столовая

Кухня-столовая

Зона гостиной

Кухня

Кухня

Кухня

Гостиная-спальня

Гостиная-спальня

Гостиная-спальня

Гостиная-спальня

Спальня

Спальня

Спальня

Гостиная-спальня-прихожая

Вид на гостиную из прихожей

Ванная комната Редакция предупреждает, что в соответствии с Жилищным кодексом РФ требуется согласование проводимых переустройств и перепланировок.

Смотреть перепланировку

Анастасия Дубровина

Ольга Шангина

Екатерина Наумова Маленькие квартиры Современный стиль Светлые цвета Коричневый цвет