Яркие цвета, много систем хранения и удобство — здесь создали интерьер, в котором хочется жить.
Заказчики и задачи
Этой квартирой в доме типовой серии П44Т владеет семья с детьми. Второй, младший, появился уже после окончания ремонта. Семья хотела спроектировать удобный интерьер, где было бы достаточно места для игр и занятий детей, хранения вещей и книг, со спальней родителей и местом для работы с ноутбуком. С этой задачей они обратились к дизайнеру Анастасии Загорельской.

Планировка
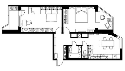
Дом панельный, и это значит, что почти все стены в квартире несущие. Поэтому для глобальной перепланировки не было перспектив. Но и изначальный план был неплохой. Две изолированные комнаты, небольшая кухня, раздельные ванная и санузел, два балкона при комнатах.

В одной из комнат (спальне) балкон уже был присоединен (убрали оконный блок). Дизайнер не стала это менять. (Прим. редакции — сегодня присоединение балкона нельзя согласовать без разделяющей перегородки и ряда других условий).
Отделка
Для отделки стен выбрали краску. Дизайнер работала в том числе с насыщенными цветами. В прихожей — терракотовый. При этом в насыщенный синий окрашены высокие потолочные карнизы, напольные плинтусы и двери. В спальне хозяев — глубокий синий и песочный. В детской и на кухне — нейтральные, более светлые голубые цвета. Также здесь обои-панно в зоне кровати-домика.
На полу в комнатах и кухне уложена инженерная доска. В прихожей — плитка на манер ковра. В ванной комнате однотонная плитка на стенах скомбинирована с декором, где изображены тропические растения и птицы.

Санузел не уступает по яркости. К белой плитке, которой покрыта нижняя часть стен, дизайнер подобрала изумрудные обои с рисунком летящих гусей. На полу ванной и санузла керамогранит под дерево.

Мебель и системы хранения
Мебель здесь не менее яркая. Она играет большую роль в цветовом оформлении и восприятии пространства. Так, например, на кухне вполне нейтральные стены, однако кухонный гарнитур, где нижние шкафы и колонны с техникой оформлены в светлый зеленый цвет, является акцентной точкой. Функционально хотелось, чтобы кухня была похожа на гостиную, но диван здесь не помещался. Однако такое впечатление удалось создать — стол у окна в эркере, не занимающий главную роль, стеллаж у входа, где можно хранить книги и декор, верхние шкафы с расстекловкой, напоминающие буфет (кстати, на дверях аналогичная расстекловка).
В прихожей предусмотрели встроенный шкаф — он тоже яркий. Жалюзийные фасады окрашены в зеленый цвет, который контрастирует с терракотовым и синим. Кроме шкафа, предусмотрели место для обуви — две обувницы из ИКЕА установили под единую деревянную столешницу.

В спальне хозяев есть шкаф для вещей и два высоких стеллажа по бокам от кровати. Здесь хранится внушительная библиотека. На уровне, где могли бы быть прикроватные тумбочки, спроектировали выдвижные ящики в стеллажах. Так что они заменяют этот предмет мебели функционально.

Напротив кровати — вместительный деревянный комод, там же еще один стеллаж.

Широкий подоконник на балконе можно использовать вместо рабочего стола.

В детской спальне — кровать-домик с ящиком для хранения и раскладной диван. Эта зона проектировалась для одного ребенка, предполагались зоны сна и отдыха. Они концептуально отделены отделкой (обои-панно) и мебелью (П-образный шкаф вокруг дивана). В будущем диван можно будет заменить кроватью, когда младший подрастет.

Одним шкафом вокруг дивана не ограничились. Почти всю стену напротив кроватей занимает шкаф, где помещаются и вещи, и игрушки. Центр же комнаты пустой — для игр. У окна можно поставить рабочий стол.

В ванной комнате ограничились тумбой под раковину. В санузле — шкафчиком над инсталляцией унитаза.
Освещение
Сценарии света спроектированы как общие и местные. Общие — трековые и встроенные светильники, люстры. Местные — настенные бра.

Анастасия Загорельская Дизайнер, автор проекта
В интерьере сочетается несочетаемое: он объединяет в себе совершенно разные идеи из, казалось бы, несовместимых стилей, не теряя при этом целостности и гармонии. Такой интерьер можно охарактеризовать как стиль фьюжн.
20 фото

Кухня

Кухня

Кухня

Кухня

Кухня

Кухня

Кухня

Кухня

Прихожая

Прихожая

Прихожая

Прихожая

Спальня

Спальня

Детская

Детская

Детская

Детская

Ванная комната

Ванная комната
Фрагменты квартиры до ремонта
6 фото






Редакция предупреждает, что в соответствии с Жилищным кодексом РФ требуется согласование проводимых переустройств и перепланировок.

Смотреть перепланировку

Анастасия Дубровина

Марина Климова Эклектика Яркие цвета