Дизайнер Тамара Липенко спроектировала уютную квартиру для семьи, которая коллекционирует живопись и увлекается чтением и музыкой
Краска, Benjamin Moore. Стол, Unika Møblar. Стулья, Deephouse. Плинтус Orac Décor. Картины из семейной коллекции заказчиков. Картины — из семейной коллекции заказчиков.
«Заказчики — семейная пара врачей с двумя детьми — пригласили меня, чтобы раскрыть потенциал своей новой квартиры. Они хотели создать светлый легкий и интересный интерьер, в котором есть все необходимое для комфортной жизни», — рассказывает автор проекта.


Диван и стеллаж для книг выполнены на заказ по эскизам дизайнера. Торшер, Mantra Desigual. Трековые светильники, Centrsvet. Ваза на подоконнике, Kuchenland.
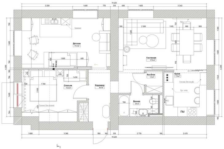
«Квартиру заказчики искали в конкретном доме — кирпичной шестиэтажке в районе метро „Войковская“, построенной в 1958 году по индивидуальному проекту. Каркас здания бетонный, что позволило сделать перепланировку. Первым делом мы объединили кухню и гостиную с помощью невесомой стеклянной перегородки. Пространство сразу стало центром притяжения в квартире. Вдобавок к этому за счет переноса входа в кухню нам удалось сократить длину коридора и организовать дополнительную гардеробную».

Кухня, «Мария». Столешница и подоконник выполнены из искусственного камня, Staron. Плитка на фартуке, Vives. Керамогранит на полу, Kerama Marazzi. Раковина и смеситель, Blanco.
«Гостиная выполняет сразу несколько функции. Здесь располагается большой обеденный стол, за которым может собраться вся семья, ТВ-зона с удобным диваном для просмотра фильмов, стеллаж, на котором собраны любимые книги заказчиков, и фортепиано для музыкальных вечеров».

Гипсовые панели, Artpole. ТВ-консоль, «Мария». Стеклянная перегородка по эскизам дизайнера в Loft Pride.
«Кухню я сделала яркой и сочной, со множеством систем хранения. Графичности добавила за счет интересного рисунка плитки на фартуке. Газовую трубу мы спрятали за аккуратной полочкой для специй, выполненной в цвет верхних фасадов».

Ламинат, Kaindl. Консоль выполнена по эскизам дизайнеров. Картины — из семейной коллекции заказчиков. Двери, Porta Prima. Ручки, Morelli.
«В спальне мы также предусмотрели достаточно много мест для хранения. В кровати есть ящик для постельных принадлежностей, в шкаф встроена гладильная доска и различные механизмы, позволяющие разместить очень большое количество вещей. Рядом с кроватью поставили колыбельку. Когда она будет не нужна, здесь можно будет поставить рабочий стол (для него предусмотрены розетки). Сама комната выполнена в спокойной палитре. Акцентную стену за изголовьем кровати оформили обоями с приятной на ощупь фактурой».

Кровать, шкафы и панель из массива дуба сделаны по эскизам дизайнера.

Обои, Kirkby Design. Текстиль, Kuchenland.
«Детской было отдано самое большое пространство, в котором мы организовали зону для сна, отдыха, активных игр и особенное место для того, чтобы созерцать вид из окна, сидя на подоконнике».

Шкаф и диван изготовлены на заказ.

Кроватка сделана на заказ. Ковер, Molton. Картины — семейной коллекции заказчиков.


Корпусная мебель выполнена на заказ. Рабочие стулья, Kiddy.
«Прихожую мы расширили и обыграли выступы ригеля гипсовыми панелями. Здесь тоже есть все необходимое: вместительный шкаф, консоль, на которую можно бросить ключи, придя домой, крючки для верхней одежды и пуф с местом для хранения».

Керамогранит, Ergon. Зеркало, La Redoute.
Автор проекта: дизайнер Тамара Липенко, studiofuse@gmail.com

Керамогранит, Fossil. Шкаф выполнен на заказ по эскизам дизайнера. Смесители, Artis Rubinetterie. Ванна, Kaldewei. Тумба, BelBagno.


Подвесной унитаз, ArtCeram. Гигиенический душ, Reitano Rubenetteria. Полотенцесушитель, Secado.

Квартира в Москве, 80 кв.м. Проект Тамары Липенко.