При обсуждении интерьера семья разделилась на два лагеря: родители хотели сдержанности и природных оттенков, а дети — розовых воздушных замков с единорогами. Посмотрите, как дизайнерам удалось примирить поколения
Гостиная. Диван, Vosart. Кофейные столики, Zuiver, BoСoncept. Живопись Светланы Шебаршиной. Ковер, Kover.ru.

Дизайнеры Дина Дымникова и Ольга Сандай, студия Ruumz.
ОБЩИЕ ПАРАМЕТРЫ
Тип недвижимости: квартира-новостройка
Где находится: Москва, Олимпийская деревня
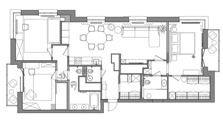
Метраж: 100 м2
Стиль: soft-functionalism
Основная идея проекта: создать уютное пространство для гармоничной жизни молодой семьи с двумя детьми
Цветовая гамма: пастельная с акцентами на глубокий зеленый цвет
Авторы проекта: Дина Дымникова, т. +7 (926) 655-99-44; Ольга Сандай, т. +7 (985) 256-90-29, студия Ruumz
В описании этого проекта цифра «2» будет повторяться неоднократно. Проект делали два дизайнера, которые иногда объединяются, потому что им нравится работать вместе. Заказчики купили две квартиры, чтобы объединить их в одну. У них две дочери, и в процессе обсуждения будущего интерьера выяснилось, что дети и взрослые видят его по-разному. Взрослым хотелось сдержанности и природных оттенков, детям — розовых воздушных замков с единорогами. Чтобы подружить такие разные пожелания, дизайнеры Дина Дымникова и Ольга Сандай решили разделить пространство на два блока — основной и детский. В каждом из них свои законы.

Обеденная группа. Люстра, Verpan.
«Заказчики с доверием и уважением отнеслись ко всем нашим идеям, поэтому работа шла очень легко»

Кухня. Люстра, Verpan. Кухонная мебель и дверь сделаны по эскизам авторов проекта.
«Взрослая» часть квартиры — это объединенная кухня-столовая гостиная, родительская спальня с собственной гардеробной и ванной комнатой. Оформляя эти помещения, авторы проекта отталкивались от пожеланий заказчиков внести в отделку дерево и глубокие зеленые оттенки. Двери, шкафы, часть кухонных фасадов, а также гардеробные комнаты отделаны ореховым шпоном. Вся корпусная мебель и двери выполнены на заказ по эскизам авторов проекта.
Дизайн основной части квартиры лаконичный, акцент сделан на сочетании дерева, латуни и молочного цвета стен. На кухне всю основную технику и вместительные шкафы для хранения спрятали в единый шпонированный фасад, разбавив его нишей цвета латуни. За этой «стеной» из шпона скрывается детский блок квартиры, где расположились две спальни и санузел для девочек, которые отличаются по колористике и стилю от «взрослой» части.

Кухня, фрагмент.
От шпонированных верхних фасадов дизайнеры решили отказаться, чтобы немного облегчить кухню и визуально соединить ее с гостиной. Кварцит с серебряными прожилками, которым отделана стена, как бы собирает все оттенки и фактуры воедино.

Кухня, фрагмент. Люстра, Verpan.
Практически вся мебель в этой квартире придумана авторами проекта и выполнена на заказ. Изголовье кровати в мастер-спальне они называют своей особенной любовью, добавляя, что в цвет и форму изголовья была влюблена вся команда проекта, включая заказчиков.

Спальня, фрагмент. Кровать сделана на заказ по дизайну Ruumz&Sanday. Прикроватная тумба, Si Lounge. Подвеc из латуни, Centersvet. На стене за изголовьем работа Светланы Шебаршиной.

Спальня, фрагмент. Кровать и туалетный столик со стеллажом сделаны на заказ по дизайну Ruumz&Sanday. Прикроватная тумба, Si Lounge. Стул, Kartell. Cтолик, Design Boom. Ковер, La Redoute.
В референсах, которые присылали заказчики, преобладал шпон и изумрудный бархат. В спальне изумрудный цвет представлен во всех оттенках, а вот шпон добавлен очень деликатно — деревом отделаны дверные откосы и гардеробная. «Нам было важно оставить пространство светлым», — объясняют дизайнеры. Бронзовое зеркало добавляет в интерьер спальни теплый оттенок и зонирует туалетный столик.

Гардеробная при спальне. Шкафы сделаны по дизайну авторов проекта.
Детский блок живет по своим законам — здесь господствуют розовый цвет и воздушные арки. «Мы очень строго следили за равными пропорциями зефирно-принцессного в детских, — признаются авторы проекта, — так как со стороны девочек было сравнение и контроль».

Первая детская. Мебель сделана на заказ по эскизам Sanday&Ruumz. Стул, Calligaris.

Первая детская. Мебель сделана на заказ по эскизам Sanday&Ruumz.
Сравнить две детских, а уж тем более назвать одну более «принцессной» будет трудно. В каждой своя зона притяжения. В одной — рабочий стол возле огромного углового окна в мир и розовый диванчик, на который так приятно забраться с книжкой; в другой — двухэтажная кровать с лесенкой и пещерой внизу, где, кажется, и живет тот самый единорог, с которого все началось.

Вторая детская. Мебель сделана по эскизам Sanday&Ruumz.
Сразу видно, что в этом доме живут две принцессы, и у каждой свое представление о прекрасном. И это не просто слова — девочки, как рассказывают дизайнеры, участвовали в согласовании своих комнат наравне со взрослыми.

Вторая детская. Мебель сделана по эскизам Sanday&Ruumz. Стол, La Redoute. Стул, Kartell.

Детский санузел.

Санузел при спальне, фрагмент.

Санузел при спальне, фрагмент.

Прихожая. Консоль и двери выполнены на заказ по эскизам авторов проекта. Паркет, Finex. Декоративные вазы, Alta Gamma.

Квартира 100 кв. м в Москве. Проект дизайнеров Дины Дымниковой и Ольги Сандай, студия Ruumz.