Четверг, 13 ноября, 2025

Городской релакс для двоих: квартира 108 м² в Москве

Это интересно

Дизайнер Марина Поклонцева оформила московскую квартиру с яркой, расслабленной атмосферой и высоким уровнем комфорта в духе американских вилл в Малибу

ОБЩИЕ ПАРАМЕТРЫ

Тип недвижимости: квартира в ЖК «Мосфильмовский»

Метраж: 108 м²

Стиль: американский

Основная идея проекта: городской релакс для двоих

Цветовая гамма: золотисто-песочные, кремовые, бирюзовые и голубые оттенки

Дизайнер: Марина Поклонцева, www.poklontseva.ru

Кухня встроена в угловую нишу в гостиной. Кухня Luxury Glam от Aster Cucine. Мозаика, Bisazza. Техника, Miele. Раскладной стол, Scappini. Стулья Calipso от Seven Sedie. Напольная плитка, Caesar Ceramiche.

Городской релакс для двоих: квартира 108 м² в Москве

Марина ПоклонцеваДизайн интерьера

Дизайнер интерьера, основатель собственной дизайн-студии

Сайт эксперта

«Мои заказчики — пара с любимым питомцем, собакой породы корги, постоянно живут за городом. Эта квартира используется на случай, если нужно остаться в городе, — рассказывает дизайнер Марина Поклонцева. — Так как владельцы привыкли наслаждаться вольготной жизнью в просторном доме, моей главной задачей было сохранить ощущение простора. При этом оснастить квартиру всем необходимым и даже больше. Кухня, например, хотя и используется не часто, прекрасно оборудована. Есть широкий холодильник, духовой шкаф, микроволновка с пароваркой, варочная панель, посудомоечная машина и система очистки воды. Для домашних вечеринок предусмотрен раскладной стол. Люстра над ним оснащена диммерами, что создает праздничную атмосферу». 

Городской релакс для двоих: квартира 108 м² в Москве

Барная стойка Luxury Glam от Aster Cucine. Барные стулья Visconti от Ottiu. Подвесные светильники Raindrop от Design Haus Liberty. Шторы, студия «Меланж».

Городской релакс для двоих: квартира 108 м² в Москве

Прихожая. Обои Jubilee Wallpaper от Kelly Wearstler. Плитка Slimtech Gouache от Lea Ceramiche. Зеркало, пуфики на колесах с откидной крышкой и встроенный шкаф изготовлены по эскизам дизайнера. Бра и люстра, Arteriors. Консоль, Duquesa & Malvada.

«Зону кухни отделяет барная стойка. Изначально я не видела в этом особого смысла, так как есть обеденный стол. Но заказчики привыкли завтракать и смотреть телевизор, а барная стойка очень для этого подходит, поэтому я спроектировала ее только для двоих. Рядом разместила розетки, оказалось, что работать в квартире за ноутбуком, если это необходимо, тоже удобнее именно за барной стойкой».

Городской релакс для двоих: квартира 108 м² в Москве

Из кухни есть выход на присоединенную лоджию. В гостиной — раскладной диван Savon от Tosconova. Кресло Swing от Tosconova. Приставной столик, Dv Home Collection. Настольная лампа, Robert Abbey. Люстра над обеденным столом, Arteriors.

«В гостиной минимум предметов мебели — раскладной диван, два кресла и стеклянный столик на колесиках — чтобы не загромождать пространство».

Городской релакс для двоих: квартира 108 м² в Москве

Вид из гостиной на прихожую. Люстра, Cyan Design. Журнальный столик Aubrey от Eichholtz.

Городской релакс для двоих: квартира 108 м² в Москве

Телевизионный портал изготовлен по эскизам дизайнера. Пол — дубовая инженерная доска, Mardegan Legno. Все двери и плинтусы выполнены на заказ по эскизам Марины Поклонцевой.

Основные приемы декорирования, использованные в оформлении интерьера:

  1. Отсутствие крупных предметов мебели создает ощущение простора, как хотели заказчики. Все шкафы встроенные и визуально воспринимаются, как продолжение стены.

  2. Зеркальные вставки визуально расширяют пространство и создают ощущение легкости.

  3. Золотистые обои с крупным графическим рисунком делают интерьер одновременно парадным и стильным.

Городской релакс для двоих: квартира 108 м² в Москве

Пара кресел Swing от Tosconova. Настольная лампа, Robert Abbey.

«Спальня объединена с большой гардеробной комнатой. Рядом с тумбочкой расположена удобная панель управления не только шторами на электроприводе, индивидуальным освещением, но и общим светом в квартире. Простым нажатием на клавишу „выключить все“ возле кровати можно отключить все освещение в квартире, что избавляет заказчиков от проверки случайно не выключенных светильников. Такая же клавиша есть и в прихожей». 

Городской релакс для двоих: квартира 108 м² в Москве

Спальня. Обои Channels от Kelly Wearstler. Кровать Lauren от Meridiani. Бра, дизайн Kelly Wearstler для Visual Comfort. Зеркало выполнено на заказ по эскизам дизайнера.

«Обои дизайна Келли Уэстлер  (Kelly Wearstler) в изголовье кровати тематически поддерживает зеркало на стене. Оно красиво интегрировано в интерьер, но расположено рядом с кроватью. Я понимала, что это может немного давить на заказчиков, не все любят зеркала в спальне. Золотистые полосы дробят зеркальное полотно и берут на себя основное внимание. Идея хорошая, но оказалось, что ее сложно реализовать. Полосы, нанесенные специальной краской на поверхность зеркала, со временем стираются, а полосы, нанесенные со стороны снятой амальгамы, из-за толщины стекла меняют свой цвет и теряют блеск. Я сделала более трех образцов зеркала с нанесением разных материалов (жидкий металл, самоклеящаяся пленка и другие), пока не был найден оптимальный вариант по внешнему виду и удобству эксплуатации. В итоге, в зеркале были прорезаны углубления со стороны амальгамы, в которые и был залит золотистый наполнитель. С лицевой стороны полосу невозможно стереть, а истонченное стекло более не преломляло блеск материала». 

Городской релакс для двоих: квартира 108 м² в Москве

Спальня. Банкетка, Carpanese Home. Тумбочки Paris от Tosconova. Люстра Prescott Pendant от Arteriors. Настольные лампы, Kelly Wearstler. Текстильное оформление, студия «Меланж».

«Мне очень нравится, как получилась приватная зона. Это такая мечта любой девушки, когда из спальни ты попадаешь в большую гардеробную с окном, и для всех женских принадлежностей хватает места. Есть отдельный шкаф для обуви, полки для сумок и специальное место для высоких сапог, а также для длинных коктейльных платьев и даже для чемоданов».

Городской релакс для двоих: квартира 108 м² в Москве

Гардеробная. Шкафы и экраны радиаторов сделаны по эскизам дизайнера. Шторы, студия «Меланж».

Городской релакс для двоих: квартира 108 м² в Москве

Люстра Layla от Crystorama. Пол — дубовая инженерная доска, Mardegan Legno.

«На присоединенной к спальне лоджии уютно разместился туалетный столик с автоматической подсветкой зеркала и шикарными видами из панорамного окна 20-го этажа. Это очень важное и приятное место для хозяйки, так как самый красивый макияж получается при естественном освещении».

Городской релакс для двоих: квартира 108 м² в Москве

На лоджии при спальне — будуар хозяйки. Туалетный столик Lutetia от Oasis. Бра Socialite от Corbett Lighting. Кресло Visconti от Ottiu. Керамическая плитка Palladiana от Bardelli.

«Ванная комната создавалась как полноценный SPA комплекс в городской квартире. Хамам сделан с соблюдением всех технологических особенностей. Сводчатый потолок, мозаика на стенах и лежак для массажа делают его сакральным местом очищения и отдыха, а встроенная в систему душа хромотерапия создает множество световых сценариев, соответствующих определенному настроению». 

Городской релакс для двоих: квартира 108 м² в Москве

Ванная комната с хамамом. Тумба, Oasis. Ванна Kensington от Devon & Devon. Настенный светильник Luna от Serip. Смесители Eleganza от Gessi. На полу — мозаика по эскизам дизайнера из плитки от FMG и Bisazza. Стены, FMG.

Городской релакс для двоих: квартира 108 м² в Москве

Хамам. Душевая система Colour от Gessi. Мозаика, Bisazza.

«Специально для любимого питомца — собаки породы корги, в нише гостевого санузла была спроектирована специальная мойка, которая неожиданно оказалась удобной и для других нужд. Можно, например, набирать воду в высокие вазы или мыть арбузы».

Городской релакс для двоих: квартира 108 м² в Москве

Гостевой санузел. В нише обустроена мойка для собаки. Тумба и зеркало, Oasis. Бра, Corbett Lighting. Смесители Eleganza от Gessi. Пол, Original Style. Стены, FMG.

Городской релакс для двоих: квартира 108 м² в Москве

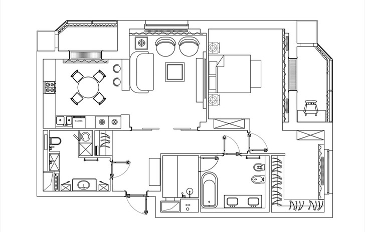
План квартиры 108 м², проект Марины Поклонцевой.Чесова Полина

Новое на сайте

Похожие статьи

Если вы хотите получать уведомления на свой E-mail о появлении новых статей, то рекомендуем вам чуть ниже ввести свой электронный почтовый адрес.