Дизайнер Татьяна Архипова оформила яркую квартиру, в которой для каждого члена семьи разработана своя цветовая гамма. И никакого белого! — так звучала особая просьба хозяйки, работающей в сфере медицины.
Кухня-гостиная. Обеденный стол, Unika Møblär. Керамика от мастерской Ceramum. Кувшин, GK concept. Стулья и люстра над столом, La Redoute Interieurs. На зеленой стене — триптих Мануэля Рамата, галерея Carre D’artistes Moscow.

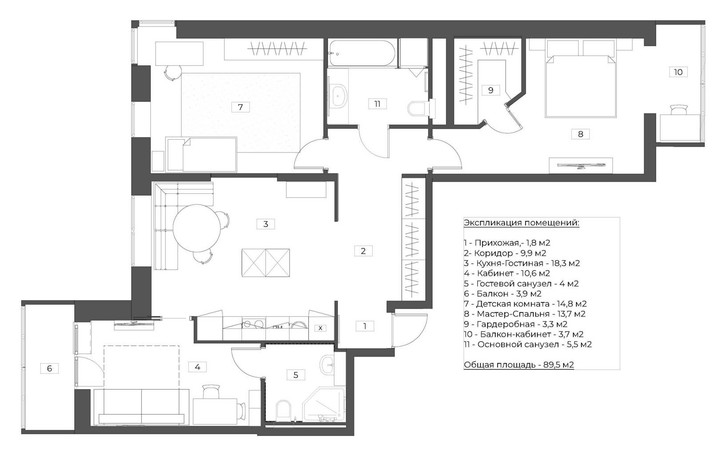
ПАРАМЕТРЫ ОБЪЕКТА
Тип недвижимости: квартира в новом доме
Метраж: 90 м²
Где находится: Москва, район метро Каховская
Заказчики: молодая семья с ребенком
Основная идея проекта: найти место для цвета
Цветовая гамма: охра, марсала, глубокие оттенки синего
Автор проекта: Татьяна Архипова, дизайн-студия Архиповой, web: arkhipova.design, +7 903 204-91-41

Диван и кухня сделаны на заказ. Ковер, студия Марка Патлиса. Постер Олега Бородина.
«По предыдущим проектам для медиков, а именно в этой сфере работает хозяйка квартиры, я заранее знала о нелюбви врачей к белому цвету, который у них ассоциируется с работой, — рассказывает дизайнер Татьяна Архипова. — Так и случилось. Уже на первой встрече заказчица попросила „Побольше цвета, что-то оттенков вина и… никакого белого!“ Ее супруг при этом показывал идеальные, на его взгляд, интерьеры с белыми стенами и обилием дерева. В итоге для каждого члена семьи — мамы, папы и маленького ребенка, была разработана не только своя комната, но своя цветовая гамма».

Разноцветный барный шкаф — работа дизайнеров Honestly Designed. На нем кашпо от MiroPottery. Стаканы и поднос, керамическая мастерская Ceramum. Ваза для фруктов, Pulpo.
«В общей зоне гостиной-кухни объединили пожелания обоих супругов: и цвет, и много дерева. Даже потолки не оставили белыми. Здесь есть акцентная стена — зеленая ниша выкрашена краской для мела, а напротив — еще более акцентная ниша с кухней, которая своим цветом и активной фактурой дерева задает настроение всему интерьеру».

Кухня выполнена на заказ. Плитка из коллекции Jasper by Yonoh от Peronda Harmony. Светильники — работа керамиста Ирины Нефедовой, дизайн Татьяны Архиповой.
«Самый интересный предмет — керамические абажуры, которые получились именно такими, как я задумывала. Легкий лист в клеточку. Мой эскиз отлично реализовала керамист Ирина Нефедова».

Разноцветный барный шкаф — работа дизайнеров Honestly Designed.
«Так как хозяйка, помимо основной работы, дает уроки на дому, ей требовался изолированный кабинет. Среди других пожеланий — рабочее место для мужа, гардеробная, просторная детская и, по возможности, гостевая. В итоге центр квартиры отдали под кухню-гостиную. Она получилась компактная, но удалось разместить и стол с удобным диваном, и закрытую кухню, и небольшой остров. Рядом с кухней-гостиной расположен кабинет хозяйки, который также выполняет роль гостевой комнатой и зоны отдыха — вечерами здесь смотрят кино. В ночной зоне разместили детскую, спальню со своим гардеробом и основной санузел».

Кабинет. Обои сделаны на заказ в студии Awallon, www.awallon.ru. Ковер, студия Марка Патлиса. Столик, GK Concept. Картина «Путь» — работа Татьяны Архиповой.

Стул, галерея винтажной мебели Mobeledom. Стол и стеллаж, ИКЕА. Настольная лампа, Zara Home. Вазы, мастерская Ceramum.
«Кабинет — лаконичное продолжение кухни-гостиной. Цвета светлее, а на стене — выполненные на заказ обои с напечатанной на них картой Сан-Франциско, это пожелание владельца. В зоне кабинета мужа, расположенном на утепленном балконе при спальне мы, наоборот, почти убрали цвет, оставив темные серые цвета и фактуры дерева».

Спальня. Кровать сделана на заказ. Белье, Atelier Tati. Кресло, галерея Mobeledom. Ваза, Ceramum.
«Хозяйка любит яркие цвета, а ее муж — белые интерьеры с обилием дерева. Но нам удалось сделать интерьер, который нравится им обоим».

Спальня. Обои, Fresq. Светильники, интернет-магазин La Redoute Interieurs.
«Детскую сделали светлой, но цвет сохранили. Чтобы создать интерьер на вырост, мы создали универсальный декор шкафа и еще на этапе проекта выбрали идеальный для этого интерьера подвесной светильник. Он настолько запал в душу клиентки, что на момент заказа она не могла смотреть ни на что другое. Однако выбранная люстра уже была раскуплена по всей Европе. Тогда клиентка написала напрямую дизайнеру, и тот помог нам приобрести чуть ли не последний экземпляр в этом цвете. Родственники клиентки посмеивались, так как, на их взгляд, картонная люстра не стоила такой возни. И только когда весь интерьер собрали, все оценили наши усилия».

Детская. Шкаф сделан на заказ по эскизам дизайнера. Люстра из коллекции The Cardboard Light Collection от Andbros. Пуф, AM.PM.

Фрагмент детской.

Основной санузел. Плитка из коллекции Mash-Up от Imola Ceramica. Зеркало, ZARA Home. Бра, ИКЕА. Вазы, GK Concept.
«В результате в условиях ограниченного бюджета нам удалось создать интерьер, который очень нравится и мужу, и жене, при их столь разных пожеланиях в начале проекта. Интерьер получился очень индивидуальным, он подойдет не всем, но именно мои заказчики счастливы!»
Татьяна Архипова, дизайн-студия Архиповой, web: arkhipova.design, +7 903 204-91-41

Основной санузел. Плитка из коллекции Mash-Up от Imola Ceramica.
