Выбранный стиль современная классика, спокойная палитра и отсутствие яркого декора позволили создать интерьер, который останется актуальным и через годы.
Заказчики и задачи
Владельцы этой квартиры в городе Пушкине под Санкт-Петербургом — семья с сыном-подростком. Это жилье не было предназначено для их постоянного проживания, семья приезжает в Пушкин по случаю, но не исключает и дальнейшего переезда. Владельцы любят и часто принимают гостей.

Исходя из этих «вводных», к дизайнеру Елене Максимовой у семьи было несколько пожеланий: создать функциональный интерьер с большой столовой зоной, не использовать краткосрочные тренды в дизайне, оформить пространство в спокойной гамме и обойтись без перепланировки. И еще один важный момент, не типичный для сегодняшнего времени — отказаться от кроватей в спальнях. Это было осознанное решение хозяев — они хотели иметь возможность принять гостей в любой комнате.

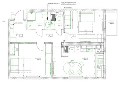
Планировка
Квартира расположена на последнем этаже малоэтажного здания, и от застройщика планировка была следующей: раздельные санузлы, две изолированные комнаты и достаточно большая кухня. Также был высокий потолок со скосами у окон — с этим предстояло работать.

Отделка
Квартира сдавалась с частичной предчистовой отделкой — в частности, застройщик сделал потолок из гипсокартона с выводами под светильники. И его решили не переделывать, чтобы сэкономить время и сохранить бюджет.
Остальную отделку дизайнер подбирала, опираясь на пожелания хозяев о будущем интерьере и выбранную стилистику современной классики. В прихожей, коридоре и на кухне — архитектурная краска, внешне чем-то напоминающая декоративную штукатурку, с эффектом замши. Она покрыта воском, получилось эффектное, но практичное моющееся покрытие. Оттенки краски слегка отличаются. В прихожей и коридоре — более прохладный тон, на кухне — более теплый.

Напольное покрытие в этих зонах тоже общее — глянцевый керамогранит под мрамор. Дизайнер намеренно не делила эти пространства разной отделкой, создавая гармонию и перспективу, как бы приглашая из прихожей пройти в кухню-столовую — место общего сбора семьи и их гостей.

В спальнях стены покрасили, выделив акцентные участки — стены за диванами — эффектными фресками. В спальне родителей это тропический сюжет в нейтральной гамме, в спальне сына — лес в синих оттенках. Фрески, кроме того, что они являются эффектным декоративными акцентами, выполняют и функцию визуального расширения пространства. На полу в этих комнатах — паркетная доска, уложенная французской елкой.

В ванной комнате и санузле использовали одинаковую плитку — под мрамор на полу и с рисунком оникса на стенах. Это добавило маленьким помещениям с высокими потолками парадности, а глянец на стенах визуально расширяет пространство.
Системы хранения
Так как отдельная гардеробная не предусмотрена планировкой, автор проекта продумала шкафы в разных зонах.

В прихожей — два шкафа разной глубины, один из них с открытой вешалкой и интегрированным пуфом. Шкафы под потолок делать не стали — высота стен большая, по мнению дизайнера, это бы «давило». В каждой спальне — платяные шкафы, есть также дополнительные места для хранения в виде комода в комнате сына и консоли с туалетным столиком в спальне родителей.

На кухне — вместительный угловой гарнитур. Хозяева любят готовить, часто делают это вместе, поэтому дизайнер предусмотрела всю нужную технику и места для хранения. Мойка расположена у окна, приятное дополнение к рутинному делу — это открывающиеся виды. Также в столовой зоне — небольшой комод-витрина.
В ванной комнате вписали узкий стеллаж между душевой и колонной из стиральной и сушильной машин. Также есть тумба под раковину. В санузле, кроме тумбы, — подвесной шкафчик. Там удачно сформировалась ниша, куда и вписали этот узел.

Освещение
Общий свет решен, в основном, люстрами — даже в санузлах. Высота потолка позволяла разместить акцентные светильники. Дополнительные сценарии продуманы зонально — подсветка рабочей зоны под подвесными шкафами, треки, размещенные над окном с мойкой, бра по бокам от дивана в спальне и светодиодная подсветка зеркала и полок у туалетного столика, торшер в детской у дивана. В ванной комнате предусмотрено бра у зеркала для дополнительной подсветки.


Дизайнер Елена Максимова, автор проекта:
Основу колористической концепции составляют спокойные малонасыщенные цвета теплого спектра. Оттенки распределены так, что с любого ракурса через открытые двери открывается гармоничное сочетание с соседствующими помещениями. Также все предметы в кухне-столовой легко комбинируются с деталями коридора, спальни и детской комнаты. В процессе жизни предметы иногда «кочуют» по квартире. И это не должно разрушать задуманную концепцию. Поэтому все продумано таким образом.
14 фото

Кухня-столовая

Кухня

Кухня

Прихожая

Спальня родителей

Спальня родителей

Спальня родителей

Спальня родителей

Спальня родителей

Спальня родителей

Спальня родителей

Спальня родителей

Детская

Детская Редакция предупреждает, что в соответствии с Жилищным кодексом РФ требуется согласование проводимых переустройств и перепланировок.

Смотреть перепланировку

Анастасия Дубровина

Татьяна Никитина Светлые цвета Современная классика