Когда в однокомнатной квартире живет семья, или один человек хочет организовать и спальню, и гостиную, встает вопрос — реально ли это сделать? Примеры дизайнерских проектов доказывают, что да.
1. Квартира для мамы и сына
Дизайн: Екатерина Бубнова. Фото: Наталья Мавренкова

Дизайн: Екатерина Бубнова. Фото: Наталья Мавренкова

Дизайн: Екатерина Бубнова. Фото: Наталья Мавренкова
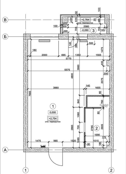
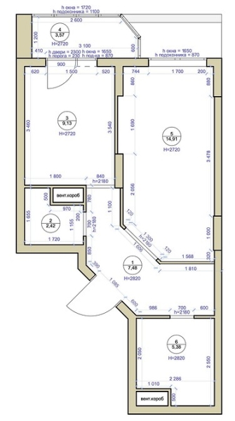
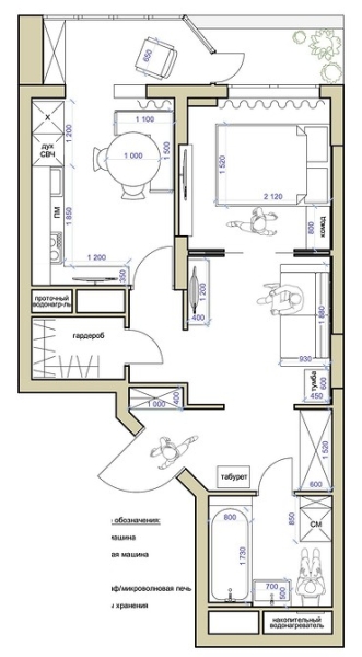
Проект Екатерины Бубновой — яркий пример перепланировки, в результате которой из однокомнатной квартиры получилось фактически двухкомнатная. К единственной комнате присоединили площадь кладовки и разделили пространство на два: в той, что ближе к окну, организовали спальню сына. Там, где окна нет — комната хозяйки, но недостаток естественного освещения компенсируется высокими стеклянными дверями, так что свет все же попадает в спальню. Предусмотрена также принудительная вентиляция. Чтобы уместить столовую зону, перегородку между кухней и комнатой немного подвинули.

До

После
2. Квартира для молодой семьи
В результате перепланировки этой квартиры у дизайнера Анны Мальцевой получились две комнаты — отдельная спальня и гостиная, а кухня вписана в нишу, открытую в гостиную. Застройщик при этом предусматривал только кухню и комнату.

Дизайн: Анна Мальцева. Фото: Евгений Гнесин. Стиль: Евгения Мельникова

Дизайн: Анна Мальцева. Фото: Евгений Гнесин. Стиль: Евгения Мельникова

Дизайн: Анна Мальцева. Фото: Евгений Гнесин. Стиль: Евгения Мельникова

Дизайн: Анна Мальцева. Фото: Евгений Гнесин. Стиль: Евгения Мельникова
Как же удалось сделать из однушки двушку? На площади кухни, которую предусматривал застройщик, выделили кухню в нише, а оставшуюся отвели под спальню. За счет части жилой комнаты сделали гардеробную. Таким образом на площади в 50 квадратов получилась двухкомнатная квартира, еще и с отдельным гардеробом-кладовой.

До

После
3. Квартира для семьи дизайнера, в которой есть маленький ребенок
Эта квартира принадлежит дизайнеру Виктории Вишневской и ее супругу, в семье недавно родился сын. Однокомнатное жилье Виктория превратила практически в двушку с просторной кухней.

Дизайн: Виктория Вишневская. Фото: Женя Муравьева. Стиль: Екатерина Шаповалова

Дизайн: Виктория Вишневская. Фото: Женя Муравьева. Стиль: Екатерина Шаповалова

Дизайн: Виктория Вишневская. Фото: Женя Муравьева. Стиль: Екатерина Шаповалова

Дизайн: Виктория Вишневская. Фото: Женя Муравьева. Стиль: Екатерина Шаповалова
На площади комнаты выделили отдельную маленькую спальню, она получилась без окна, но отделяется от коридора раздвижной стеклянной перегородкой, поэтому естественный свет туда проникает. Оставшаяся площадь жилой комнаты стала гостиной. Чтобы отделить ее от кухни, построили неширокий простенок. Кухня же осталась в своих границах, достаточно просторной и удобной.

До

После
4. Квартира для женщины
В результате перепланировки этой квартиры по проекту Елены Мухачевой из однушки получилась двушка с проходной гостиной. По изначальному плану здесь была одна комната, два санузла и отдельная кухня. Комната — вытянутая и с одним окном. А также была большая прихожая.



За счет прихожей дизайнер выровняла форму комнаты и увеличила ее, поэтому удалось разделить ее на две зоны: проходную гостиную и спальню у окна. Получились две комнаты вместо одной. А во втором санузле сделали гардеробную.

До

После
5. Квартира для молодого человека
В проекте дизайнера Марины Есиной из однушки получилась евродвушка — так называют квартиры с отдельной спальней и объединенной кухней-гостиной. Застройщик предполагал же отдельную кухню и комнату.

Дизайн: Марина Есина. Фото: Евгений Гнесин. Стиль: Ирина Бебешина

Дизайн: Марина Есина. Фото: Евгений Гнесин. Стиль: Ирина Бебешина

Дизайн: Марина Есина. Фото: Евгений Гнесин. Стиль: Ирина Бебешина

Дизайн: Марина Есина. Фото: Евгений Гнесин. Стиль: Ирина Бебешина
Дизайнер предлагала около 15 вариантов планировки, но в той, что получилась в итоге, решила выделить маленькую (около 5 квадратных метров) спальню в нише со стеклянной перегородкой, а кухню объединить с гостиной. Так получилось общее пространство для молодого человека, который любит принимать гостей.

До

После

Анастасия Дубровина Зонирование Маленькие квартиры