Функциональный интерьер в приятных цветах — вот как можно коротко охарактеризовать эту квартиру. Она принадлежит семье триатлонистов с двумя сыновьями.
Заказчики и задачи
Владельцы этой квартиры в панельном доме серии П-44 — семейная пара с двумя сыновьями 10 и 17 лет. Муж и жена активно занимаются триатлоном, поэтому было необходимо предусмотреть в квартире место для хранения велосипедов. Хозяйка также увлекается рукоделием — вышивкой крестиком. Сыновья учатся.
У дизайнера Ирины Акимовой, к которой обратилась семья, было несколько задач: создать комфортное и функциональное пространство для жизни, продумать системы хранения, обустроить отдельные комнаты для детей-подростков.

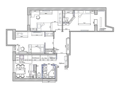
Перепланировка
Возможности перепланировки в панельных домах всегда ограничены из-за большого количества несущих стен. Так и в этом случае. Дизайнер исходила из существующей планировки с тремя комнатами, двумя балконами, кухней и раздельными санузлами, но смогла выжать максимум из имеющейся площади.
Так, ванную немного увеличили за счет коридора, а в коридоре смогли выделить хозяйственный блок, правильно рассчитав пространство для встройки шкафов. Три комнаты отвели под спальни для каждого члена семьи, отказавшись от гостиной. В комнате родителей выделили гардеробную, в спальне одного из сыновей отделили небольшой хозяйственный блок, где разместились гладильная доска и дополнительная система хранения. Балкон в комнате родителей утеплили и присоединили, убрав окно (это решение необходимо согласовывать — прим. редакции).

Отделка
В отделке стен использовали краску приятных пастельных оттенков. Каждая зона выделена своим цветом. Так, общее пространство — коридор, кухня — в нейтральных серых тонах. В спальне использовали нежный оливковый. В комнатах сыновей к базовому серому добавили бежевый, разбеленный желтый (в одной) и синие оттенки (во второй). На полу уложили инженерную доску, а в мокрых зонах (на кухне, в прихожей) — плитку.

Ванная комната полностью оформлена плиткой под белый мрамор с серыми прожилками. В санузле стены окрашены за исключением зоны за инсталляцией унитаза, для нее выбрали керамогранит с деревянным рисунком. На полу — он же.
Системы хранения
Продуманные системы хранения были одними из главных пожеланий хозяев квартиры, что и учла дизайнер.
В комнате родителей выделена гардеробная, а хранение спортивного инвентаря организовано на прилегающем балконе. В комнатах сыновей — шкафы для вещей, тумбочки под телевизоры для разных мелочей, полки и стеллажи для книг, бумаг в зонах с рабочими столами.

В прихожей предусмотрели шкаф для верхней одежды и комод, а еще вешалку.

В прилегающем холле — шкаф-стеллаж для хранения книг.

Для кухни выбрали нестандартную расстановку мебели, но учли эргономику. Там, где была предусмотрена мойка, вписали небольшую часть гарнитура. А плиту с духовкой и остальными шкафами разместили по перпендикулярной стене. Холодильник встроили.

В коридоре, который прилегает к кухне, сделали хозяйственный шкаф и обувницу. Они реализованы в том же дизайне, что и гарнитур, что вместе смотрится гармонично и будто бы продолжением кухни.

В ванной комнате, кроме тумбы под раковину, есть полки-ниши в душевой и стеклянные полочки над инсталляцией унитаза. В санузле сделали закрытый шкафчик над подвесным унитазом.

Освещение
Потолочное освещение реализовано в виде центральных светильников и точечных накладных спотов, которыми выделены отдельные зоны — например, рабочие столы детей, кухонный гарнитур, ТВ-зона в спальне родителей. В последней отказались от центральной люстры, сделали прикроватные бра для камерной атмосферы. На кухне также потолочный светильник размещен не по центру, а над обеденным столом.
В холле — накладной трековый светильник на потолке, а в прихожей — плоская круглая лампа. В ванной комнате и санузле сделали встроенное точечное освещение.

Дизайнер Ирина Акимова, автор проекта:
Квартира расположена в красивом районе Москвы — Крылатские холмы — с парком с трассами для велосипедистов и бегунов, рядом находится триатлон-центр. Эта локация выбрана не зря, наши заказчики — семья триатлонистов. Основной задачей было сделать из квартиры в панельном доме современное функциональное жилье для повседневной жизни. Квартира проектировалась с двумя комнатами для подростков и множеством мест для хранения. На балконе организовано пространство для тренировок — здесь разместился станок для велосипеда, заказчики постоянно участвуют в триатлонных соревнованиях и марафонах, поддерживают форму круглый год. Каждое помещение выполнено в своей цветовой палитре. Такой прием придает интерьеру динамику, обеспечивает смену впечатлений на небольшой площади квартиры. Детские — более контрастные, каждая со своим характером. Хозяйская спальня — спокойная, на полутонах. Хозяйка дома — большая рукодельница, она сама шьет куклы и вышивает картины, поэтому в каждой комнате есть ее замечательные вышивки и игрушки.
17 фото

Кухня

Кухня

Кухня

Спальня

Спальня

Спальня

Комната сына

Комната сына

Комната второго сына

Комната второго сына

Комната второго сына

Комната второго сына

Холл

Холл-прихожая

Холл-прихожая

Питомец семьи

Санузел Редакция предупреждает, что в соответствии с Жилищным кодексом РФ требуется согласование проводимых переустройств и перепланировок.

Смотреть перепланировку

Анастасия Дубровина

Мария Иринархова Современный стиль Пастельные цвета