Благодаря перепланировке удалось выкроить зону гостиной, которая объединяется с кухней.
Заказчики и задачи
Владелица квартиры — молодая девушка. По профессии — маркетолог. Кроме того, она любительница шопинга — у хозяйки много вещей. Поэтому перед дизайнером Алесей Котовой стояла задача спроектировать достаточно мест хранения. Стилистически хотелось создать уютное пространство, где можно было бы отдохнуть от ритма мегаполиса. Выбрали минимализм, добавив в него элементы классики.

Перепланировка
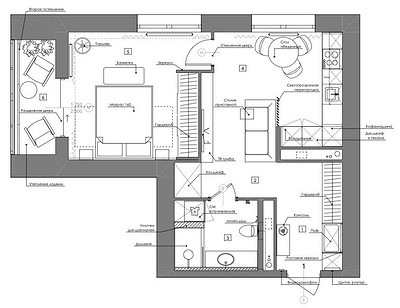
По изначальному плану в квартире были небольшая кухня, отдельная комната с лоджией, ванная и Г-образная прихожая. Алеся решила сделать глобальную перепланировку, чтобы оформить дополнительную зону — гостиную. Для этого перегородку между кухней и комнатой убрали, построили новую, которая отделяет пространство спальни. Зона кухни осталась в своих границах, но добавилась гостиная — между кухней и спальней, проходная. «Сложность сдвига стены была в том, что окна находятся слишком близко друг к другу, пришлось обойти окно и вынести дверь чуть вперед. Но этот нюанс вышел нам на руку, получилась интересная геометрия в гостиной, ниша, в которую встала ТВ-тумба», — делится автор проекта.

Кухня отделена от гостиной деревянными подвижными рейками. «Они пропускают свет, но при желании можно закрыть эту зону от посторонних глаз», — объясняет дизайнер.

Отделка
Для отделки стен выбрали моющуюся краску. «Цвета нюансные, скрупулезно подобраны под каждое помещение. В спальне стену за кроватью сделали акцентной: перья фрески добавляют в интерьер мягкости и женственности, цвет стен колеровали под оттенок перьев», — рассказывает Алеся.

На полу в жилых зонах уложили инженерную доску — тактильно приятный и достаточно прочный материал. В мокрых и «сложных» зонах — на кухне, в прихожей, на лоджии — сделали пол из плитки, так практичнее.

В ванной комнате плитка скомбинирована с краской на стенах. Там, куда не будет попадать вода, стены окрасили. «Это дало нам возможность сэкономить, а интерьер стал уютнее и интереснее», — говорит автор проекта. На полу — крупноформатная плитка с рисунком мрамора.

«Изюминку в интерьер привносят ажурные гипсовые молдинги, которые очень изысканно подчеркивают женственность хозяйки квартиры», — добавляет Алеся.

Системы хранения
Проектирование хранения было важной задачей, так как у хозяйки большой гардероб. Верхняя одежда, обувь и сумочки уместились в шкафу в прихожей. В коридоре ближе к гостиной разместили шкаф для хозяйственных принадлежностей.

В спальне спроектировали шкаф-гардеробную — в нише обустроили хранение с помощью корпусов и наполнения системы «Пакс» от ИКЕА, а раздвижные фасады сделали на заказ.
Кухонный гарнитур — угловой. Нижние базы и зона со шкафами-колоннами выполнены в черном цвете. По словам автора проекта, это углубляет помещение, помогает сделать пространство визуально больше.
Освещение
Алеся разделила сценарии освещения на основной, зональный и атмосферный. Основной свет — точечные потолочные светильники. Зональный и атмосферный сформирован в виде бра и подвесов, торшеров — над обеденным столом, у кровати и дивана. В ванной спроектирована подсветка под тумбой и в душе, чтобы ночью яркий потолочный свет не слепил.

Дизайнер Алеся Котова, автор проекта:
У нас получился минимализм. Но минимализм очень женственный. Заказчице нравится легкая классика в интерьерах, но в реалиях очень маленького пространства хотелось минимизировать «шум», сделать правильную архитектуру, продумать системы хранения так, чтобы оставить в интерьере легкость. Поэтому все габаритные шкафы слились со стенами, нежный фон графично подчеркнут деталями, декор очень минималистичный, фактурный и растворающийся в пространстве. А классику в интерьер мы все же добавили: ажурные молдинги аккуратно вписаны в пространство и смягчают строгость минимализма.
19 фото

Кухня

Кухня

Кухня

Кухня

Кухня

Гостиная

Гостиная-прихожая

Прихожая

Прихожая

Прихожая

Прихожая

Спальня

Спальня, вид на лоджию

Спальня

Спальня

Спальня

Спальня

Ванная комната

Ванная комната
Редакция предупреждает, что в соответствии с Жилищным кодексом РФ требуется согласование проводимых переустройств и перепланировок.

Смотреть перепланировку

Анастасия Дубровина

Евгений Гнесин

Ольга Васильева Маленькие квартиры Минимализм Светлые цвета