Высокие потолки позволили обустроить антресоль, где разместилась спальня. Таким образом вместо изначальных 30 квадратных метров владелец получил 40!
Заказчик и задачи
Владелец этих апартаментов в Москве — молодой мужчина. Он любит путешествия и экзотические страны, занимается спортом, по работе нередко уезжает из города. К дизайнеру Ксении Моспан у заказчика было несколько пожеланий: обустройство общей зоны, где можно было бы и поработать, и собрать гостей, отдельная спальня и вместительное закрытое хранение.

Перепланировка
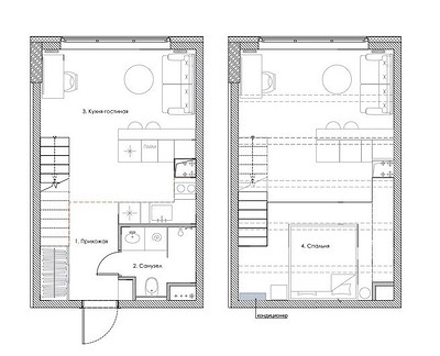
Апартаменты площадью почти 30 кв. м были с достаточно высокими потолками, почти 4 метра. Это позволило оформить второй уровень и увеличить площадь на 10 квадратов. На первом разместились санузел, компактная кухня-гостиная. На втором — спальня. Высота потолков осталась вполне удобной — 2,2 метра под антресолью и 1,67 метра на втором уровне в самой высокой точке.

Отделка
Для отделки стен, в основном, использовали краску светлого бежевого оттенка. На полу в жилых зонах — паркет. Кухня, как и входная зона, выделены плиткой — так практичнее. Для фартука выбрали плитку сочного цвета.

В изголовье кровати на антресоли решили сделать акцент в виде фрески с рисунком тропиков — отсылка к экзотическому настроению интерьера.

В санузле скомбинировали плитку и декоративную штукатурку. «Чтобы маленькое и низкое помещение не превратилось в каменную коробку, мы разбавили пространство зеленым цветом и шероховатой фактурой», — рассказывает автор проекта.

Мебель и системы хранения
В зоне прихожей встроили вместительный шкаф. Пространство под лестницей также используется для хранения, доступ к этой зоне организован через зеркальный раздвижной фасад шкафа. На антресоли система хранения спрятана в нишу и закрыта портьерой.

Компактную кухню оснастили всем необходимым. Нижние базы выстроены П-образно, есть встроенный холодильник, рядом с ним посудомоечная машина, небольшая варочная поверхность на две конфорки и компактный духовой шкаф в островной части. Столешница установлена по типу барной — за ней можно есть или поработать с ноутбуком. В зоне гостиной — небольшой раскладной диван и приставной столик.
В санузле размещена тумба под раковину со встроенной стиральной машиной и местом для хранения сопутствующих вещей.
«Апартаменты рассчитаны на два-три человека: владельца и его гостей. Учитывались основные сценарии жизни современного человека: диванный киновечер с подругой, работа или завтрак за полуостровом на кухне, сон на двуспальной кровати в отдельном месте. Мебель — из тактильно приятных материалов: велюр на диване, шерсть на кровати, кожа на стульях. Столик под ТВ — из дерева и мрамора. Акцентные столики из латуни и прикроватные — также из металла. Использовано все, что можно встретить в природе», — комментирует Ксения.

Освещение
Общее освещение в санузле, прихожей и на втором уровне решено встроенными линейными светильниками. В кухне-гостиной — местные сценарии света: два подвеса над барной зоной кухни, бра с поворотными спотами над диваном и бра у лестницы. В спальне также есть дополнительный сценарий света — бра по обеим сторонам от кровати.

Ксения Моспан Руководитель студии K-buro, автор проекта
Это небольшие апартаменты в современном стиле с этническими деталями. Проектировали, как для себя: размышляя, чего нам не хватает в безумном столичном ритме, что вдохновляет на достижения и гонит вперед. И отправной точкой стала жажда новых путешествий и удовольствие от уже прожитых!
11 фото

Гостиная

Гостиная

Гостиная

Гостиная

Спальня

Спальня

Спальня

Спальня

Прихожая

Ванная комната

Ванная комната Редакция предупреждает, что в соответствии с Жилищным кодексом РФ требуется согласование проводимых переустройств и перепланировок.

Смотреть перепланировку

Анастасия Дубровина

Екатерина Гейц

Алина Головачева Маленькие квартиры Современный стиль Яркие цвета