Этот проект создавался для молодой семьи с ребенком. Авторы использовали темные цвета в общих зонах и спальне хозяев, исключение составили только детская и игровая. Получилось очень эффектно!
Заказчики и задачи
Владельцы дома — молодая семья с ребенком-дошкольником — обратилась к дизайнерам Ирине Бородиной и Екатерине Малой с задачей обустройства их частного дома. Застройщик сдавал его в предчистовой отделке, поэтому планировку менять не хотелось, чтобы не тратить время и бюджет на работы.

Семья хотела использовать темные тона, а вот предпочтения в стилистике у супругов разнились. Муж тяготел к брутальности, а жена — к классике. Но оба были открыты к экспериментами. В итоге дизайнерам удалось «подружить» оба видения в одном пространстве.
Планировка
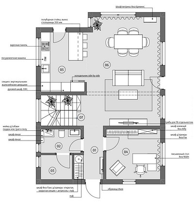
На первом этаже застройщик предложил объединенную кухню-гостиную, санузел, техническое помещение и комнату, которая предполагалась как кабинет. На втором — три спальни (одна из них — со своей гардеробной и санузлом) и еще один санузел.

Так как планировку менять не хотели, оставалось только правильно распределить помещения и продумать расстановку мебели под нужды семьи.
Первый этаж стал общей зоной. Кабинет решили отвести под гардеробную. На втором этаже в большой спальне с ванной и гардеробом сделали комнату супругов. В другой организовали детскую, а третью отвели под игровую для ребенка.

Отделка
«Мы хотели получить естественную «лесную» цветовую гамму и текстуру природных материалов», — говорят дизайнеры. Для отделки стен и потолков во всех комнатах выбрали краску. Кухня-гостиная и спальня хозяев оформлена в темных зеленых оттенках.

Детская и игровая на втором этаже — в серых и голубых. Одну стену в детской окрасили меловой краской и использовали обои-панно для создания акцента — тематические, под стать увлечениям малыша. «Сын заказчиков увлечен самолетами, мы использовали акцентные обои с картой мира в его спальне и с самолетами — в игровой», — уточняют авторы проекта.

На полу — керамогранит на первом этаже и инженерная доска на втором. «Пол уложили английской елкой. Заказчице очень хотелось видеть в интерьере классическую укладку елкой, но современная планировка и довольно авангардный экстерьер дома конфликтовали бы с таким традиционным напольным покрытием. Мы нашли выход, развернув классическую «елку» на 45 градусов, уложив ее по диагонали так, что прямые углы перекликаются с Г-образной планировкой пространства кухни-гостиной и повторяют линии кухонного гарнитура», — рассказывают дизайнеры. В спальне и детской стены и потолки окрашены в один тон. Это работает на визуальное увеличение пространства и создает более камерную, обволакивающую атмосферу.

Мебель и системы хранения
Хранение подобрали в ИКЕА. Так удалось сэкономить бюджет. В прихожей — шкаф для верхней одежды. В детской — платяной шкаф, а в игровой — стеллаж для игрушек. В спальне хозяев есть гардеробная, и на первом этаже кабинет пока задействовали как гардеробную зону.
Кухня, по словам авторов проекта, обязательно должна была быть черной. Дизайнеры выбрали черные фасады для шкафов-колонн и черный холодильник. А нижние базы и остров оформлены в темном шпоне. Кухня, кстати, тоже из ИКЕА, как и тумба под телевизор в гостиной.
В детской сделали кровать-домик. И этот выбор не случаен. Его объясняют дизайнеры: «Заказчица поставила задачу подобрать ребенку интересную кровать, чтобы ему захотелось спать в собственной комнате. Варианты с кроватями-машинками и им подобные мы отмели сразу — найти среди них достойный с точки зрения дизайна вариант невозможно. В итоге решили остановиться на кровати в виде домика — она достаточно проста, но эстетична, «крыша» кровати повторяет линию ската крыши (потолка), и из нее можно делать всевозможные шалаши при помощи покрывал и пледов — самому и с друзьями, просто и увлекательно!»

Освещение
Сценарии света достаточно минималистичны. На первом этаже в прихожей и кухне-гостиной дизайнеры использовали трековые светильники, направление спотов можно регулировать, что удобно. Декоративное освещение добавили с помощью подвесов над обеденным столом и островом. Также есть подсветка рабочей зоны кухни — это линейный подвес. Авторы проекта делают акцент на том, что для кухни без верхних шкафов, где нет возможности оформить подсветку под ними, это отличный вариант. Также организована подсветка штор за карнизами.
В спальне и детской кроме точечного потолочного света есть настольные лампы и бра.


Дизайнеры Ирина Бородина и Екатерина Малая, авторы проекта:
Мы не привязывались к какому-то конкретному стилю — мужу хотелось больше брутальности, а жене — классики в европейских традициях. Однако заказчики были открыты к экспериментам и полностью нам доверились. Дорога к поселку идет, фактически, через лес, и мы предложили сделать дом продолжением природы — использовать природные тона, темные насыщенные цвета, натуральные материалы и живые растения, чтобы создать расслабленную, немного богемную атмосферу, смешав природные текстуры с современным искусством, а классические элементы с этническими мотивами. Получилась смесь современного стиля с классическими элементами, этническими и экомотивами.
21 фото

Кухня-гостиная

Кухня-гостиная

Кухня-гостиная

Кухня-гостиная

Кухня-гостиная

Кухня-гостиная

Кухня-гостиная

Кухня-гостиная

Лестница

Спальня

Спальня

Спальня

Спальня

Спальня

Мастер-ванная

Мастер-ванная

Детская

Детская

Игровая

Санузел на втором этаже

Санузел на втором этаже Редакция предупреждает, что в соответствии с Жилищным кодексом РФ требуется согласование проводимых переустройств и перепланировок.

Смотреть перепланировку

Анастасия Дубровина

Антон Лихтарович Экостиль Темные цвета