Высокие потолки позволили оформить антресольный этаж и обустроить там спальню. Это увеличило полезную площадь апартаментов.
Заказчик и задачи
Эту студию в апарт-комплексе Loft FM хозяева купили для последующей сдачи в аренду. Архитектору Анне Новопольцевой предстояло оформить пространство функционально, продумать приватную зону для арендаторов, место для их возможных гостей, создать интерьер, который бы выделялся среди других. Все это — в рамках ограниченного бюджета.

Планировка
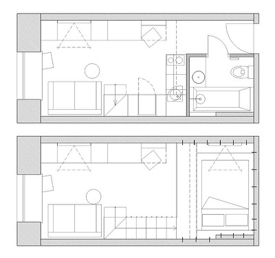
Студия 18 кв. м была пустой, без перегородок. Высокий потолок — 4,2 метра — позволил обустроить антресольный этаж, на котором разместили зону сна. Под ней — прихожая и ванная комната. Кухня и маленькая зона гостиной с системой хранения расположены на первом уровне. Там же удалось уместить обеденную зону и рабочий стол.

Отделка
Для стен второго уровня, прихожей и оконных откосов выбрали краску глубокого зеленого оттенка. Выбор цвета был предопределен заказчиком. Остальные поверхности оставили в черновой штукатурке, покрыли ее матовым лаком для практичности. Это позволило частично сэкономить на отделке, но при этом соблюсти эстетику лофта, для которого характерны необработанные фактуры и брутальность. Потолки остались в бетоне, это тоже типично для лофта.

На полу — кварцвиниловая плитка — практичный материал, который можно укладывать в прихожей и на кухне, потенциально мокрых и грязных зонах. В ванной комнате скомбинировали несколько видов плитки. На стенах — мозаика и квадратная белая плитка, в зоне ванны она уложена по диагонали, что создает интересную динамику. На полу — имитация метлахской плитки. Часть стен в ванной осталась в той же штукатурке под лаком.

Мебель и системы хранения
В прихожей — открытая вешалка для верхней одежды, подвесные полки для обуви и при входе полочка для мелочей.

В зоне гостиной — вместительный шкаф, где есть место не только для вещей. Часть створок скрывает телевизор на стене, при открытии эта часть превращается в ТВ-зону с комодом, в закрытом же виде не создает лишнего визуального шума.

На мини-кухне — холодильник под столешницей, варочная панель на две конфорки и место для хранения. Обеденный стол — откидной, в сложенном состоянии он не занимает место. Есть и рабочая зона — столешница у подоконника.

На втором уровне — матрас на подиуме, внутри которого также есть ящики для хранения, и небольшой стеллаж, где установлен телевизор и сделаны полки для хранения.

В ванной комнате — тумба под раковину, где также установлена и стиральная машина.
Освещение
«Свету отведена важная роль, студия достаточно темная, так как окно небольшое, и естественного света попадает не очень много», — объясняет Анна. В связи с этим продумали несколько сценариев света: крупная потолочная люстра над кухней-гостиной, спрятанная светодиодная подсветка по углам потолочных балок над спальней, ридер у кровати, бра у дивана и стола на кухне, накладные споты в прихожей и ванной комнате, у зеркала в ванной также есть подвесы в качестве дополнительного сценария света.

Анна Новопольцева Архитектор, автор проекта
У нас получился максимально функциональный, удобный лофт с экотропической историей в декоре и цветовой гамме. Стилистика лофта важна была для заказчика и исходила из одноименного названия ЖК, как и выбор зеленого цвета.
6 фото

Гостиная

Гостиная

Спальня

Спальня

Санузел

Санузел Редакция предупреждает, что в соответствии с Жилищным кодексом РФ требуется согласование проводимых переустройств и перепланировок.

Смотреть перепланировку

Анастасия Дубровина

Алексей Чуднов Лофт Маленькие квартиры Зеленый цвет