Дизайнер Ольга Цурикова создала комфортную квартиру для семьи, которая любит принимать в гостях взрослых детей и внуков.
Заказчики и задачи
Владельцы этой двухкомнатной квартиры в одном из современных жилых комплексов Москвы — зрелая семенная пара. Они хотели оформить ее для себя и приема гостей, детей и внуков. Поэтому семье была нужно просторная общая зона с обеденным столом минимум на шесть человек, удобным диваном, кухней, на которой было бы комфортно готовить. С этим пара обратилась в студию дизайнера Ольги Цуриковой.

Перепланировка
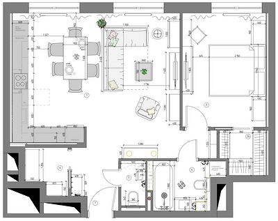
По изначальному плану квартира была двухкомнатной, с двумя санузлами и достаточно длинным коридором, который вел из прихожей к дальней комнате. Чтобы выполнить пожелание хозяев о просторной общей зоне, перепланировка была просто необходима. Автор проекта предложила объединить кухню с соседней комнатой. После перепланировки кухня позиционируется как «кухня-ниша». Кроме того, к общему пространству присоединили площадь коридора, задействовав ненужную транзитную зону. Прихожая также «открыта» в кухню-гостиную.

В спальне выделили дополнительную гардеробную. А та, что была предусмотрена застройщиком при входе, стала вместительной кладовой.
Отделка
Для отделки стен выбрали краску. В отдельных зонах использовали обои. Так, стену напротив дивана оклеили обоями с геометрическим узором, который перекликается с раскладкой на зеркальных фасадах кухонного гарнитура. А в спальне за изголовьем кровати — обои с флористическим принтом. По словам автора проекта, отделка обоями добавляет уюта. В прихожей часть стены оформлены тканевыми панелями.

В ванной скомбинировали разные виды плитки — глянцевую квадратную плитку голубого цвета и крупноформатный керамогранит под мрамор. Кроме жилых комнат, обои применили в малом санузле. Это позволило превратить утилитарное помещение в настоящую комнату. Нижняя половина стены оформлена плиткой, так практичнее.

На полу в жилых зонах — инженерная доска под маслом. Материал, по которому приятно ходить босиком. К тому же доску можно обновлять при необходимости путем циклевки. Зона кухни выделена плиткой, как и прихожая. Все — в целях практичности, но и о декоративности отделки не забыли. Так, в прихожей — плитка с геометрическим орнаментом. На фартуке кухни — глянцевый кабанчик с фаской и объемным декором. По рассказу дизайнера, с хозяевами обсуждали возможные сложности ухода за такой плиткой, но декоративный аспект победил.
Мебель и системы хранения
Благодаря тому, что при спальне выделили гардеробную, а в прихожей — кладовую, в квартире отказались от шкафов для одежды. В гостиной добавили шкафы для книг и декора, один из которых встроен в нишу рядом со входом в спальню.

Кухонный гарнитур получился очень вместительным. Он угловой. С одной стороны в колонну встроены духовой шкаф и СВЧ. С другой в нишу вписан отдельно стоящий холодильник. Верхние шкафы сделаны до потолка, что увеличивает объем хранения.
В спальне в дополнение к гардеробной установлен комод напротив кровати и вместительные прикроватные тумбочки, которые тоже, по сути, мини-комоды.

В прихожей — ящики, совмещенные с местом для сидения. В ванной комнате сделана вместительная тумба под раковину, есть подвесной шкафчик рядом с зеркалом и встроенная в стену система хранения, которая захватывает и объем над инсталляцией унитаза. Прямо на дверцу установлен полотенцесушитель. В санузле — тоже шкафчик над инсталляцией, там спрятан водонагреватель.
Мебель, по большей части, сделали на заказ. Готовые позиции выбирали у российских производителей.

Освещение
Основное освещение решено точечными встроенными светильниками. Такой сценарий применили на кухне, в спальне, ванной и прихожей. Дополнительные сценарии освещения — функциональные и декоративные. Например, люстра в зоне гостиной, дополненная лепной розеткой, и подвесы над обеденным столом, люстра в спальне. Эффектные бра в спальне рядом с кроватью и в зоне туалетного столика. Бра на зеркале монтировали и в ванной. В санузле и прихожей использовали подвесы.


Дизайнер Ольга Цурикова, автор проекта:
Весь проект был сделан, как и планировали, точь-в точь с визуализацией, для меня это подтверждение, того, что мы умеем слушать своего клиента. Но были небольшие споры по гостевому санузлу. Заказчики сомневались в использовании обоев в санузле, но я их убедила, что обои — это практично, и, самое главное, они дополняют плитку, с ними получится эффект уютной комнаты, а не холодного помещения со стенами в плитке от пола до потолка. Люстра в форме шара дополнила эту историю. Интересный момент — разные по установке и дизайну двери, это сделано для максимального использования пространства. При входе — дверь в гардеробную с классической раскладкой, она раздвижная, напротив — дверь скрытого монтажа, со стороны санузла — под покраску, а со стороны прихожей — зеркало на дверном полотне. В спальне и в ванной комнате — классические распашные двери, а вот при спальне — раздвижная дверь в гардеробную, окрашенная со стороны спальни, и зеркальная со стороны гардеробной.
24фото

Гостиная

Гостиная

Гостиная-кухня

Гостиная-кухня

Гостиная-кухня

Гостиная-кухня

Кухня

Кухня

Кухня

Кухня

Кухня

Гостиная

Прихожая

Спальня

Спальня

Спальня

Спальня

Спальня

Гардеробная

Ванная комната

Ванная комната

Санузел

Санузел

Санузел Редакция предупреждает, что в соответствии с Жилищным кодексом РФ требуется согласование проводимых переустройств и перепланировок.

Смотреть перепланировку

Анастасия Дубровина

Антон Лихтарович

Екатерина Шаповалова Светлые цвета Яркие цвета Современная классика