Эта маленькая квартира покупалась под сдачу. Дизайнерам Варе Шалито и Лере Нестеренко надо было сделать так, чтобы арендаторы не могли с ней расстаться. Посмотрите, как они справились с задачей
Зона гостиной и столовой. Обеденный стол, Jysk. Диван, Divan.ru. Журнальный столик, Eburet. На стенах краска, Tikkurila.
ОБЩИЕ ПАРАМЕТРЫ
Тип недвижимости: квартира-новостройка
Где находится: Москва, Рассказовка, ЖК «Городские Истории»
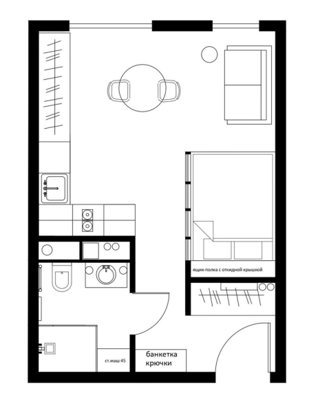
Метраж: 28 м2
Стиль: скандинавский с яркими акцентами
Основная идея проекта: на небольшой площади создать полноценное жилое пространство с минимальными затратами и подходящее для любого потенциального арендатора
Цветовая гамма: нейтральный серый цвет плюс яркие терракоторвые оттенки с графичными черными линиями
Авторы проекта: дизайнеры Варя Шалито, т. +7 (925) 583-00-68 , shalito1@mail.ru; Лера Нестеренко, т. +7 (964) 768-12-15, valeriya-92@mail.ru

Зона гостиной, фрагмент. Диван, Divan.ru. Журнальный столик, Eburet. Ковер, Design Carpets.
«Наши заказчики, Елена и Артем, познакомились с Варей в детском садике, их дочки занимаются в одной группе, — рассказывают авторы проекта, Варя Шалитова и Лера Нестеренко. — Ребята приобрели небольшую студию в ЖК „Городские Истории“ для сдачи в аренду и обратились к нам за инвест-проектом».

Обеденный стол, Jysk.

Обеденная зона. Стул, ИКЕА.
Заказчики высказали всего одно пожелание: в квартире нужно было создать универсальный интерьер, подходящий широкому кругу потенциальных арендаторов, недорогой и не сложный в реализации.

Кровать в нише снабжена подъемным механизмом.
В плане квартира представляла собой прямоугольник с двумя окнами по короткой стороне. Дизайнеры начали работу с зонирования пространства: отделили кухонную и спальную зоны. Между ними образовался небольшой участок для гостиной.

Зона кухни. Кухня, «Мария». В открытой полке свечи, Tkano. На стенах краска, Tikkurila.
Интерьер решили выполнить в черно-белой гамме, добавив один акцентный цвет — терракотовый. Ярким цветом выделены наиболее значимые зоны — спальня и кухня.

Кухня, фрагмент. Кухня плавно переходит в большой платяной шкаф.
Полноценное спальное место — важная вещь, поэтому для кровати спроектировали специальную нишу. От коридора зону спальни отделяет перегородка с застекленной верхней частью, от гостиной — только цвет.

Спальня в нише. Перегородка, LoftKrel. Кровать с подъемным механизмом, Rondo.
Для кровати в нише придумали многофункциональное изголовье — в виде ящика с открывающейся крышкой, куда можно убрать крупный текстиль и постельное белье. Изголовье можно также использовать как полку для декора, книг и зарядки для телефона.

Спальня, фрагмент.

Прихожая, фрагмент.
В коридоре располагается вместительный встроенный шкаф (производитель Rondo мебель), который выполнен в том же цвете, что и стены. Таким образом большой объем растворяется в пространстве.

В санузле удалось выкроить место для вместительной тумбы с раковиной и стиральной машины.

Душевая в санузле.
Дизайнеры считают, что с поставленной задачей справились: создали запоминающийся интерьер в условиях ограниченного бюджета. Есть и подтверждение: квартира «ушла» практически сразу. Владелец даже не успел получить финальные фотографии, чтобы добавить их в объявление.

Прихожая. Справа — дверь в санузел.

Квартира 28 кв. метров в Москве. Проект Вары Шалито и Леры Нестеренко.Татьяна Филиппова