Силами дизайнера Карины Маголиной получилось уютное пространство для семьи с двумя детьми.
Заказчики и задачи
Владельцы этой квартиры — семья с двумя маленькими детьми. Для них было важно выделить полноценную детскую комнату, оформить кухню-гостиную и два санузла, предусмотреть много места для хранения. «Вопросами дизайна занималась, в основном, супруга, и в начале работы над проектом она показала референсы для «квартиры мечты». Клиенты хотели интерьер в стиле современной классики, но без перегруза большим количеством деталей», — комментирует автор проекта Карина Маголина.

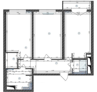
Перепланировка
Изначально в квартире были одна изолированная комната, кухня и гостиная, объединенные широким дверным проемом, а также два санузла.
Автор проекта предложила сделать перепланировку, чтобы удовлетворить потребности семьи. Так, вторую комнату изолировали от кухни, там организована детская. При этом на кухне организовали гостиную зону, отделив ее декоративной перегородкой — так у семьи получилась комфортная общая зона.

При спальне хозяев сделали гардеробную, отделив ее глухими перегородками со сдвижной дверью — для экономии пространства.

Два санузла оставили неизменными, в малом сумели уместить и душевую, что удобно для большой семьи.
Отделка
В отделке стен спальни, кухни-гостиной и прихожей использовали краску, дополнив их молдингами. В жилых зонах на полу уложили паркет «елочкой».

И молдинги, и такая укладка паркета — традиционные приемы для классического стиля. В детской — фоновые обои в горошек и панно на стене за диваном.

В прихожей и коридоре для пола выбрали керамогранит. Ванную комнату и санузел также оформили керамогранитом. В первом случае — светлым под камень. По словам дизайнера, изначально планировали сантехнику и аксессуары с отделкой под золото, поэтому общий фон должен был быть нейтральным. В санузле на стенах — белый керамогранит, а на полу — черный, для контраста.
Системы хранения
Для заказчиков было важно продумать максимум систем хранения, что и сделали. В коридоре встроили вместительный шкаф во всю длину этого помещения. В спальне роль хранения выполняет гардеробная. В детской шкаф выстроен по стене с дверью — сделали даже антресоли.

Стеллажи в детской выполняют не только роль мест для хранения, но также являются и инструментом зонирования жилой и игровой зон. У окна предусмотрели встроенные шкафы для игрушек и книг.

На кухне — вместительный линейный гарнитур, дополнительно есть шкафы-колонны со встроенной техникой и местом для хранения. В зоне гостиной ограничились тумбочкой под телевизор.
В ванной комнате, кроме тумбы под раковину, есть шкафчик над инсталляцией унитаза и полки-ниши в зоне ванны — для душевых принадлежностей. Во втором санузле — мини-тумба и полки.

Освещение
Общий свет решен точечными светильниками. Дополнительные сценарии реализованы в каждой комнате. Например, в кухне-гостиной — светильник над обеденным столом и настенные бра над диваном, в спальне — подвесы по бокам от кровати, в детской — люстра в зоне отдыха и бра у кровати и дивана. В ванной использовали подвесы у зеркала, в санузле выбрали зеркало с подсветкой, так как было необходимо экономить площадь, а в коридоре — настенные бра.


Дизайнер Карина Маголина, автор проекта:
Главной задачей было сделать помещения светлыми и уютными, поэтому и выбор оттенков соответствующий. Кухня-гостиная — в бежевых тонах с элементами розового, и мы добавили немного голубых оттенков в качестве акцента: большая картина над диваном, декоративные подушки, декор. Детская комната выполнена в сочетании белого и мятного оттенков. Цветовую концепцию немного изменили во время реализации, но основная идея осталась той, что была изначально в проекте. Спальня выполнена в максимально нейтральном сочетании оттенков бежевого. В прихожей и кухне-гостиной цвет стен совпадает. Этот прием был использован, чтобы визуально объединить пространства и немного расширить.
18 фото

Кухня-гостиная

Гостиная

Гостиная

Гостиная

Гостиная

Кухня-гостиная

Кухня

Спальня

Спальня

Спальня

Спальня

Детская

Детская

Детская

Коридор

Ванная комната

Ванная комната

Санузел Редакция предупреждает, что в соответствии с Жилищным кодексом РФ требуется согласование проводимых переустройств и перепланировок.

Смотреть перепланировку

Анастасия Дубровина

Екатерина Титенко

Наталья Орешкова Бежевый цвет Современная классика