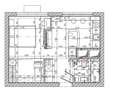
Все дело в перепланировке! Благодаря эргономичному распределению пространства у дизайнера получилось задействовать маленькую площадь по максимуму.
Заказчик и задачи
Этот интерьер создавали для молодой девушки. Дизайнер Ирина Ващенко описывает свою заказчицу как энергичного, активного человека, который много работает. Девушка хотела спокойный и лаконичный интерьер, где можно было бы отдохнуть после насыщенного дня. Были и требования к планировке: спальня с гардеробной, кухня-гостиная с небольшим диваном, конечно же, ванная комната и прихожая.

Перепланировка
Застройщик сдавал квартиру с отдельной кухней и ванной комнатой. Чтобы воплотить пожелание хозяйки, дизайнер предложила перепланировку. В результате убрали перегородку между кухней и комнатой и построили новые. За счет этого получилось выделить площадь для маленькой гостиной зоны при кухне. Гардеробную отделили от спальни раздвижной перегородкой из тонированного стекла и металлического профиля.

Отделка
Следуя концепции спокойного интерьера, подобрали отделку в природных цветах, с натуральными фактурами. На стенах — светлая бежевая краска. На полу в кухне-гостиной и спальне с гардеробной — кварцвиниловая плитка под дерево, уложенная «елочкой». Выбор обусловлен практичностью материала — дизайнер не хотела делить маленькую кухню и гостиную разными напольными покрытиями, а кварцвинил ввиду своей устойчивости к влажности и грязи подходит для укладки в этой зоне. На полу в прихожей и ванной комнате — одинаковый керамогранит с рисунком терраццо. Объединение этих зон визуально обусловлено той же целью — не делить пространство. Тем не менее благодаря разным отделкам прихожая выделяется на фоне гостиной и спальни, есть визуально «грязная» зона, и это правильно.

На стенах в ванной комнате — спокойного оттенка керамогранит с фактурой камня. Акцентные материалы тоже есть, они выбраны за счет своей фактуры. Это шпонированные панели в зоне гостиной (ими же отделана система хранения рядом с диваном), гипсовые панели, которые имитируют грубую каменную породу, в ТВ-зоне.

В спальне — мягкие панели и гипсовые реечные в изголовье кровати. Последние обрамляют мягкое изголовье по бокам . «Это не случайное решение, а сознательный прием, чтобы визуально увеличить комнату за счет создания активного горизонтального членения стены», — объясняет автор проекта.

Системы хранения
Продуманные системы хранения обеспечивают бытовой комфорт, считает Ирина Ващенко.
В гардеробной, кроме полок для хранения вещей, осталось место для установки беговой дорожки, как хотела хозяйка.

Напротив кровати у окна — рабочий стол (который может служить и туалетным) с закрытыми подвесными шкафчиками.

Кроме гардеробной, дизайнер предусмотрела еще ряд систем хранения. В прихожей — шкаф для верхней одежды, в котором для визуального облегчения пространства сделали отсек с сидением и консолью. Внизу есть место для повседневной обуви хозяйки.

Гостиную от прихожей отделяет высокий шкаф-пенал, в котором сосредоточено хозяйственное хранение и спрятана стиральная машина. Со стороны гостиной там тоже полки для хранения.

В ТВ-зоне — консоль под телевизором. Кухонный гарнитур — компактный, со встроенным холодильником и рядом высоких верхних шкафов до потолка. Но рабочая поверхность совсем небольшая, и в связи с этим дизайнер решила вынести мелкую бытовую технику — микроволновую печь, чайник — в шкаф рядом с ТВ-зоной и барной стойкой. Там за дверкой спрятана СВЧ, чайник установлен в нишу на выдвижную полку, есть дополнительное место для хранения, а также отсек с витриной для красивой посуды.

В ванной комнате, кроме тумбы под раковину, дизайнер предусмотрела систему хранения над инсталляцией унитаза, переходящую в открытые полки для разных косметических средств в зоне ванны.

Освещение
Основной свет решен трековыми светильниками. Для отдельных зон — карнизов, стены в ТВ-зоне в гостиной, шкафов — дизайнер предусмотрела скрытые подсветки. Также есть и местные настенные светильники — бра по бокам от кровати, бра в прихожей, которое, кроме дополнительного сценария света в помещении, также выступает подсветкой картины из коллекции хозяйки, бра в ванной комнате у зеркала.

Ирина Ващенко Дизайнер, автор проекта
Визуальная лаконичность, не лишенная акцентов и интересных деталей — это основа стилистики интерьера. Именно такой стиль я нашла наиболее соответствующим личности хозяйки квартиры. Четкость линий, выверенность пропорций и безупречность качества исполнения — то, что нужно было заказчице.
20 фото

Кухня

Кухня

Гостиная

Гостиная


Спальня

Спальня

Спальня

Спальня

Спальня

Спальня

Спальня

Спальня

Спальня

Гардеробная

Прихожая

Ванная комната

Ванная комната

Ванная комната

Ванная комната
Редакция предупреждает, что в соответствии с Жилищным кодексом РФ требуется согласование проводимых переустройств и перепланировок.

Смотреть перепланировку

Анастасия Дубровина

Анастасия Кутырина

Варвара Калицкая Маленькие квартиры Современный стиль Светлые цвета Бежевый цвет